大阪府東大阪市岩田町1丁目(若江岩田駅)の一戸建て:物件詳細
交通 所在地 |
駅徒歩 |
価格 |
間取り 建物面積 |
土地面積 私道負担面積 |
物件種目 築年月 |
近鉄奈良線/若江岩田
大阪府東大阪市岩田町1丁目
|
5分
|
4,180万円
|
4SLDK
116.16m²
|
66.36m²
なし
|
新築一戸建て
2025年8月
|
24時間換気システム、閑静な住宅街、区画整理地内、IT重説対応物件、分譲地内
|
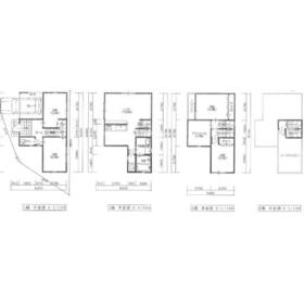
間取図
間取図
|
外観
外観写真
|
<
その他の画像
>
|
交通 | 近鉄奈良線 若江岩田駅 徒歩5分 |
---|
その他の交通 | 近鉄けいはんな線 荒本駅 徒歩23分 |
所在地 |
大阪府東大阪市岩田町1丁目
|
物件種目 |
新築一戸建て |
価格 |
4,180万円 |
借地期間・地代(月額) |
- |
権利金 |
- |
敷金または保証金 |
- / - |
維持費等 |
- |
その他一時金 |
- |
間取り |
4SLDK(洋 5.2・5.5・6・6.3 LDK 15.8 S 4) |
建物面積 |
116.16m² |
土地権利 |
所有権 |
建物構造 |
木造 |
土地面積 |
66.36m²(公簿) |
私道負担面積 |
なし |
築年月 |
2025年8月
|
都市計画 |
市街化区域 |
建物名 |
東大阪市岩田町1丁目 新築戸建E号地 |
建築確認番号 |
第J25-00038号 |
用途地域 |
1種住居 |
駐車場 |
有 無料 |
建ぺい率 |
60% |
容積率 |
160% |
階建 |
3階建 |
接道状況 |
北東 4.0m 公道 接面15.6m
|
地目 |
宅地 |
地勢 |
平坦 |
国土法届出 |
- |
セットバック |
- |
アピールポイント |
・ご成約キャンペーン実施中
・ こちらの物件をご契約の方限定!
【特典①】通常約145万円(税込)の仲介手数料を今ならナカタ不動産が負担いたします!!
【特典②】期間中ご成約の方に商品券 10万円分プレゼント! ※キャンペーン適用条件 * 本キャンペーンは【対象物件】をご契約された方に限ります。 【2025年11月30日ご契約分まで】 * 割引は宅地建物取引業法上の仲介手数料上限額を基準に算出しています。 * 商品券は「ご成約記念品」としてお渡しします。 * 適用条件:ナカタ不動産を通じて初めてご契約される方/対象物件限定/他キャンペーン併用不可。 * 商品券は【決済完了後】にお渡しいたします。 |
リフォーム履歴 |
- |
リノベーション履歴 |
- |
瑕疵保証 |
- |
瑕疵保険 |
- |
評価・証明書 |
- |
備考 |
主要採光面:北東向き
IT重説対応物件
|
エネルギー消費性能 |
- |
断熱性能 |
- |
目安光熱費 |
- |
バス・トイレ |
浴室暖房、浴室乾燥機、追焚機能、シャワー付洗面化粧台、温水洗浄便座、トイレ2ヶ所、浴室に窓あり |
キッチン |
システムキッチン、浄水器、3口以上コンロ |
設備・サービス |
全居室収納、クローゼット、全居室フローリング、グルニエ、上水道、下水道、都市ガス、電気、火災警報器(報知機) |
その他 |
- |
現況 |
完成済 |
引渡可能時期 |
即時 |
物件番号 |
6987921602 |
仲介手数料 |
不要 |
情報公開日 |
2025年10月6日 |
次回更新予定日 |
2025年10月21日 |
ケータイ用バーコード |
- スマートフォンでこの物件を見る
- スマートフォンからもこの物件をご覧になれます。
|
※「-」と表示されている項目については、情報提供会社にご確認ください。
ここから簡単にお問い合わせをすることができます。
(SSLでの暗号化での送信を希望されるお客さまは
こちら
よりお問い合わせください)
お問い合わせを行う前に
「個人情報の取り扱いについて」を必ずお読みください。
「個人情報の取り扱いについて」に同意いただいた場合は「上記にご同意の上 確認画面へ進む」のボタンをクリックしてください。
個人情報の取り扱いについて
皆さまが送付された個人情報はアットホーム(株)のサーバを経由し、お問い合わせ先の不動産会社にメールまたはFAXにて転送されるためアットホーム(株)にも保管されます。アットホーム(株)で保管された個人情報の取り扱いについては、【こちら】をご覧ください。
また、本画面でご記入いただいた個人情報は、お問い合わせ先の不動産会社でも保管します。 お問い合わせ先の不動産会社が保管する個人情報の取り扱いについては、不動産会社に直接お問い合わせください。
大阪府知事免許(1)第66102号 |
---|
- 交通:
- 近鉄奈良線/八戸ノ里駅 徒歩5分
- 大阪府東大阪市御厨南2丁目4-45 北野ビル305
- TEL:
- 06-4306-5963
- 所属団体:
- (公社)全日本不動産協会会員(公社)近畿地区不動産公正取引協議会加盟
取引態様:媒介  - 50111153
|
- スマートフォンで
この不動産会社を見る

|
- 提携サイト等より掲載されている物件情報につきましては、不動産会社詳細情報にリンクされていないものがあります。
- 物件に関するお問合せは、物件詳細ページの「情報提供会社」に表示されている不動産会社へ直接お願いいたします。
- 間取図は、現況を優先させていただきます。
- 映像は物件の一部を撮影したものです。物件の契約にあたっての最終判断はご自身の判断に基づいて行ってください。
- 仲介手数料について

アットホームは物件情報の適正化に努めております。
内容に誤りがある場合にはこちらへご連絡ください。