神奈川県相模原市中央区上溝(上溝駅)の一戸建て:物件詳細
交通 所在地 |
駅徒歩 |
価格 |
間取り 建物面積 |
土地面積 私道負担面積 |
物件種目 築年月 |
|
JR相模線/上溝 【バス】7分 石橋 停歩4分
神奈川県相模原市中央区上溝
|
-
|
3,580万円
|
4LDK
95.58m²
|
98.09m²
なし
|
新築一戸建て
2025年12月
|
|
駐車場2台分、南向き、外壁サイディング、バス1坪以上、全室2面採光、閑静な住宅街、整形地、設計住宅性能評価書あり、建設住宅性能評価書あり、前面棟無
|
|
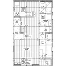
間取図
1号棟 1階平面図
|
間取図
1号棟 2階平面図
|
<
その他の画像
>
|
| 交通 | JR相模線 上溝駅 【バス】 7分 石橋 停歩4分 |
| 所在地 |
神奈川県相模原市中央区上溝
|
| 物件種目 |
新築一戸建て |
| 価格 |
3,580万円 |
借地期間・地代(月額) |
- |
| 権利金 |
- |
敷金または保証金 |
- / - |
| 維持費等 |
- |
その他一時金 |
- |
| 間取り |
4LDK(洋 5.3・5.3・5.3・6.5 LDK 18) |
建物面積 |
95.58m² |
| 土地権利 |
所有権 |
建物構造 |
木造 |
| 土地面積 |
98.09m²(実測) |
私道負担面積 |
なし |
| 築年月 |
2025年12月
|
都市計画 |
市街化区域 |
| 建物名 |
相模原市中央区上溝 |
建築確認番号 |
第R07SHC117374号 |
| 用途地域 |
1種住居 |
駐車場 |
有 無料 |
| 建ぺい率 |
60% |
容積率 |
200% |
| 階建 |
2階建 |
接道状況 |
南 7.5m 公道 接面6.4m
・ 北 4.0m 私道 位置指定有 接面4.8m
|
| 地目 |
宅地 |
地勢 |
平坦 |
| 国土法届出 |
- |
セットバック |
- |
| アピールポイント |
JR相模線「上溝」駅利用。広がる青空と山並みを渡る緑風に抱かれる悠然と暮らしを楽しむロケーション |
| リフォーム履歴 |
- |
| リノベーション履歴 |
- |
| 瑕疵保証 |
- |
| 瑕疵保険 |
- |
| 評価・証明書 |
- |
| 備考 |
主要採光面:南向き
号棟番号:1号棟
工事完了予定日:2025年12月
建築確認完了検査済証あり、新築時・増改築時の設計図書あり、BELS/省エネ基準適合認定
|
| エネルギー消費性能 |
- |
| 断熱性能 |
- |
| 目安光熱費 |
- |
| バス・トイレ |
浴室乾燥機、追焚機能、シャワー付洗面化粧台、温水洗浄便座、トイレ2ヶ所 |
| キッチン |
浄水器、3口以上コンロ |
| 設備・サービス |
全居室収納、クローゼット、床下収納、モニター付インターホン、省エネ給湯器、上水道、下水道、都市ガス、電気 |
| その他 |
- |
| 現況 |
建築中 |
引渡可能時期 |
2026年1月下旬予定 |
| 物件番号 |
6987923652 |
仲介手数料 |
売買代金の3%+6万円 |
| 情報公開日 |
2025年10月7日 |
次回更新予定日 |
2025年12月31日 |
| ケータイ用バーコード |
- スマートフォンでこの物件を見る
- スマートフォンからもこの物件をご覧になれます。
|
※「-」と表示されている項目については、情報提供会社にご確認ください。
| 周辺施設 |
新宿小学校 |
| 距離 |
1000m |
写真を見る |
| 周辺施設 |
上溝南中学校 |
| 距離 |
1500m |
写真を見る |
| 周辺施設 |
セブンイレブン相模原上溝3丁目店 |
| 距離 |
600m |
写真を見る |
| 周辺施設 |
ツルハドラッグ上溝店 |
| 距離 |
300m |
写真を見る |
ここから簡単にお問い合わせをすることができます。
(SSLでの暗号化での送信を希望されるお客さまは
こちら
よりお問い合わせください)
お問い合わせを行う前に
「個人情報の取り扱いについて」を必ずお読みください。
「個人情報の取り扱いについて」に同意いただいた場合は「上記にご同意の上 確認画面へ進む」のボタンをクリックしてください。
個人情報の取り扱いについて
皆さまが送付された個人情報はアットホーム(株)のサーバを経由し、お問い合わせ先の不動産会社にメールまたはFAXにて転送されるためアットホーム(株)にも保管されます。アットホーム(株)で保管された個人情報の取り扱いについては、【こちら】をご覧ください。
また、本画面でご記入いただいた個人情報は、お問い合わせ先の不動産会社でも保管します。 お問い合わせ先の不動産会社が保管する個人情報の取り扱いについては、不動産会社に直接お問い合わせください。
神奈川県知事免許(1)第32642号 |
|---|
- 交通:
- JR横浜線/相模原駅 徒歩14分
- 神奈川県相模原市中央区小山2丁目6-38
- TEL:
- 042-703-1618
- FAX:
- 042-703-1619
- 所属団体:
- (公社)神奈川県宅地建物取引業協会会員(公社)首都圏不動産公正取引協議会加盟
取引態様:一般媒介  - 00278678
|
- スマートフォンで
この不動産会社を見る

|
- 提携サイト等より掲載されている物件情報につきましては、不動産会社詳細情報にリンクされていないものがあります。
- 物件に関するお問合せは、物件詳細ページの「情報提供会社」に表示されている不動産会社へ直接お願いいたします。
- 間取図は、現況を優先させていただきます。
- 映像は物件の一部を撮影したものです。物件の契約にあたっての最終判断はご自身の判断に基づいて行ってください。
- 仲介手数料について

アットホームは物件情報の適正化に努めております。
内容に誤りがある場合にはこちらへご連絡ください。