不動産 賃貸 マンション等の住宅情報:埼玉住まい情報


長崎県長崎市琴海戸根原町の一戸建て:物件詳細

  • 物件詳細
  • 情報の見方
  • 印刷用画面
交通
所在地
駅徒歩 価格 間取り
建物面積
土地面積
私道負担面積
物件種目
築年月

【バス】自証寺前 停歩4分

長崎県長崎市琴海戸根原町


1,180万円

5SDK

137.87m²

569.04m²

なし

中古一戸建て

1989年5月(築36年11ヶ月)

おすすめPOINT駐車場3台分以上、南向き、バス1坪以上、閑静な住宅街、庭10坪以上

おすすめコメント

約170坪超の広い敷地に、ゆったりめの間取りの5SDKの建物ですので、大家族や事務所併用住宅などにおすすめです。さらに、別棟の平家もあります。

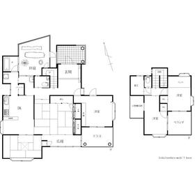
間取図

間取図

ゆとりのある間取りの5DK

外観

外観

南側からの外観です。広々とした庭があります。

<
その他の画像
  • 外観
  • 室内
  • 室内
  • キッチン
  • キッチン
  • 室内
  • 室内
  • その他
  • バス/シャワー
  • トイレ
  • 室内
  • 室内
  • 玄関
  • 眺望
>
    • とりあえず保存
    • お問い合わせ
    交通

    【バス】 自証寺前 停歩4分

    所在地 長崎県長崎市琴海戸根原町
    物件種目 中古一戸建て
    価格 1,180万円 借地期間・地代(月額)
    権利金 敷金または保証金 - / -
    維持費等 その他一時金
    間取り 5SDK(和 10・7.5 洋 8・6.8・6.5 DK 10 S 3.8) 建物面積 137.87m²
    土地権利 所有権 建物構造 木造
    土地面積 569.04m²(公簿) 私道負担面積 なし
    築年月 1989年5月(築36年11ヶ月) 都市計画 非線引区域
    建物名 琴海戸根原町 売家 建築確認番号
    用途地域 駐車場 有 無料
    建ぺい率 70% 容積率 200%
    階建 2階建 接道状況 北 3.0m 公道 接面25.0m
    地目 宅地 地勢 平坦
    国土法届出 セットバック
    アピールポイント 郊外の立地ならではの高い建物が無く、空が広い街並みは、時間がゆったりと流れているように感じられます。そんな緑がいっぱいの環境でも、バス停やコンビニが徒歩で利用できます。また、小中学校も徒歩通学ができる立地ですので、子育て世帯にもおすすめです。建物は、建築士さんがご自身の為に建てられた家ですので、家事の際の動線や日当たり・風通しなど、住み心地をの良さをよく考えて設計されています。
    リフォーム履歴
    リノベーション履歴
    瑕疵保証
    瑕疵保険
    評価・証明書
    備考
    バルコニー:7.45m²
    主要採光面:南向き
    告知事項あり。詳細はお問合せ下さい。
    別棟の平家あり・・木造平屋建 50.13㎡ 1976年9月築 現在賃貸中
    シロアリ予防工事の保証期間内です。
    専門業者による清掃済みです。
    エネルギー消費性能
    断熱性能
    目安光熱費
    バス・トイレ オートバス、追焚機能、シャワー付洗面化粧台、温水洗浄便座、トイレ2ヶ所
    キッチン システムキッチン
    設備・サービス ウォークインクローゼット、床下収納、出窓、プロパンガス、ルーフバルコニー、照明器具
    その他
    現況 空家 引渡可能時期 即時
    物件番号 6987932190 仲介手数料 45.54万円
    情報公開日 2025年10月14日 次回更新予定日 2026年3月31日
    ケータイ用バーコード

    QRコード

    スマートフォンでこの物件を見る
    スマートフォンからもこの物件をご覧になれます。
    ※「-」と表示されている項目については、情報提供会社にご確認ください。

    この物件の周辺情報

    周辺施設 長崎市立琴海中学校
    距離 492m
    周辺施設 ローソン長崎長浦町店
    距離 746m
    周辺施設 琴海中部運動公園運動場
    距離 949m
    周辺施設 長崎市役所琴海地域センター長浦事務所
    距離 961m
    周辺施設 JA長崎せいひ琴海支店
    距離 868m
    周辺施設 長崎市立長浦小学校
    距離 1078m
    周辺施設 認定こども園中央こども園
    距離 879m
    周辺施設 長浦郵便局
    距離 967m

    クイックお問い合わせ

    ここから簡単にお問い合わせをすることができます。
    (SSLでの暗号化での送信を希望されるお客さまは こちら よりお問い合わせください)

    お問い合わせ内容(必須)
    お名前(必須) 姓  名 
    メールアドレス(必須)
    ※携帯電話のメールアドレスをご入力される方はこちらをご確認ください
    電話番号(必須)
    - -

    ※入力いただいた電話番号へSMSまたは音声でパスワードをご連絡します。

    携帯電話の番号をご入力の方へ

    携帯電話の番号をご入力の方へ
    確認画面にて送信ボタンをクリックするとSMSが携帯電話に届きます。
    そのSMSに記載のパスワード(認証番号)を入力し、お問い合わせを完了してください。
    尚、SMSの送信者番号は 0005 202 760 となります。
    これはアットホームの固定番号です。

    備考欄 希望条件、物件案内希望日、質問などがございましたらご記入ください。
    お問い合わせを行う前に「個人情報の取り扱いについて」を必ずお読みください。
    「個人情報の取り扱いについて」に同意いただいた場合は「上記にご同意の上 確認画面へ進む」のボタンをクリックしてください。

    個人情報の取り扱いについて

    皆さまが送付された個人情報はアットホーム(株)のサーバを経由し、お問い合わせ先の不動産会社にメールまたはFAXにて転送されるためアットホーム(株)にも保管されます。アットホーム(株)で保管された個人情報の取り扱いについては、【こちら】をご覧ください。
    また、本画面でご記入いただいた個人情報は、お問い合わせ先の不動産会社でも保管します。 お問い合わせ先の不動産会社が保管する個人情報の取り扱いについては、不動産会社に直接お問い合わせください。

    情報提供会社

    情報提供会社

    (株)文化不動産事務所

    長崎県知事免許(4)第3646号

    交通:
    長崎電軌本線/西浜町駅 徒歩2分
    長崎県長崎市江戸町7-3 
    TEL:
    095-829-3916
    FAX:
    095-823-5296
    所属団体:
    (公社)長崎県宅地建物取引業協会会員
    (一社)全国賃貸不動産管理業協会会員
    (一社)九州不動産公正取引協議会加盟

    取引態様:媒介

    • 会社情報
    • 80500402
    スマートフォンで
    この不動産会社を見る
    QRコード
    • とりあえず保存
    • お問い合わせ
    • 提携サイト等より掲載されている物件情報につきましては、不動産会社詳細情報にリンクされていないものがあります。
    • 物件に関するお問合せは、物件詳細ページの「情報提供会社」に表示されている不動産会社へ直接お願いいたします。
    • 間取図は、現況を優先させていただきます。
    • 映像は物件の一部を撮影したものです。物件の契約にあたっての最終判断はご自身の判断に基づいて行ってください。
    • 仲介手数料について仲介手数料

    アットホームは物件情報の適正化に努めております。 内容に誤りがある場合にはこちらへご連絡ください。

    【埼玉住まい情報】では、日本全国の物件から賃貸マンションや賃貸アパート・賃貸一戸建て等の賃貸住宅情報、新築マンション・分譲マンションや中古マンション等の売買マンション情報、新築一戸建てや中古一戸建てなどの戸建住宅、 土地など、総合的な不動産住宅情報検索サービスを提供致します。
    【埼玉住まい情報】から、選りすぐりの不動産物件を探してみましょう。

    【免責事項】
    このコーナーの運営はアットホーム株式会社(https://www.athome.co.jp/)が行っています。
    このコーナーに掲載している物件情報は、「アットホーム不動産情報ネットワーク」に加盟する不動産会社等(情報提供元)から提供されています。信頼性の高い情報提供が行えるよう、最大限の努力をしておりますが、その内容を保証するものではありません。 利用者のみなさまと各情報提供元との取引に起因する損害および情報が掲載されたことに起因する損害等については、株式会社イーシティ埼玉、およびアットホームは一切責任を負いません。
    各物件情報の内容や画像等はすべて現況を優先させていただきます。
    お取引等(お取引の準備、資金調達等を含みます)の際には、内容や契約条件等について、各情報提供元より十分な説明を受け、ご自身でご確認の上、判断してください。
    このコーナーへの物件情報のご掲載、その他不動産業務ソリューション等についての不動産会社様のお問合せはこちらからお願いいたします。

    物件画像: