不動産 賃貸 マンション等の住宅情報:埼玉住まい情報


新潟県新発田市上館(加治駅)の一戸建て:物件詳細

  • 物件詳細
  • 情報の見方
  • 印刷用画面
交通
所在地
駅徒歩 価格 間取り
建物面積
土地面積
私道負担面積
物件種目
築年月

JR羽越本線/加治

新潟県新発田市上館

13分

1,480万円

3LDK

75.16m²

142.43m²

中古一戸建て

2003年3月(築22年10ヶ月)

おすすめPOINT駐車場3台分以上、外壁サイディング、全室2面採光、閑静な住宅街、庭10坪以上

おすすめコメント

カーポート付きで落ち着いた暮らしが始められる閑静な住宅街立地の物件/簡単な運動や趣味にもお使い頂ける10坪以上の庭のある住戸で、広々とアウトドアを楽しめます/ゆったりめの延床面積75.16㎡の居室空間

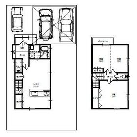
間取図

間取図

外観

外観

<
その他の画像
>
    • とりあえず保存
    • お問い合わせ
    交通

    JR羽越本線 加治駅 徒歩13分

    所在地 新潟県新発田市上館
    物件種目 中古一戸建て
    価格 1,480万円 借地期間・地代(月額)
    権利金 敷金または保証金 - / -
    維持費等 その他一時金
    間取り 3LDK(洋 8・5・4.5 LDK 13.5) 建物面積 75.16m²
    土地権利 所有権 建物構造 木造
    土地面積 142.43m²(公簿) 私道負担面積
    築年月 2003年3月(築22年10ヶ月) 都市計画 区域外
    建物名   建築確認番号
    用途地域 無指定 駐車場
    建ぺい率 60% 容積率 200%
    階建 2階建 接道状況 北 6.6m 公道 接面8.9m
    地目 宅地 地勢 平坦
    国土法届出 セットバック
    アピールポイント 【JR羽越本線 加治 徒歩13分】フルリフォーム済・2台駐車可!理想のマイホーム、新生活をすぐにスタート!

    JR羽越本線 加治駅まで徒歩13分!通勤・通学に便利な好立地で、家族の笑顔があふれる新生活を始めませんか?

    この家の一番の魅力は、フルリフォーム済でカーポート付き駐車2台分があること!新築同様の美しさで、気持ち良く新生活をスタートできます。すぐに引っ越しできるのも嬉しいポイントです。

    充実の設備と周辺環境で、毎日の生活がもっと快適に!
    快適な室内: 忙しい朝も嬉しい2階にもトイレがある4LDK。全居室2面採光で明るく、ゆったり過ごせる広さです。

    水回りが一新: 浴室暖房乾燥機能付きバス、温水洗浄便座、シャワー付洗面化粧台、3口コンロのカウンターキッチンなど、最新設備が充実!家事の負担を軽減し、家族との時間を増やします。

    安心の収納力: 全居室収納に加え、納戸も完備。季節の家電や家族の荷物もすっきり片付き、いつもLDKを広く使えます。

    子育てに優しい: コンビニなどの買い物施設や小中学校が徒歩圏内!お子様の通学も安心で、生活利便性も良いロケーションです。
    リフォーム履歴 ■水回り:2024年3月
    キッチン、浴室、トイレ、洗面所、給湯器
    ■内装:2024年3月
    全室クロス張替え、床(フローリング等)、壁・天井(クロス・塗装等)、建具(室内ドア等)
    ■外装:2024年3月
    外壁、屋根
    ※実施年月は最も古い履歴を表示
    リノベーション履歴
    瑕疵保証
    瑕疵保険
    評価・証明書
    備考
    バルコニー:2.45m²
    エネルギー消費性能
    断熱性能
    目安光熱費
    バス・トイレ オートバス、追焚機能、シャワー付洗面化粧台、温水洗浄便座、トイレ2ヶ所、浴室に窓あり
    キッチン カウンターキッチン、システムキッチン、3口以上コンロ
    設備・サービス 全居室収納、床下収納、モニター付インターホン、ディンプルキー、浄化槽、省エネ給湯器、全居室フローリング、プロパンガス、側溝、照明器具、火災警報器(報知機)、インターネット対応
    その他
    現況 空家 引渡可能時期 相談
    物件番号 6987954119 仲介手数料 売買代金の3.3%+6.6万円
    情報公開日 2025年10月9日 次回更新予定日 2025年12月17日
    ケータイ用バーコード

    QRコード

    スマートフォンでこの物件を見る
    スマートフォンからもこの物件をご覧になれます。
    ※「-」と表示されている項目については、情報提供会社にご確認ください。

    この物件の周辺情報

    周辺施設 イオンスタイル新発田中田
    距離 2933m
    周辺施設 セブンイレブン新発田三日市店
    距離 284m
    周辺施設 ウエルシア新発田加治店
    距離 284m
    周辺施設 ツルハドラッグ新発田三日市店
    距離 521m
    周辺施設 新発田市立七葉中学校
    距離 554m
    周辺施設 新発田市立七葉小学校
    距離 1241m
    周辺施設 新発田市立ななは保育園
    距離 158m
    周辺施設 加治郵便局
    距離 476m

    クイックお問い合わせ

    ここから簡単にお問い合わせをすることができます。
    (SSLでの暗号化での送信を希望されるお客さまは こちら よりお問い合わせください)

    お問い合わせ内容(必須)
    お名前(必須) 姓  名 
    メールアドレス(必須)
    ※携帯電話のメールアドレスをご入力される方はこちらをご確認ください
    電話番号(必須)
    - -

    ※入力いただいた電話番号へSMSまたは音声でパスワードをご連絡します。

    携帯電話の番号をご入力の方へ

    携帯電話の番号をご入力の方へ
    確認画面にて送信ボタンをクリックするとSMSが携帯電話に届きます。
    そのSMSに記載のパスワード(認証番号)を入力し、お問い合わせを完了してください。
    尚、SMSの送信者番号は 0005 202 760 となります。
    これはアットホームの固定番号です。

    備考欄 希望条件、物件案内希望日、質問などがございましたらご記入ください。
    お問い合わせを行う前に「個人情報の取り扱いについて」を必ずお読みください。
    「個人情報の取り扱いについて」に同意いただいた場合は「上記にご同意の上 確認画面へ進む」のボタンをクリックしてください。

    個人情報の取り扱いについて

    皆さまが送付された個人情報はアットホーム(株)のサーバを経由し、お問い合わせ先の不動産会社にメールまたはFAXにて転送されるためアットホーム(株)にも保管されます。アットホーム(株)で保管された個人情報の取り扱いについては、【こちら】をご覧ください。
    また、本画面でご記入いただいた個人情報は、お問い合わせ先の不動産会社でも保管します。 お問い合わせ先の不動産会社が保管する個人情報の取り扱いについては、不動産会社に直接お問い合わせください。

    情報提供会社

    情報提供会社

    (株)大滝工務店 不動産部

    新潟県知事免許(2)第5362号

    交通:
    JR白新線/東新潟駅 徒歩20分 【バス】7分 寺山橋
    新潟県新潟市東区寺山2丁目11番5号 
    TEL:
    0120-265-245
    FAX:
    025-275-0304
    所属団体:
    (公社)全日本不動産協会会員
    (公社)首都圏不動産公正取引協議会加盟

    取引態様:媒介

    • 会社情報
    • 00267132
    スマートフォンで
    この不動産会社を見る
    QRコード
    • とりあえず保存
    • お問い合わせ
    • 提携サイト等より掲載されている物件情報につきましては、不動産会社詳細情報にリンクされていないものがあります。
    • 物件に関するお問合せは、物件詳細ページの「情報提供会社」に表示されている不動産会社へ直接お願いいたします。
    • 間取図は、現況を優先させていただきます。
    • 映像は物件の一部を撮影したものです。物件の契約にあたっての最終判断はご自身の判断に基づいて行ってください。
    • 仲介手数料について仲介手数料

    アットホームは物件情報の適正化に努めております。 内容に誤りがある場合にはこちらへご連絡ください。

    【埼玉住まい情報】では、日本全国の物件から賃貸マンションや賃貸アパート・賃貸一戸建て等の賃貸住宅情報、新築マンション・分譲マンションや中古マンション等の売買マンション情報、新築一戸建てや中古一戸建てなどの戸建住宅、 土地など、総合的な不動産住宅情報検索サービスを提供致します。
    【埼玉住まい情報】から、選りすぐりの不動産物件を探してみましょう。

    【免責事項】
    このコーナーの運営はアットホーム株式会社(https://www.athome.co.jp/)が行っています。
    このコーナーに掲載している物件情報は、「アットホーム不動産情報ネットワーク」に加盟する不動産会社等(情報提供元)から提供されています。信頼性の高い情報提供が行えるよう、最大限の努力をしておりますが、その内容を保証するものではありません。 利用者のみなさまと各情報提供元との取引に起因する損害および情報が掲載されたことに起因する損害等については、株式会社イーシティ埼玉、およびアットホームは一切責任を負いません。
    各物件情報の内容や画像等はすべて現況を優先させていただきます。
    お取引等(お取引の準備、資金調達等を含みます)の際には、内容や契約条件等について、各情報提供元より十分な説明を受け、ご自身でご確認の上、判断してください。
    このコーナーへの物件情報のご掲載、その他不動産業務ソリューション等についての不動産会社様のお問合せはこちらからお願いいたします。

    物件画像: