東京都台東区小島2丁目(新御徒町駅)の一戸建て:物件詳細
交通 所在地 |
駅徒歩 |
価格 |
間取り 建物面積 |
土地面積 私道負担面積 |
物件種目 築年月 |
|
都営大江戸線/新御徒町
東京都台東区小島2丁目
|
3分
|
3,800万円
|
4K
60.79m²
|
41.22m²
-
|
中古一戸建て
1972年10月(築53年1ヶ月)
|
|
2面採光
|
|
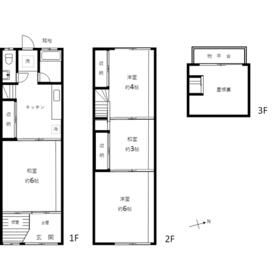
間取図
引き戸の開閉で、開放感ある大部屋使いからゲスト用の客間にチェンジ
|
周辺環境
|
その他の画像
|
| 交通 | 都営大江戸線 新御徒町駅 徒歩3分 |
|---|
| その他の交通 | 東京メトロ日比谷線 仲御徒町駅 徒歩10分 JR山手線 御徒町駅 徒歩12分 |
| 所在地 |
東京都台東区小島2丁目
|
| 物件種目 |
中古一戸建て |
| 価格 |
3,800万円 |
借地期間・地代(月額) |
20年 35,000円 |
| 権利金 |
- |
敷金または保証金 |
- / - |
| 維持費等 |
- |
その他一時金 |
- |
| 間取り |
4K(和 6・3 洋 6・4) |
建物面積 |
60.79m² |
| 土地権利 |
旧法賃借権 |
建物構造 |
木造 |
| 土地面積 |
41.22m² |
私道負担面積 |
- |
| 築年月 |
1972年10月(築53年1ヶ月)
|
都市計画 |
市街化区域 |
| 建物名 |
|
建築確認番号 |
- |
| 用途地域 |
商業地域 |
駐車場 |
- |
| 建ぺい率 |
80% |
容積率 |
500% |
| 階建 |
2階建 |
接道状況 |
東 4.0m 公道 接面3.0m
|
| 地目 |
宅地 |
地勢 |
平坦 |
| 国土法届出 |
- |
セットバック |
- |
| アピールポイント |
下町風情の残る街並み。スーパー徒歩4分、6路線利用可能な好立地。是非その目でお確かめください。 |
| リフォーム履歴 |
- |
| リノベーション履歴 |
- |
| 瑕疵保証 |
- |
| 瑕疵保険 |
- |
| 評価・証明書 |
- |
| 備考 |
主要採光面:東向き
引渡し2026年5月以降相談
民泊不可 板間付き余裕の空間
旧法借地権期間2031年9月28日迄
更新料/固定資産税の10%(非堅固) (堅固)固定資産税の15%
立替承諾料/(非堅固)固定資産税の3% (堅固)固定資産税の10%
譲渡承諾料/売買代金の10%(売主負担)/ 契約不適合責任免責/設備残置物扱い保証なし
|
| エネルギー消費性能 |
- |
| 断熱性能 |
- |
| 目安光熱費 |
- |
| バス・トイレ |
オートバス、追焚機能、浴室に窓あり |
| キッチン |
- |
| 設備・サービス |
上水道、下水道、都市ガス |
| その他 |
- |
| 現況 |
所有者居住中 |
引渡可能時期 |
相談 |
| 物件番号 |
6987954715 |
|
|
| 情報公開日 |
2025年10月17日 |
次回更新予定日 |
2025年11月11日 |
| ケータイ用バーコード |
- スマートフォンでこの物件を見る
- スマートフォンからもこの物件をご覧になれます。
|
※「-」と表示されている項目については、情報提供会社にご確認ください。
| 周辺施設 |
ライフ新御徒町店 |
| 距離 |
249m |
写真を見る |
| 周辺施設 |
まいばすけっと仲御徒町店 |
| 距離 |
391m |
写真を見る |
| 周辺施設 |
セブンイレブン新御徒町駅前店 |
| 距離 |
224m |
写真を見る |
| 周辺施設 |
元浅草郵便局 |
| 距離 |
246m |
写真を見る |
| 周辺施設 |
大江戸線・つくばエクスプレス新御徒町駅 |
| 距離 |
220m |
写真を見る |
| 周辺施設 |
公益財団法人ライフ・エクステンション研究所付属永寿総合病院 |
| 距離 |
656m |
写真を見る |
| 周辺施設 |
台東区立蔵前小学校 |
| 距離 |
691m |
写真を見る |
| 周辺施設 |
台東区立御徒町台東中学校 |
| 距離 |
621m |
ここから簡単にお問い合わせをすることができます。
(SSLでの暗号化での送信を希望されるお客さまは
こちら
よりお問い合わせください)
お問い合わせを行う前に
「個人情報の取り扱いについて」を必ずお読みください。
「個人情報の取り扱いについて」に同意いただいた場合は「上記にご同意の上 確認画面へ進む」のボタンをクリックしてください。
個人情報の取り扱いについて
皆さまが送付された個人情報はアットホーム(株)のサーバを経由し、お問い合わせ先の不動産会社にメールまたはFAXにて転送されるためアットホーム(株)にも保管されます。アットホーム(株)で保管された個人情報の取り扱いについては、【こちら】をご覧ください。
また、本画面でご記入いただいた個人情報は、お問い合わせ先の不動産会社でも保管します。 お問い合わせ先の不動産会社が保管する個人情報の取り扱いについては、不動産会社に直接お問い合わせください。
東京都知事免許(1)第107343号 |
|---|
- 交通:
- 都営大江戸線/新御徒町駅 徒歩3分
- 東京都台東区東上野1丁目7-2 冨田ビル1F
- TEL:
- 03-3831-0919
- FAX:
- 03-3831-8445
- 所属団体:
- (公社)東京都宅地建物取引業協会会員(公社)首都圏不動産公正取引協議会加盟
取引態様:専任媒介  - 00272045
|
- スマートフォンで
この不動産会社を見る

|
- 提携サイト等より掲載されている物件情報につきましては、不動産会社詳細情報にリンクされていないものがあります。
- 物件に関するお問合せは、物件詳細ページの「情報提供会社」に表示されている不動産会社へ直接お願いいたします。
- 間取図は、現況を優先させていただきます。
- 映像は物件の一部を撮影したものです。物件の契約にあたっての最終判断はご自身の判断に基づいて行ってください。
- 仲介手数料について

アットホームは物件情報の適正化に努めております。
内容に誤りがある場合にはこちらへご連絡ください。