新潟県三条市東本成寺(三条駅)の一戸建て:物件詳細
交通 所在地 |
駅徒歩 |
価格 |
間取り 建物面積 |
土地面積 私道負担面積 |
物件種目 築年月 |
JR信越本線/三条
新潟県三条市東本成寺
|
19分
|
2,480万円
|
6LDK
204.20m²
|
396.95m²
-
|
中古一戸建て
2000年10月(築25年1ヶ月)
|
駐車場3台分以上、バス1坪以上、2面採光、閑静な住宅街
|
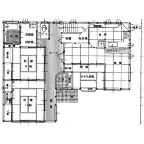
間取図
1階
|
間取図
2階
|
<
その他の画像
>
|
交通 | JR信越本線 三条駅 徒歩19分 |
---|
その他の交通 | JR弥彦線 北三条駅 徒歩27分 |
所在地 |
新潟県三条市東本成寺
|
物件種目 |
中古一戸建て |
価格 |
2,480万円 |
借地期間・地代(月額) |
- |
権利金 |
- |
敷金または保証金 |
- / - |
維持費等 |
- |
その他一時金 |
- |
間取り |
6LDK |
建物面積 |
204.20m² |
土地権利 |
所有権 |
建物構造 |
木造 |
土地面積 |
396.95m²(公簿) |
私道負担面積 |
- |
築年月 |
2000年10月(築25年1ヶ月)
|
都市計画 |
非線引区域 |
建物名 |
三条市東本成寺 中古戸建 |
建築確認番号 |
- |
用途地域 |
2種中高 |
駐車場 |
- |
建ぺい率 |
60% |
容積率 |
200% |
階建 |
2階建 |
接道状況 |
南 7.3m 公道
・ 東 5.1m 公道
・ 二方道路
|
地目 |
宅地 |
地勢 |
平坦 |
国土法届出 |
- |
セットバック |
- |
アピールポイント |
前面道路融雪有。駐車場計4台分有。 |
リフォーム履歴 |
■水回り:2025年7月 トイレ ※実施年月は最も古い履歴を表示 |
リノベーション履歴 |
- |
瑕疵保証 |
- |
瑕疵保険 |
- |
評価・証明書 |
- |
備考 |
・現況渡し(家財は売主で撤去します)
・水道管は連合管です。
・居住誘導区域、都市機能誘導区域
・車庫3台分内、左側のシャッターのみ自動です。他屋外駐車場1台分有。
(シャッター間口3.6m、2.7m、3.6mの並びです)
・引渡時期は要相談ください。
|
エネルギー消費性能 |
- |
断熱性能 |
- |
目安光熱費 |
- |
バス・トイレ |
追焚機能、シャワー付洗面化粧台、シャワールーム、温水洗浄便座、トイレ2ヶ所、浴室に窓あり |
キッチン |
カウンターキッチン、システムキッチン、食器洗浄乾燥機、IHクッキングヒーター、2口コンロ |
設備・サービス |
全居室収納、ウォークインクローゼット、クローゼット、浄化槽、室内物干し、上水道、都市ガス、電気、サンルーム、照明器具、複層ガラス |
その他 |
- |
現況 |
空家 |
引渡可能時期 |
相談 |
物件番号 |
6987980571 |
|
|
情報公開日 |
2025年10月11日 |
次回更新予定日 |
2025年10月25日 |
ケータイ用バーコード |
- スマートフォンでこの物件を見る
- スマートフォンからもこの物件をご覧になれます。
|
※「-」と表示されている項目については、情報提供会社にご確認ください。
ここから簡単にお問い合わせをすることができます。
(SSLでの暗号化での送信を希望されるお客さまは
こちら
よりお問い合わせください)
お問い合わせを行う前に
「個人情報の取り扱いについて」を必ずお読みください。
「個人情報の取り扱いについて」に同意いただいた場合は「上記にご同意の上 確認画面へ進む」のボタンをクリックしてください。
個人情報の取り扱いについて
皆さまが送付された個人情報はアットホーム(株)のサーバを経由し、お問い合わせ先の不動産会社にメールまたはFAXにて転送されるためアットホーム(株)にも保管されます。アットホーム(株)で保管された個人情報の取り扱いについては、【こちら】をご覧ください。
また、本画面でご記入いただいた個人情報は、お問い合わせ先の不動産会社でも保管します。 お問い合わせ先の不動産会社が保管する個人情報の取り扱いについては、不動産会社に直接お問い合わせください。
新潟県知事免許(9)第3203号 |
---|
- 交通:
- JR弥彦線/北三条駅 徒歩8分
- 新潟県三条市旭町1丁目1-19-3 ユタカビル
- TEL:
- 0256-35-5825
- FAX:
- 0256-34-5973
- 所属団体:
- (公社)新潟県宅地建物取引業協会会員(公社)首都圏不動産公正取引協議会加盟
取引態様:専任媒介  - 00730632
|
- スマートフォンで
この不動産会社を見る

|
- 提携サイト等より掲載されている物件情報につきましては、不動産会社詳細情報にリンクされていないものがあります。
- 物件に関するお問合せは、物件詳細ページの「情報提供会社」に表示されている不動産会社へ直接お願いいたします。
- 間取図は、現況を優先させていただきます。
- 映像は物件の一部を撮影したものです。物件の契約にあたっての最終判断はご自身の判断に基づいて行ってください。
- 仲介手数料について

アットホームは物件情報の適正化に努めております。
内容に誤りがある場合にはこちらへご連絡ください。