兵庫県神戸市灘区泉通5丁目(摩耶駅)の一戸建て:物件詳細
交通 所在地 |
駅徒歩 |
価格 |
間取り 建物面積 |
土地面積 私道負担面積 |
物件種目 築年月 |
|
JR東海道本線/摩耶
兵庫県神戸市灘区泉通5丁目
|
4分
|
5,980万円
|
3LDK
101.64m²
|
51.51m²
有 55.00m²(共有持分5151/24735)
|
新築一戸建て
2026年3月
|
|
南向き、全室2面採光、24時間換気システム、閑静な住宅街、フラット35S適合証明書あり
|
|
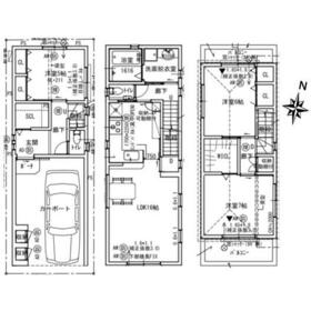
間取図
5,980万円 土地面積51.51㎡ 建物面積101.64㎡
|
外観
外壁の色は確定していません
|
その他の画像
|
| 交通 | JR東海道本線 摩耶駅 徒歩4分 |
|---|
| その他の交通 | 阪急神戸線 王子公園駅 徒歩7分 阪神本線 西灘駅 徒歩7分 |
| 所在地 |
兵庫県神戸市灘区泉通5丁目
|
| 物件種目 |
新築一戸建て |
| 価格 |
5,980万円 |
借地期間・地代(月額) |
- |
| 権利金 |
- |
敷金または保証金 |
- / - |
| 維持費等 |
- |
その他一時金 |
- |
| 間取り |
3LDK(洋 5・6・7 LDK 16) |
建物面積 |
101.64m² |
| 土地権利 |
所有権 |
建物構造 |
木造 |
| 土地面積 |
51.51m²(公簿) |
私道負担面積 |
有 55.00m²(共有持分5151/24735) |
| 築年月 |
2026年3月
|
都市計画 |
市街化区域 |
| 建物名 |
泉通5丁目新築一戸建 |
建築確認番号 |
第J25-20373号 |
| 用途地域 |
1種住居 |
駐車場 |
有 無料 |
| 建ぺい率 |
60% |
容積率 |
200% |
| 階建 |
3階建 |
接道状況 |
南 5.8m 公道 接面4.3m
・ 東 4.0m 私道 位置指定有 接面11.7m
・ 二方道路
|
| 地目 |
宅地 |
地勢 |
平坦 |
| 国土法届出 |
- |
セットバック |
- |
| アピールポイント |
配膳がラクなカウンターキッチン付♪お鍋とフライパンを使いながらヤカンもおけるコンロ3口以上の仕様なので、進行ペースがスピードアップ♪鏡面保護シールが初々しい新築の建物♪閑静な住宅街立地の物件だから、騒々しい街の喧噪から離れて生活できます♪家事がたくさんあるときに大助かりなオートバス仕様♪自然に団らんが生まれる3LDK♪ご案内いたしますのでお気軽にご連絡ください♪ |
| リフォーム履歴 |
- |
| リノベーション履歴 |
- |
| 瑕疵保証 |
- |
| 瑕疵保険 |
- |
| 評価・証明書 |
■フラット35S適合証明書 フラット35S適合証明書あり |
| 備考 |
主要採光面:南向き
工事完了予定日:2026年3月
建物面積には車庫面積11.34㎡含む
|
| エネルギー消費性能 |
- |
| 断熱性能 |
- |
| 目安光熱費 |
- |
| バス・トイレ |
ミストサウナ、浴室暖房、浴室乾燥機、オートバス、追焚機能、高温差湯式、シャワー付洗面化粧台、温水洗浄便座、トイレ2ヶ所、浴室に窓あり |
| キッチン |
カウンターキッチン、システムキッチン、食器洗浄乾燥機、浄水器、3口以上コンロ、キッチン床暖房 |
| 設備・サービス |
全居室収納、ウォークインクローゼット、床暖房、シューズインクローゼット、クローゼット、床下収納、モニター付インターホン、シャッター雨戸、ダウンウォール収納、省エネ給湯器、全居室フローリング、クッションフロア、上水道、下水道、都市ガス、電気、人感センサー付照明、ダウンライト、火災警報器(報知機)、複層ガラス、Low-E ガラス |
| その他 |
- |
| 現況 |
未着工 |
引渡可能時期 |
2026年3月下旬予定 |
| 物件番号 |
6987988470 |
|
|
| 情報公開日 |
2025年10月11日 |
次回更新予定日 |
2025年12月19日 |
| ケータイ用バーコード |
- スマートフォンでこの物件を見る
- スマートフォンからもこの物件をご覧になれます。
|
※「-」と表示されている項目については、情報提供会社にご確認ください。
| 周辺施設 |
Foods Market satake摩耶駅前店 |
| 距離 |
15m |
| 周辺施設 |
スーパーマルハチ王子公園店 |
| 距離 |
533m |
| 周辺施設 |
セブンイレブンハートインJR摩耶駅改札口店 |
| 距離 |
82m |
| 周辺施設 |
幼保連携型めばえの園認定こども園 |
| 距離 |
392m |
ここから簡単にお問い合わせをすることができます。
(SSLでの暗号化での送信を希望されるお客さまは
こちら
よりお問い合わせください)
お問い合わせを行う前に
「個人情報の取り扱いについて」を必ずお読みください。
「個人情報の取り扱いについて」に同意いただいた場合は「上記にご同意の上 確認画面へ進む」のボタンをクリックしてください。
個人情報の取り扱いについて
皆さまが送付された個人情報はアットホーム(株)のサーバを経由し、お問い合わせ先の不動産会社にメールまたはFAXにて転送されるためアットホーム(株)にも保管されます。アットホーム(株)で保管された個人情報の取り扱いについては、【こちら】をご覧ください。
また、本画面でご記入いただいた個人情報は、お問い合わせ先の不動産会社でも保管します。 お問い合わせ先の不動産会社が保管する個人情報の取り扱いについては、不動産会社に直接お問い合わせください。
兵庫県知事免許(7)第10160号 |
|---|
- 交通:
- 阪神本線/青木駅 徒歩1分
- 兵庫県神戸市東灘区青木6丁目4-10
- TEL:
- 078-451-0121
- FAX:
- 078-451-9048
- 所属団体:
- (一社)兵庫県宅地建物取引業協会会員(公社)近畿地区不動産公正取引協議会加盟
取引態様:専任媒介  - 50012172
|
- スマートフォンで
この不動産会社を見る

|
- 提携サイト等より掲載されている物件情報につきましては、不動産会社詳細情報にリンクされていないものがあります。
- 物件に関するお問合せは、物件詳細ページの「情報提供会社」に表示されている不動産会社へ直接お願いいたします。
- 間取図は、現況を優先させていただきます。
- 映像は物件の一部を撮影したものです。物件の契約にあたっての最終判断はご自身の判断に基づいて行ってください。
- 仲介手数料について

アットホームは物件情報の適正化に努めております。
内容に誤りがある場合にはこちらへご連絡ください。