不動産 賃貸 マンション等の住宅情報:埼玉住まい情報


埼玉県春日部市大場(武里駅)の一戸建て:物件詳細

  • 物件詳細
  • 情報の見方
  • 印刷用画面
交通
所在地
駅徒歩 価格 間取り
建物面積
土地面積
私道負担面積
物件種目
築年月

東武伊勢崎線/武里 新着

埼玉県春日部市大場

14分

1,600万円

4SLDK

95.22m²

100.06m²

有 1.04m²

中古一戸建て

1994年9月(築31年4ヶ月)

おすすめPOINT南向き、バス1坪以上、閑静な住宅街、整形地、前面棟無

おすすめコメント

武里小学校まで約250メートルの距離です。

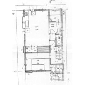
間取図

間取図

1階

外観

外観

その他の画像
  • 間取図
  • キッチン
  • バス/シャワー
  • 洗面
  • トイレ
  • トイレ
    • とりあえず保存
    • お問い合わせ
    交通

    東武伊勢崎線 武里駅 徒歩14分

    その他の交通

    東武伊勢崎線 せんげん台駅 徒歩25分

    所在地 埼玉県春日部市大場
    物件種目 中古一戸建て
    価格 1,600万円 借地期間・地代(月額)
    権利金 敷金または保証金 - / -
    維持費等 その他一時金
    間取り 4SLDK(和 6・6 洋 4.5・5 S 3) 建物面積 95.22m²
    土地権利 所有権 建物構造 木造
    土地面積 100.06m²(公簿) 私道負担面積 有 1.04m²
    築年月 1994年9月(築31年4ヶ月) 都市計画 市街化区域
    建物名   建築確認番号
    用途地域 1種中高 駐車場
    建ぺい率 60% 容積率 200%
    階建 2階建 接道状況 南 4.0m 私道
    地目 宅地 地勢 平坦
    国土法届出 セットバック
    アピールポイント 私見にはなりますが、平成25年に外壁・屋根・内部設備を大規模リフォームを実施しておりますので、クリーニングを実施すればそのままお住まいいただける案件ではないでしょうか。現在売主様居住中の為、物件案内等についてはご予定をお合わせ頂く必要がございますのでご了承くださいませ。
    リフォーム履歴 ■水回り:2013年6月
    キッチン、浴室、トイレ、洗面所
    トイレは1階のみ
    ■内装:2013年6月
    平成25年1階トイレ・洗面室のクロス張替え・1階和室畳表替え  平成17年2階畳表替え
    ■外装:2013年6月
    外壁、屋根
    ※屋根ーガルバニウム葺に変更  ※外壁塗装等
    ※実施年月は最も古い履歴を表示
    リノベーション履歴
    瑕疵保証
    瑕疵保険
    評価・証明書
    備考
    バルコニー:4.8m²
    主要採光面:南向き
    エネルギー消費性能
    断熱性能
    目安光熱費
    バス・トイレ 追焚機能、シャワー付洗面化粧台、温水洗浄便座、トイレ2ヶ所、浴室に窓あり
    キッチン 独立型キッチン
    設備・サービス 全居室収納、床下収納、上水道、下水道、都市ガス、電気、ルーフバルコニー
    その他
    現況 所有者居住中 引渡可能時期 相談
    物件番号 6987991079 仲介手数料 売買代金の3%+6万円
    情報公開日 2025年10月12日 次回更新予定日 2025年12月25日
    ケータイ用バーコード

    QRコード

    スマートフォンでこの物件を見る
    スマートフォンからもこの物件をご覧になれます。
    ※「-」と表示されている項目については、情報提供会社にご確認ください。

    この物件の周辺情報

    周辺施設 スーパーバリュー春日部大場店
    距離 1079m
    周辺施設 ファミリーマート春日部大場店
    距離 448m
    周辺施設 ドラッグセイムス春日部大場店
    距離 652m
    周辺施設 春日部市立春日部南中学校
    距離 1000m
    周辺施設 春日部市立武里小学校
    距離 1210m
    周辺施設 武里白百合幼稚園
    距離 617m
    周辺施設 医療法人社団全仁会東都春日部病院
    距離 808m
    周辺施設 春日部武里団地内郵便局
    距離 900m

    クイックお問い合わせ

    ここから簡単にお問い合わせをすることができます。
    (SSLでの暗号化での送信を希望されるお客さまは こちら よりお問い合わせください)

    お問い合わせ内容(必須)
    お名前(必須) 姓  名 
    メールアドレス(必須)
    ※携帯電話のメールアドレスをご入力される方はこちらをご確認ください
    電話番号(必須)
    - -

    ※入力いただいた電話番号へSMSまたは音声でパスワードをご連絡します。

    携帯電話の番号をご入力の方へ

    携帯電話の番号をご入力の方へ
    確認画面にて送信ボタンをクリックするとSMSが携帯電話に届きます。
    そのSMSに記載のパスワード(認証番号)を入力し、お問い合わせを完了してください。
    尚、SMSの送信者番号は 0005 202 760 となります。
    これはアットホームの固定番号です。

    備考欄 希望条件、物件案内希望日、質問などがございましたらご記入ください。
    お問い合わせを行う前に「個人情報の取り扱いについて」を必ずお読みください。
    「個人情報の取り扱いについて」に同意いただいた場合は「上記にご同意の上 確認画面へ進む」のボタンをクリックしてください。

    個人情報の取り扱いについて

    皆さまが送付された個人情報はアットホーム(株)のサーバを経由し、お問い合わせ先の不動産会社にメールまたはFAXにて転送されるためアットホーム(株)にも保管されます。アットホーム(株)で保管された個人情報の取り扱いについては、【こちら】をご覧ください。
    また、本画面でご記入いただいた個人情報は、お問い合わせ先の不動産会社でも保管します。 お問い合わせ先の不動産会社が保管する個人情報の取り扱いについては、不動産会社に直接お問い合わせください。

    情報提供会社

    情報提供会社

    (株)ノーサイドスピリット

    栃木県知事免許(2)第5004号

    交通:
    東武宇都宮線/東武宇都宮駅 徒歩25分
    栃木県宇都宮市桜4丁目6-4 
    TEL:
    028-688-7447
    FAX:
    028-688-7449
    所属団体:
    (公社)栃木県宅地建物取引業協会会員
    (公社)首都圏不動産公正取引協議会加盟

    取引態様:専任媒介

    • 会社情報
    • 00260491
    スマートフォンで
    この不動産会社を見る
    QRコード
    • とりあえず保存
    • お問い合わせ
    • 提携サイト等より掲載されている物件情報につきましては、不動産会社詳細情報にリンクされていないものがあります。
    • 物件に関するお問合せは、物件詳細ページの「情報提供会社」に表示されている不動産会社へ直接お願いいたします。
    • 間取図は、現況を優先させていただきます。
    • 映像は物件の一部を撮影したものです。物件の契約にあたっての最終判断はご自身の判断に基づいて行ってください。
    • 仲介手数料について仲介手数料

    アットホームは物件情報の適正化に努めております。 内容に誤りがある場合にはこちらへご連絡ください。

    【埼玉住まい情報】では、日本全国の物件から賃貸マンションや賃貸アパート・賃貸一戸建て等の賃貸住宅情報、新築マンション・分譲マンションや中古マンション等の売買マンション情報、新築一戸建てや中古一戸建てなどの戸建住宅、 土地など、総合的な不動産住宅情報検索サービスを提供致します。
    【埼玉住まい情報】から、選りすぐりの不動産物件を探してみましょう。

    【免責事項】
    このコーナーの運営はアットホーム株式会社(https://www.athome.co.jp/)が行っています。
    このコーナーに掲載している物件情報は、「アットホーム不動産情報ネットワーク」に加盟する不動産会社等(情報提供元)から提供されています。信頼性の高い情報提供が行えるよう、最大限の努力をしておりますが、その内容を保証するものではありません。 利用者のみなさまと各情報提供元との取引に起因する損害および情報が掲載されたことに起因する損害等については、株式会社イーシティ埼玉、およびアットホームは一切責任を負いません。
    各物件情報の内容や画像等はすべて現況を優先させていただきます。
    お取引等(お取引の準備、資金調達等を含みます)の際には、内容や契約条件等について、各情報提供元より十分な説明を受け、ご自身でご確認の上、判断してください。
    このコーナーへの物件情報のご掲載、その他不動産業務ソリューション等についての不動産会社様のお問合せはこちらからお願いいたします。

    物件画像: