福井県福井市舞屋町(ベル前駅)の一戸建て:物件詳細
交通 所在地 |
駅徒歩 |
価格 |
間取り 建物面積 |
土地面積 私道負担面積 |
物件種目 築年月 |
|
福井鉄道福武線/ベル前
福井県福井市舞屋町
|
15分
|
2,860万円
|
3LDK
95.73m²
|
124.28m²
なし
|
新築一戸建て
2026年4月
|
|
駐車場2台分、バス1坪以上、全室2面採光、閑静な住宅街、オール電化、整形地、分譲地内
|
|
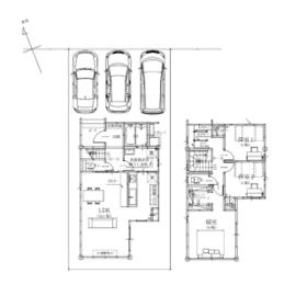
間取図
複数のおかずや常備菜作りもキッチンで同時進行!段取り良く進めやすい作業スペースです
|
その他
区画図で物件と隣接地のイメージ把握
|
その他の画像
|
| 交通 | 福井鉄道福武線 ベル前駅 徒歩15分 |
|---|
| その他の交通 | ハピラインふくい 越前花堂駅 徒歩20分 越美北線 越前花堂駅 徒歩28分 |
| 所在地 |
福井県福井市舞屋町
|
| 物件種目 |
新築一戸建て |
| 価格 |
2,860万円 |
借地期間・地代(月額) |
- |
| 権利金 |
- |
敷金または保証金 |
- / - |
| 維持費等 |
- |
その他一時金 |
- |
| 間取り |
3LDK(洋 5・5・9) |
建物面積 |
95.73m² |
| 土地権利 |
所有権 |
建物構造 |
木造 |
| 土地面積 |
124.28m²(公簿) |
私道負担面積 |
なし |
| 築年月 |
2026年4月
|
都市計画 |
市街化区域 |
| 建物名 |
|
建築確認番号 |
第 R07確認建築福井住セ00455 号 |
| 用途地域 |
1種住居 |
駐車場 |
- |
| 建ぺい率 |
60% |
容積率 |
200% |
| 階建 |
2階建 |
接道状況 |
北東 5.9m 公道 接面7.5m
|
| 地目 |
宅地 |
地勢 |
平坦 |
| 国土法届出 |
- |
セットバック |
- |
| アピールポイント |
喧騒を離れた閑静な住宅街立地の物件/どの部屋も自然光を異なる方角から取り込める全室2面採光なので、どの部屋も居心地よく快適です/初めての入居者様をお待ちしている新築の住戸/EV時代の到来に対応した自動車用充電設備敷設だから、環境に優しいエコライフを始められます/環境に優しいオール電化仕様/家族が帰宅を焦がれる3LDK/ご案内いたしますのでお気軽にご連絡ください |
| リフォーム履歴 |
- |
| リノベーション履歴 |
- |
| 瑕疵保証 |
- |
| 瑕疵保険 |
- |
| 評価・証明書 |
- |
| 備考 |
主要採光面:東向き
|
| エネルギー消費性能 |
- |
| 断熱性能 |
- |
| 目安光熱費 |
- |
| バス・トイレ |
オートバス、追焚機能、シャワー付洗面化粧台、温水洗浄便座、トイレ2ヶ所 |
| キッチン |
カウンターキッチン、システムキッチン、食器洗浄乾燥機、IHクッキングヒーター、2口コンロ、グリル |
| 設備・サービス |
全居室収納、ウォークインクローゼット、EV車充電設備、クローゼット、モニター付インターホン、ダブルロックドア、省エネ給湯器、全居室フローリング、室内物干し、上水道、下水道、電気、エアコン、照明器具、複層ガラス |
| その他 |
- |
| 現況 |
建築中 |
引渡可能時期 |
相談 |
| 物件番号 |
6988022471 |
|
|
| 情報公開日 |
2025年11月19日 |
次回更新予定日 |
2025年12月17日 |
| ケータイ用バーコード |
- スマートフォンでこの物件を見る
- スマートフォンからもこの物件をご覧になれます。
|
※「-」と表示されている項目については、情報提供会社にご確認ください。
| 周辺施設 |
クスリのアオキ舞屋店 |
| 距離 |
261m |
写真を見る |
| 周辺施設 |
認定こども園エンゼル保育園 |
| 距離 |
284m |
写真を見る |
| 周辺施設 |
ワイプラザグルメ館江守店 |
| 距離 |
270m |
写真を見る |
| 周辺施設 |
ひらざわ内科 ハートクリニック |
| 距離 |
350m |
写真を見る |
| 周辺施設 |
ファミリーマート福井西谷店 |
| 距離 |
445m |
写真を見る |
| 周辺施設 |
福井市立社南小学校 |
| 距離 |
1100m |
写真を見る |
| 周辺施設 |
福井市立至民中学校 |
| 距離 |
2200m |
写真を見る |
ここから簡単にお問い合わせをすることができます。
(SSLでの暗号化での送信を希望されるお客さまは
こちら
よりお問い合わせください)
お問い合わせを行う前に
「個人情報の取り扱いについて」を必ずお読みください。
「個人情報の取り扱いについて」に同意いただいた場合は「上記にご同意の上 確認画面へ進む」のボタンをクリックしてください。
個人情報の取り扱いについて
皆さまが送付された個人情報はアットホーム(株)のサーバを経由し、お問い合わせ先の不動産会社にメールまたはFAXにて転送されるためアットホーム(株)にも保管されます。アットホーム(株)で保管された個人情報の取り扱いについては、【こちら】をご覧ください。
また、本画面でご記入いただいた個人情報は、お問い合わせ先の不動産会社でも保管します。 お問い合わせ先の不動産会社が保管する個人情報の取り扱いについては、不動産会社に直接お問い合わせください。
国土交通大臣免許(17)第19号 |
|---|
- 交通:
- ハピラインふくい/福井駅 徒歩7分
- 福井県福井市中央3丁目1-5
- TEL:
- 0776-23-2300
- FAX:
- 0776-27-7945
- 所属団体:
- (公社)福井県宅地建物取引業協会会員不動産公正取引協議会加盟
取引態様:売主  - 40996087
|
- スマートフォンで
この不動産会社を見る

|
- 提携サイト等より掲載されている物件情報につきましては、不動産会社詳細情報にリンクされていないものがあります。
- 物件に関するお問合せは、物件詳細ページの「情報提供会社」に表示されている不動産会社へ直接お願いいたします。
- 間取図は、現況を優先させていただきます。
- 映像は物件の一部を撮影したものです。物件の契約にあたっての最終判断はご自身の判断に基づいて行ってください。
- 仲介手数料について

アットホームは物件情報の適正化に努めております。
内容に誤りがある場合にはこちらへご連絡ください。