福岡県行橋市大字中津熊(行橋駅)の一戸建て:物件詳細
交通 所在地 |
駅徒歩 |
価格 |
間取り 建物面積 |
土地面積 私道負担面積 |
物件種目 築年月 |
|
JR日豊本線/行橋
福岡県行橋市大字中津熊
|
17分
|
2,800万円
|
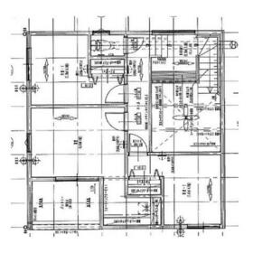
4LDK
98.94m²
|
195.48m²
-
|
中古一戸建て
2022年8月(築3年10ヶ月)
|
|
天井高2.5M以上、バス1坪以上、吹抜、オール電化
|
|
間取図
1階
|
間取図
2階
|
<
その他の画像
>
|
| 交通 | JR日豊本線 行橋駅 徒歩17分 |
|---|
| その他の交通 | 平成筑豊鉄道 行橋駅 徒歩18分 |
| 所在地 |
福岡県行橋市大字中津熊
|
| 物件種目 |
中古一戸建て |
| 価格 |
2,800万円 |
借地期間・地代(月額) |
- |
| 権利金 |
- |
敷金または保証金 |
- / - |
| 維持費等 |
- |
その他一時金 |
- |
| 間取り |
4LDK |
建物面積 |
98.94m² |
| 土地権利 |
所有権 |
建物構造 |
木造 |
| 土地面積 |
195.48m²(公簿) |
私道負担面積 |
- |
| 築年月 |
2022年8月(築3年10ヶ月)
|
都市計画 |
非線引区域 |
| 建物名 |
|
建築確認番号 |
- |
| 用途地域 |
無指定 |
駐車場 |
- |
| 建ぺい率 |
70% |
容積率 |
200% |
| 階建 |
2階建 |
接道状況 |
-
|
| 地目 |
宅地 |
地勢 |
- |
| 国土法届出 |
- |
セットバック |
- |
| アピールポイント |
■太陽光パネル8.16kw、蓄電池15kw搭載
■令和4年8月築♪
物件のおススメPOINT
・2台以上駐車可能♪
・オール電化物件♪
・太陽光発電、蓄電池設置済み♪
・車で5分圏内にスーパーなど周辺施設が充実♪
・カーポート1台設置!
【LINEでやりとり可能】
お客様のタイミングで気軽にご連絡していただけます。
お仕事・家事・育児などお忙しい皆様にも喜ばれています♪
【地元に強い】
行橋市に詳しいメンバーが揃っています♪
*同様条件の物件、周辺物件も一緒にご紹介可能♪
*ローンがどのぐらい組めるのか、会社によって変わります!
*家具や家電もローンに組み込むことも可能です♪ |
| リフォーム履歴 |
- |
| リノベーション履歴 |
- |
| 瑕疵保証 |
- |
| 瑕疵保険 |
- |
| 評価・証明書 |
- |
| 備考 |
(ステップ1)まずは「アットホームで○○の物件を見て連絡しました。」とご連絡下さい。 その後、担当スタッフから詳細についてご連絡させて頂きます。 お電話の際、気になる点等ございましたらご遠慮なくご相談下さい! (ステップ2) ご案内の日程が決まりましたら、担当スタッフが現地の鍵を持参し、物件のご案内をさせて頂きます。場所が分からない場合は最寄り駅・弊社の店舗・わかりやすい施設等で お待ち合わせさせて頂き、一緒に現地へ行く事も可能です。 (ステップ3) ご案内当日。 生活イメージしながら、室内の雰囲気や、周辺環境までの距離を確かめて頂きます。 その際に聞き忘れていた事や、ご見学中に出てきた疑問をお気軽に担当スタッフにご相談下さい。 (ステップ4) ご見学終了後、現地もしくは店舗等で ◎現居のお困り事 ◎月々のお支払い総額 ◎いくらまで住宅ローンが借入れできるのか? ◎諸費用等についてご案内させて頂きます。 その他、ご納得いくまでご相談頂きご検討下さい。もちろん!お身内の方やご友人をご招待頂き、再度ご案内も承っております♪
|
| エネルギー消費性能 |
- |
| 断熱性能 |
- |
| 目安光熱費 |
- |
| バス・トイレ |
浴室乾燥機、トイレ2ヶ所 |
| キッチン |
システムキッチン、食器洗浄乾燥機、浄水器、IHクッキングヒーター |
| 設備・サービス |
全居室収納、ウォークインクローゼット、太陽光発電システム、全居室フローリング |
| その他 |
- |
| 現況 |
所有者居住中 |
引渡可能時期 |
相談 |
| 物件番号 |
6988033599 |
|
|
| 情報公開日 |
2025年10月24日 |
次回更新予定日 |
2026年5月21日 |
| ケータイ用バーコード |
- スマートフォンでこの物件を見る
- スマートフォンからもこの物件をご覧になれます。
|
※「-」と表示されている項目については、情報提供会社にご確認ください。
ここから簡単にお問い合わせをすることができます。
(SSLでの暗号化での送信を希望されるお客さまは
こちら
よりお問い合わせください)
お問い合わせを行う前に
「個人情報の取り扱いについて」を必ずお読みください。
「個人情報の取り扱いについて」に同意いただいた場合は「上記にご同意の上 確認画面へ進む」のボタンをクリックしてください。
個人情報の取り扱いについて
皆さまが送付された個人情報はアットホーム(株)のサーバを経由し、お問い合わせ先の不動産会社にメールまたはFAXにて転送されるためアットホーム(株)にも保管されます。アットホーム(株)で保管された個人情報の取り扱いについては、【こちら】をご覧ください。
また、本画面でご記入いただいた個人情報は、お問い合わせ先の不動産会社でも保管します。 お問い合わせ先の不動産会社が保管する個人情報の取り扱いについては、不動産会社に直接お問い合わせください。
福岡県知事免許(2)第19530号 |
|---|
- 交通:
- 北九州モノレール/守恒駅 徒歩4分
- 福岡県北九州市小倉南区守恒1丁目11-5 寿康ビル101号
- TEL:
- 093-383-9081
- FAX:
- 093-383-9082
- 所属団体:
- (公社)福岡県宅地建物取引業協会会員(一社)九州不動産公正取引協議会加盟
取引態様:一般媒介  - 80505248
|
- スマートフォンで
この不動産会社を見る

|
- 提携サイト等より掲載されている物件情報につきましては、不動産会社詳細情報にリンクされていないものがあります。
- 物件に関するお問合せは、物件詳細ページの「情報提供会社」に表示されている不動産会社へ直接お願いいたします。
- 間取図は、現況を優先させていただきます。
- 映像は物件の一部を撮影したものです。物件の契約にあたっての最終判断はご自身の判断に基づいて行ってください。
- 仲介手数料について

アットホームは物件情報の適正化に努めております。
内容に誤りがある場合にはこちらへご連絡ください。