東京都日野市新井1丁目(高幡不動駅)の一戸建て:物件詳細
交通 所在地 |
駅徒歩 |
価格 |
間取り 建物面積 |
土地面積 私道負担面積 |
物件種目 築年月 |
|
多摩モノレール/高幡不動
東京都日野市新井1丁目
|
15分
|
5,280万円
|
3LDK
93.95m²
|
118.00m²
-
|
新築一戸建て
2026年4月
|
|
駐車場2台分、閑静な住宅街
|
|
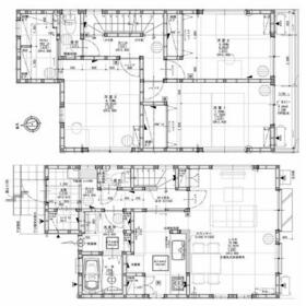
間取図
3LDK、土地面積118m2、建物面積93.95m2
|
外観
青空が映える現地外観。ゆったりとした住環境です。
|
<
その他の画像
>
|
| 交通 | 多摩モノレール 高幡不動駅 徒歩15分 |
|---|
| その他の交通 | 京王線 高幡不動駅 徒歩17分 京王線 百草園駅 徒歩15分 |
| 所在地 |
東京都日野市新井1丁目
|
| 物件種目 |
新築一戸建て |
| 価格 |
5,280万円 |
借地期間・地代(月額) |
- |
| 権利金 |
- |
敷金または保証金 |
- / - |
| 維持費等 |
- |
その他一時金 |
- |
| 間取り |
3LDK(洋 7.2・6.7・6 LDK 16.9) |
建物面積 |
93.95m² |
| 土地権利 |
所有権 |
建物構造 |
木造 |
| 土地面積 |
118.00m²(公簿) |
私道負担面積 |
- |
| 築年月 |
2026年4月
|
都市計画 |
市街化区域 |
| 建物名 |
|
建築確認番号 |
第25UDI1T建02601号 |
| 用途地域 |
1種低層 |
駐車場 |
- |
| 建ぺい率 |
- |
容積率 |
- |
| 階建 |
2階建 |
接道状況 |
-
|
| 地目 |
宅地 |
地勢 |
- |
| 国土法届出 |
- |
セットバック |
- |
| アピールポイント |
【駅まで平坦アクセス】閑静な住宅街にある新築住宅。 |
| リフォーム履歴 |
- |
| リノベーション履歴 |
- |
| 瑕疵保証 |
- |
| 瑕疵保険 |
- |
| 評価・証明書 |
- |
| 備考 |
-
|
| エネルギー消費性能 |
- |
| 断熱性能 |
- |
| 目安光熱費 |
- |
| バス・トイレ |
浴室乾燥機、追焚機能、シャワー付洗面化粧台、トイレ2ヶ所 |
| キッチン |
食器洗浄乾燥機、食器乾燥機、浄水器、3口以上コンロ |
| 設備・サービス |
全居室収納、モニター付インターホン、ディンプルキー、上水道、下水道、都市ガス |
| その他 |
- |
| 現況 |
建築中 |
引渡可能時期 |
相談 |
| 物件番号 |
6988066717 |
|
|
| 情報公開日 |
2025年10月19日 |
次回更新予定日 |
2026年3月22日 |
| ケータイ用バーコード |
- スマートフォンでこの物件を見る
- スマートフォンからもこの物件をご覧になれます。
|
※「-」と表示されている項目については、情報提供会社にご確認ください。
| 周辺施設 |
京王ストア 高幡店 |
| 距離 |
1400m |
写真を見る |
| 周辺施設 |
向島用水親水路 |
| 距離 |
830m |
写真を見る |
| 周辺施設 |
高幡不動 参道 |
| 距離 |
1392m |
写真を見る |
| 周辺施設 |
高幡不動尊 金剛寺 |
| 距離 |
1538m |
写真を見る |
| 周辺施設 |
多摩丘陵自然公園 |
| 距離 |
1638m |
写真を見る |
ここから簡単にお問い合わせをすることができます。
(SSLでの暗号化での送信を希望されるお客さまは
こちら
よりお問い合わせください)
お問い合わせを行う前に
「個人情報の取り扱いについて」を必ずお読みください。
「個人情報の取り扱いについて」に同意いただいた場合は「上記にご同意の上 確認画面へ進む」のボタンをクリックしてください。
個人情報の取り扱いについて
皆さまが送付された個人情報はアットホーム(株)のサーバを経由し、お問い合わせ先の不動産会社にメールまたはFAXにて転送されるためアットホーム(株)にも保管されます。アットホーム(株)で保管された個人情報の取り扱いについては、【こちら】をご覧ください。
また、本画面でご記入いただいた個人情報は、お問い合わせ先の不動産会社でも保管します。 お問い合わせ先の不動産会社が保管する個人情報の取り扱いについては、不動産会社に直接お問い合わせください。
東京都知事免許(2)第101293号 |
|---|
- 交通:
- 京王線/西調布駅 徒歩3分
- 東京都調布市上石原1丁目36-6 西調布シティ104
- TEL:
- 042-444-8165
- FAX:
- 042-444-8167
- 所属団体:
- (公社)東京都宅地建物取引業協会会員(公社)首都圏不動産公正取引協議会加盟
取引態様:媒介  - 00263624
|
- スマートフォンで
この不動産会社を見る

|
- 提携サイト等より掲載されている物件情報につきましては、不動産会社詳細情報にリンクされていないものがあります。
- 物件に関するお問合せは、物件詳細ページの「情報提供会社」に表示されている不動産会社へ直接お願いいたします。
- 間取図は、現況を優先させていただきます。
- 映像は物件の一部を撮影したものです。物件の契約にあたっての最終判断はご自身の判断に基づいて行ってください。
- 仲介手数料について

アットホームは物件情報の適正化に努めております。
内容に誤りがある場合にはこちらへご連絡ください。