神奈川県横浜市南区堀ノ内町2丁目(蒔田駅)の一戸建て:物件詳細
交通 所在地 |
駅徒歩 |
価格 |
間取り 建物面積 |
土地面積 私道負担面積 |
物件種目 築年月 |
|
ブルーライン/蒔田
神奈川県横浜市南区堀ノ内町2丁目
|
11分
|
4,880万円
|
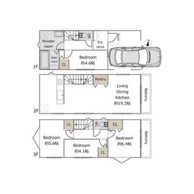
4LDK
106.41m²
|
59.17m²
なし
|
新築一戸建て
2026年2月
|
|
全室2面採光、2面採光、閑静な住宅街、整形地、フラット35適合証明書あり
|
|
間取図
A号棟(4,880万円)
|
外観
完成イメージパース
|
<
その他の画像
>
|
| 交通 | ブルーライン 蒔田駅 徒歩11分 |
|---|
| その他の交通 | ブルーライン 吉野町駅 徒歩17分 京急本線 南太田駅 徒歩19分 |
| 所在地 |
神奈川県横浜市南区堀ノ内町2丁目
|
| 物件種目 |
新築一戸建て |
| 価格 |
4,880万円 |
借地期間・地代(月額) |
- |
| 権利金 |
- |
敷金または保証金 |
- / - |
| 維持費等 |
- |
その他一時金 |
- |
| 間取り |
4LDK |
建物面積 |
106.41m² |
| 土地権利 |
所有権 |
建物構造 |
木造 |
| 土地面積 |
59.17m²(実測) |
私道負担面積 |
なし |
| 築年月 |
2026年2月
|
都市計画 |
市街化区域 |
| 建物名 |
堀ノ内町2丁目 新築戸建全2棟 |
建築確認番号 |
第2025SBC-確00843Y号他 |
| 用途地域 |
1種住居 |
駐車場 |
- |
| 建ぺい率 |
60% |
容積率 |
200% |
| 階建 |
2階建 |
接道状況 |
東 4.5m 公道
|
| 地目 |
宅地 |
地勢 |
- |
| 国土法届出 |
- |
セットバック |
- |
| アピールポイント |
閑静な住宅街に全2棟の新築住宅が誕生します♪
お日様をしっかりと取り込む間取り設計・生活動線にも優れたいますので是非プレゼンさせて下さい☆
設備もちょっとこだわっています♪丁度良いお家を買いませんか? |
| リフォーム履歴 |
- |
| リノベーション履歴 |
- |
| 瑕疵保証 |
- |
| 瑕疵保険 |
- |
| 評価・証明書 |
■フラット35適合証明書 フラット35適合証明書あり |
| 備考 |
工事完了予定日:2026年2月
堀ノ内町2丁目 新築戸建全2棟
▼吉野町駅、南太田駅までも徒歩圏内☆
▼横浜駅までのアクセスも良好で、通勤通学に便利!
▼小学校まで徒歩約8分、中学校までは徒歩約14分でお子様の通学も安心。
▼スーパー、コンビニ、ドラッグストアも充実しているため毎日にのお買い物も便利☆
▼設備・仕様をショールームにてご覧いただけます。
お気軽にお問合せ下さい!⇒【 045-313-0400 】
|
| エネルギー消費性能 |
- |
| 断熱性能 |
- |
| 目安光熱費 |
- |
| バス・トイレ |
浴室乾燥機、オートバス、追焚機能、シャワー付洗面化粧台、温水洗浄便座、トイレ2ヶ所、浴室に窓あり |
| キッチン |
システムキッチン、食器洗浄乾燥機、食器乾燥機、浄水器、3口以上コンロ |
| 設備・サービス |
全居室収納、クローゼット、床下収納、モニター付インターホン、カードキー、全居室フローリング、上水道、下水道、都市ガス、電気、複層ガラス |
| その他 |
- |
| 現況 |
建築中 |
引渡可能時期 |
相談 |
| 物件番号 |
6988111460 |
|
|
| 情報公開日 |
2025年10月23日 |
次回更新予定日 |
2025年11月13日 |
| ケータイ用バーコード |
- スマートフォンでこの物件を見る
- スマートフォンからもこの物件をご覧になれます。
|
※「-」と表示されている項目については、情報提供会社にご確認ください。
| 周辺施設 |
まいばすけっと東蒔田町店 |
| 距離 |
800m |
写真を見る |
| 周辺施設 |
ファミリーマート横浜蒔田店 |
| 距離 |
800m |
写真を見る |
| 周辺施設 |
ドラッグセイムス蒔田駅前店 |
| 距離 |
900m |
写真を見る |
| 周辺施設 |
蒔田三度台公園 |
| 距離 |
210m |
写真を見る |
| 周辺施設 |
横浜市立蒔田小学校 |
| 距離 |
680m |
写真を見る |
| 周辺施設 |
横浜市立蒔田中学校 |
| 距離 |
1100m |
写真を見る |
ここから簡単にお問い合わせをすることができます。
(SSLでの暗号化での送信を希望されるお客さまは
こちら
よりお問い合わせください)
お問い合わせを行う前に
「個人情報の取り扱いについて」を必ずお読みください。
「個人情報の取り扱いについて」に同意いただいた場合は「上記にご同意の上 確認画面へ進む」のボタンをクリックしてください。
個人情報の取り扱いについて
皆さまが送付された個人情報はアットホーム(株)のサーバを経由し、お問い合わせ先の不動産会社にメールまたはFAXにて転送されるためアットホーム(株)にも保管されます。アットホーム(株)で保管された個人情報の取り扱いについては、【こちら】をご覧ください。
また、本画面でご記入いただいた個人情報は、お問い合わせ先の不動産会社でも保管します。 お問い合わせ先の不動産会社が保管する個人情報の取り扱いについては、不動産会社に直接お問い合わせください。
神奈川県知事免許(3)第28428号 |
|---|
- 交通:
- 東急東横線/反町駅 徒歩3分
- 神奈川県横浜市神奈川区反町1丁目7-1 US-1ビル5F
- TEL:
- 045-313-0400
- FAX:
- 045-313-0500
- 所属団体:
- (公社)神奈川県宅地建物取引業協会会員(公社)首都圏不動産公正取引協議会加盟
取引態様:媒介  - 00108310
|
- スマートフォンで
この不動産会社を見る

|
- 提携サイト等より掲載されている物件情報につきましては、不動産会社詳細情報にリンクされていないものがあります。
- 物件に関するお問合せは、物件詳細ページの「情報提供会社」に表示されている不動産会社へ直接お願いいたします。
- 間取図は、現況を優先させていただきます。
- 映像は物件の一部を撮影したものです。物件の契約にあたっての最終判断はご自身の判断に基づいて行ってください。
- 仲介手数料について

アットホームは物件情報の適正化に努めております。
内容に誤りがある場合にはこちらへご連絡ください。