広島県福山市手城町4丁目(東福山駅)の一戸建て:物件詳細
交通 所在地 |
駅徒歩 |
価格 |
間取り 建物面積 |
土地面積 私道負担面積 |
物件種目 築年月 |
|
JR山陽本線/東福山
広島県福山市手城町4丁目
|
22分
|
5,480万円
|
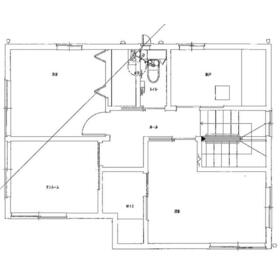
4DK
141.00m²
|
290.19m²
-
|
中古一戸建て
2022年8月(築3年10ヶ月)
|
|
駐車場2台分、バス1坪以上、閑静な住宅街、整形地
|
|
間取図
いつでもご案内可能!お気軽にお問い合わせください。
|
間取図
資料請求はLINEからも行っております! ID:@509dpypx
|
<
その他の画像
>
|
| 交通 | JR山陽本線 東福山駅 徒歩22分 |
| 所在地 |
広島県福山市手城町4丁目
|
| 物件種目 |
中古一戸建て |
| 価格 |
5,480万円 |
借地期間・地代(月額) |
- |
| 権利金 |
- |
敷金または保証金 |
- / - |
| 維持費等 |
- |
その他一時金 |
- |
| 間取り |
4DK |
建物面積 |
141.00m² |
| 土地権利 |
所有権 |
建物構造 |
木造 |
| 土地面積 |
290.19m²(公簿) |
私道負担面積 |
- |
| 築年月 |
2022年8月(築3年10ヶ月)
|
都市計画 |
市街化区域 |
| 建物名 |
|
建築確認番号 |
- |
| 用途地域 |
1種住居 |
駐車場 |
有 無料 |
| 建ぺい率 |
60% |
容積率 |
200% |
| 階建 |
2階建 |
接道状況 |
南 6.0m
|
| 地目 |
宅地 |
地勢 |
- |
| 国土法届出 |
- |
セットバック |
- |
| アピールポイント |
お料理に集中できる独立型キッチン付、更に夕食を作りながら翌日のお弁当も作れるコンロ3口以上の仕様なので、晩ごはんの支度と翌日の弁当準備ができます。また広々とした延床面積141㎡の居室空間で、その上閑静な住宅街立地の物件だから、騒々しい街の喧噪から離れて生活できます。ちなみに憩える庭付です。家族みんなのワガママにも応える4DK。実際の空間をご自身で体感ください。 |
| リフォーム履歴 |
- |
| リノベーション履歴 |
- |
| 瑕疵保証 |
- |
| 瑕疵保険 |
- |
| 評価・証明書 |
- |
| 備考 |
◇お問い合わせ方法◇
【見学予約(無料)】のフォームをご入力いただくか、
084-999-8448までお気軽にお問い合わせください!
◇LINEをご登録いただくと24時間365日ご対応可能です◇
⇒@509dpypx
登録して最新情報をゲット!!
|
| エネルギー消費性能 |
- |
| 断熱性能 |
- |
| 目安光熱費 |
- |
| バス・トイレ |
浴室暖房、追焚機能、シャワー付洗面化粧台、温水洗浄便座、トイレ2ヶ所、浴室に窓あり |
| キッチン |
独立型キッチン、食器乾燥機、3口以上コンロ |
| 設備・サービス |
全居室収納、ウォークインクローゼット、シューズインクローゼット、モニター付インターホン、上水道、下水道、電気、庭、人感センサー付照明 |
| その他 |
- |
| 現況 |
所有者居住中 |
引渡可能時期 |
相談 |
| 物件番号 |
6988127525 |
|
|
| 情報公開日 |
2026年1月27日 |
次回更新予定日 |
2026年5月11日 |
| ケータイ用バーコード |
- スマートフォンでこの物件を見る
- スマートフォンからもこの物件をご覧になれます。
|
※「-」と表示されている項目については、情報提供会社にご確認ください。
| 周辺施設 |
ハローズ手城店 |
| 距離 |
927m |
写真を見る |
| 周辺施設 |
セブンイレブン福山南手城4丁目店 |
| 距離 |
473m |
写真を見る |
| 周辺施設 |
医療法人村上会福山回生病院 |
| 距離 |
1140m |
写真を見る |
| 周辺施設 |
福山市立一ツ橋中学校 |
| 距離 |
321m |
写真を見る |
| 周辺施設 |
福山市立手城小学校 |
| 距離 |
309m |
写真を見る |
| 周辺施設 |
広島銀行福山手城支店 |
| 距離 |
491m |
写真を見る |
| 周辺施設 |
福山東警察署 |
| 距離 |
2346m |
写真を見る |
ここから簡単にお問い合わせをすることができます。
(SSLでの暗号化での送信を希望されるお客さまは
こちら
よりお問い合わせください)
お問い合わせを行う前に
「個人情報の取り扱いについて」を必ずお読みください。
「個人情報の取り扱いについて」に同意いただいた場合は「上記にご同意の上 確認画面へ進む」のボタンをクリックしてください。
個人情報の取り扱いについて
皆さまが送付された個人情報はアットホーム(株)のサーバを経由し、お問い合わせ先の不動産会社にメールまたはFAXにて転送されるためアットホーム(株)にも保管されます。アットホーム(株)で保管された個人情報の取り扱いについては、【こちら】をご覧ください。
また、本画面でご記入いただいた個人情報は、お問い合わせ先の不動産会社でも保管します。 お問い合わせ先の不動産会社が保管する個人情報の取り扱いについては、不動産会社に直接お問い合わせください。
広島県知事免許(1)第11617号 |
|---|
- 交通:
- JR山陽本線/福山駅
- 広島県福山市西桜町1丁目12-22
- TEL:
- 084-999-8448
- 所属団体:
- (公社)全日本不動産協会会員中国地区不動産公正取引協議会加盟
取引態様:一般媒介  - 50108582
|
- スマートフォンで
この不動産会社を見る

|
- 提携サイト等より掲載されている物件情報につきましては、不動産会社詳細情報にリンクされていないものがあります。
- 物件に関するお問合せは、物件詳細ページの「情報提供会社」に表示されている不動産会社へ直接お願いいたします。
- 間取図は、現況を優先させていただきます。
- 映像は物件の一部を撮影したものです。物件の契約にあたっての最終判断はご自身の判断に基づいて行ってください。
- 仲介手数料について

アットホームは物件情報の適正化に努めております。
内容に誤りがある場合にはこちらへご連絡ください。