東京都練馬区東大泉7丁目(大泉学園駅)の一戸建て:物件詳細
				
					
					
				
														
	
		
			
			| 交通 所在地
 | 駅徒歩 | 価格 | 間取り 建物面積
 | 土地面積 私道負担面積
 | 物件種目 築年月
 | 
		
		
			
								| 西武池袋線/大泉学園
										 東京都練馬区東大泉7丁目 | 
					12分
 | 
					2,380万円
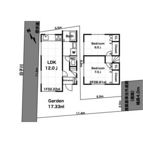
					 | 2LDK 61.13m² | 74.62m² - | 中古一戸建て 1982年5月(築43年6ヶ月)
																				 | 
						
				|  全室2面採光、2面採光
 | 
								
	
		
		
		
					| 間取図 | 外観 | 
		
		| 
				
										
						
							 その他の画像 | 
				
 
	
		
			
																			          | 交通 | 西武池袋線 大泉学園駅 徒歩12分 | 
|---|
| その他の交通 | 西武池袋線 保谷駅 徒歩17分 | 
|---|
			
				| 所在地 | 東京都練馬区東大泉7丁目 | 
		
		
			
				| 物件種目 | 中古一戸建て | 
			
				| 価格 | 2,380万円 | 借地期間・地代(月額) | - | 
			
				| 権利金 | - | 敷金または保証金 | - / - | 
			
				| 維持費等 | - | その他一時金 | - | 
		
		
			
				| 間取り | 2LDK | 建物面積 | 61.13m² | 
			
				| 土地権利 | 所有権 | 建物構造 | 木造 | 
			
				| 土地面積 | 74.62m²(公簿) | 私道負担面積 | - | 
			
				| 築年月 | 1982年5月(築43年6ヶ月) | 都市計画 | 市街化区域 | 
			
				| 建物名 |  | 建築確認番号 | - | 
			
				| 用途地域 | 1種低層 | 駐車場 | 無 | 
			
				| 建ぺい率 | 50% | 容積率 | 100% | 
			
				| 階建 | 2階建 | 接道状況 | 南東 4.0m 私道 接面2.0m | 
			
				| 地目 | - | 地勢 | 平坦 | 
			
				| 国土法届出 | - | セットバック | - | 
			
	| アピールポイント | コンロやシンクがセットされたシステムキッチン付、更に従来型より高効率な省エネ給湯器で合理的に賢くやりくり。また広々とした延床面積61.13㎡の居室空間で、その上憩える庭有の住戸なので、アウトドアのある暮らしが叶います。ちなみに一度に複数のおかず作りを同時進行できるコンロ3口以上付です。家族の安心拠点になる2LDK。是非その目でお確かめください。 | 
			
				| リフォーム履歴 | ■水回り:2025年12月 キッチン、浴室、トイレ、洗面所、給排水管、給湯器
 ■内装:2025年12月
 内装全面(床・壁・天井・建具)
 ■外装:2025年12月
 外壁、屋根
 ※実施年月は最も古い履歴を表示
 | 
			
				| リノベーション履歴 | - | 
			
				| 瑕疵保証 | - | 
			
				| 瑕疵保険 | - | 
			
				| 評価・証明書 | - | 
			
				| 備考 | 
																	再建築不可
										 | 
		
				
		
		| エネルギー消費性能 | - | 
	
		| 断熱性能 | - | 
	
		| 目安光熱費 | - | 
	
		
									
				| バス・トイレ | 追焚機能、シャワー付洗面化粧台、温水洗浄便座、浴室に窓あり | 
						
				| キッチン | システムキッチン、3口以上コンロ | 
						
				| 設備・サービス | 全居室収納、モニター付インターホン、省エネ給湯器、上水道、都市ガス、庭 | 
						
				| その他 | - | 
					
		
			
				| 現況 | 空家 | 引渡可能時期 | 相談 | 
			
				| 物件番号 | 6988136359 | 仲介手数料 | 不要 | 
			
				| 情報公開日 | 2025年10月24日 | 次回更新予定日 | 2025年11月7日 | 
						
				| ケータイ用バーコード | 
							
							
								
									スマートフォンでこの物件を見るスマートフォンからもこの物件をご覧になれます。 | 
					
	 
	 									※「-」と表示されている項目については、情報提供会社にご確認ください。
									
												
					
					  ここから簡単にお問い合わせをすることができます。
(SSLでの暗号化での送信を希望されるお客さまは
													こちら
												よりお問い合わせください)
					
					
						
						
					
					お問い合わせを行う前に
「個人情報の取り扱いについて」を必ずお読みください。
「個人情報の取り扱いについて」に同意いただいた場合は「上記にご同意の上 確認画面へ進む」のボタンをクリックしてください。 
						個人情報の取り扱いについて
						皆さまが送付された個人情報はアットホーム(株)のサーバを経由し、お問い合わせ先の不動産会社にメールまたはFAXにて転送されるためアットホーム(株)にも保管されます。アットホーム(株)で保管された個人情報の取り扱いについては、【こちら】をご覧ください。
						また、本画面でご記入いただいた個人情報は、お問い合わせ先の不動産会社でも保管します。 お問い合わせ先の不動産会社が保管する個人情報の取り扱いについては、不動産会社に直接お問い合わせください。
					 
					 
					
														
				  
				  
					| 東京都知事免許(9)第53031号 | 
|---|
| 交通:東京メトロ丸ノ内線/淡路町駅 徒歩3分東京都千代田区神田司町2丁目2-5 DK・Tビル4階TEL:03-3526-2233FAX:03-3526-2255所属団体:(公社)東京都宅地建物取引業協会会員(公社)首都圏不動産公正取引協議会加盟
 取引態様:売主 00410304
 | 
							  
								スマートフォンでこの不動産会社を見る
 | 
					  
					 
				 
							
						
												
			
					
- 提携サイト等より掲載されている物件情報につきましては、不動産会社詳細情報にリンクされていないものがあります。
- 物件に関するお問合せは、物件詳細ページの「情報提供会社」に表示されている不動産会社へ直接お願いいたします。
- 間取図は、現況を優先させていただきます。
- 映像は物件の一部を撮影したものです。物件の契約にあたっての最終判断はご自身の判断に基づいて行ってください。
- 仲介手数料について 
アットホームは物件情報の適正化に努めております。
内容に誤りがある場合にはこちらへご連絡ください。