福岡県北九州市八幡西区光貞台3丁目(本城駅)の一戸建て:物件詳細
交通 所在地 |
駅徒歩 |
価格 |
間取り 建物面積 |
土地面積 私道負担面積 |
物件種目 築年月 |
|
JR筑豊本線/本城 [バス利用可] バス ひびきのみなみ一丁目 停歩7分
福岡県北九州市八幡西区光貞台3丁目
|
28分
|
2,998万円
|
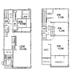
4LDK
115.53m²
|
194.37m²
-
|
新築一戸建て
2024年12月
|
|
駐車場3台分以上、2面採光
|
|
間取図
収納力と動線に優れた設計で、共働き家庭や子育て世代に特におすすめの間取りです。
|
リビング
木目調のフローリングは落ち着きある雰囲気です。 リラックスできる空間になっています。
|
<
その他の画像
>
|
| 交通 | JR筑豊本線 本城駅 徒歩28分 [バス利用可] バス ひびきのみなみ一丁目 停歩7分 |
| 所在地 |
福岡県北九州市八幡西区光貞台3丁目
|
| 物件種目 |
新築一戸建て |
| 価格 |
2,998万円 |
借地期間・地代(月額) |
- |
| 権利金 |
- |
敷金または保証金 |
- / - |
| 維持費等 |
- |
その他一時金 |
- |
| 間取り |
4LDK |
建物面積 |
115.53m² |
| 土地権利 |
所有権 |
建物構造 |
木造 |
| 土地面積 |
194.37m²(公簿) |
私道負担面積 |
- |
| 築年月 |
2024年12月
|
都市計画 |
市街化区域 |
| 建物名 |
光貞台3丁目3期② |
建築確認番号 |
- |
| 用途地域 |
1種低層 |
駐車場 |
有 無料 |
| 建ぺい率 |
- |
容積率 |
- |
| 階建 |
2階建 |
接道状況 |
-
|
| 地目 |
- |
地勢 |
- |
| 国土法届出 |
- |
セットバック |
- |
| アピールポイント |
●物件おすすめポイント●
・各居室大容量の収納があり、お部屋のスペースを広々とお使いいただけます。
・リビング横には和室があり、お子様の遊ぶスペースや老後の暮らしに便利です。
・キッチンから洗面所が近く、家事の同時進行が可能です。
・キッチン横のパントリーは調味料や食材ストック等が出来て、ストックには困りません。
・1号棟は各居室に加えてファミリークロークがあり収納には困りません。
・2号棟は玄関から前面道路が離れている為、お子様の飛び出し防止になります。 |
| リフォーム履歴 |
- |
| リノベーション履歴 |
- |
| 瑕疵保証 |
- |
| 瑕疵保険 |
- |
| 評価・証明書 |
- |
| 備考 |
-
|
| エネルギー消費性能 |
- |
| 断熱性能 |
- |
| 目安光熱費 |
- |
| バス・トイレ |
浴室暖房、浴室乾燥機、オートバス、追焚機能、シャワー付洗面化粧台、温水洗浄便座、トイレ2ヶ所 |
| キッチン |
システムキッチン、食器洗浄乾燥機、食器乾燥機、浄水器、3口以上コンロ、グリル |
| 設備・サービス |
全居室収納、ウォークインクローゼット、クローゼット、床下収納、モニター付インターホン、ダブルロックドア、電動シャッター、シャッター雨戸、室内物干し、上水道、下水道、都市ガス、電気、火災警報器(報知機) |
| その他 |
- |
| 現況 |
完成済 |
引渡可能時期 |
即時 |
| 物件番号 |
6988137588 |
仲介手数料 |
売買代金の3%+6万円 |
| 情報公開日 |
2025年10月24日 |
次回更新予定日 |
2025年12月23日 |
| ケータイ用バーコード |
- スマートフォンでこの物件を見る
- スマートフォンからもこの物件をご覧になれます。
|
※「-」と表示されている項目については、情報提供会社にご確認ください。
| 周辺施設 |
カーニバルプラスひびきの店 |
| 距離 |
664m |
| 周辺施設 |
ファミリーマート八幡学研台店 |
| 距離 |
954m |
| 周辺施設 |
ほっともっと折尾本城店 |
| 距離 |
1051m |
| 周辺施設 |
ナフコツーワンスタイル学研都市ひびきの店 |
| 距離 |
814m |
| 周辺施設 |
北九州市立大学ひびきのキャンパス |
| 距離 |
1209m |
ここから簡単にお問い合わせをすることができます。
(SSLでの暗号化での送信を希望されるお客さまは
こちら
よりお問い合わせください)
お問い合わせを行う前に
「個人情報の取り扱いについて」を必ずお読みください。
「個人情報の取り扱いについて」に同意いただいた場合は「上記にご同意の上 確認画面へ進む」のボタンをクリックしてください。
個人情報の取り扱いについて
皆さまが送付された個人情報はアットホーム(株)のサーバを経由し、お問い合わせ先の不動産会社にメールまたはFAXにて転送されるためアットホーム(株)にも保管されます。アットホーム(株)で保管された個人情報の取り扱いについては、【こちら】をご覧ください。
また、本画面でご記入いただいた個人情報は、お問い合わせ先の不動産会社でも保管します。 お問い合わせ先の不動産会社が保管する個人情報の取り扱いについては、不動産会社に直接お問い合わせください。
福岡県知事免許(2)第19482号 |
|---|
- 交通:
- JR日豊本線/南小倉駅 徒歩2分 【バス】5分 清水交差点
- 福岡県北九州市小倉北区弁天町5-2-1101号 南小倉駅前ビル
- TEL:
- 093-383-0874
- FAX:
- 093-383-0875
- 所属団体:
- (公社)福岡県宅地建物取引業協会会員(一社)九州不動産公正取引協議会加盟
取引態様:一般媒介  - 80505206
|
- スマートフォンで
この不動産会社を見る

|
- 提携サイト等より掲載されている物件情報につきましては、不動産会社詳細情報にリンクされていないものがあります。
- 物件に関するお問合せは、物件詳細ページの「情報提供会社」に表示されている不動産会社へ直接お願いいたします。
- 間取図は、現況を優先させていただきます。
- 映像は物件の一部を撮影したものです。物件の契約にあたっての最終判断はご自身の判断に基づいて行ってください。
- 仲介手数料について

アットホームは物件情報の適正化に努めております。
内容に誤りがある場合にはこちらへご連絡ください。