大分県杵築市大字熊野(杵築駅)の一戸建て:物件詳細
交通 所在地 |
駅徒歩 |
価格 |
間取り 建物面積 |
土地面積 私道負担面積 |
物件種目 築年月 |
|
JR日豊本線/杵築
大分県杵築市大字熊野
|
10700m
|
1,380万円
|
2LDK
57.13m²
|
603.00m²
なし
|
中古一戸建て
2008年4月(築17年9ヶ月)
|
|
駐車場2台分、駐車場3台分以上、南向き、外壁サイディング、閑静な住宅街、整形地、庭10坪以上、隣接建物距離2m以上、分譲地内
|
|
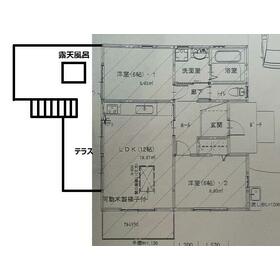
間取図
|
外観
|
<
その他の画像
>
|
| 交通 | JR日豊本線 杵築駅 徒歩10700m |
| 所在地 |
大分県杵築市大字熊野
|
| 物件種目 |
中古一戸建て |
| 価格 |
1,380万円 |
借地期間・地代(月額) |
- |
| 権利金 |
- |
敷金または保証金 |
- / - |
| 維持費等 |
管理費:2,200円/月、水道基本使用料(10m3以下):1,760円/月、温泉基本使用料(10m3以下):3,300円/月、汚水処理施設維持管理協力費:880円/月、汚水基本使用料(10m3以下):2,200円/月 |
その他一時金 |
温泉利用一時金の更新料:330,000円 |
| 間取り |
2LDK(洋 6・6 LDK 12) |
建物面積 |
57.13m² |
| 土地権利 |
所有権 |
建物構造 |
木造 |
| 土地面積 |
603.00m²(公簿) |
私道負担面積 |
なし |
| 築年月 |
2008年4月(築17年9ヶ月)
|
都市計画 |
非線引区域 |
| 建物名 |
ロイヤルシティ別府湾杵築リゾート売戸建住宅 |
建築確認番号 |
- |
| 用途地域 |
無指定 |
駐車場 |
有 無料 |
| 建ぺい率 |
30% |
容積率 |
200% |
| 階建 |
平屋建 |
接道状況 |
東 6.0m 公道
|
| 地目 |
山林 |
地勢 |
高台 |
| 国土法届出 |
- |
セットバック |
- |
| リフォーム履歴 |
- |
| リノベーション履歴 |
- |
| 瑕疵保証 |
- |
| 瑕疵保険 |
- |
| 評価・証明書 |
- |
| 備考 |
主要採光面:南向き
号棟番号:4街区15号地
施工会社:大和ハウス工業
温泉あり ■引込状況:引込み済(各戸) ■利用形態:加温
|
| エネルギー消費性能 |
- |
| 断熱性能 |
- |
| 目安光熱費 |
- |
| バス・トイレ |
追焚機能、シャワー付洗面化粧台、温水洗浄便座、浴室に窓あり |
| キッチン |
システムキッチン、3口以上コンロ |
| 設備・サービス |
クローゼット、床下収納、モニター付インターホン、ディンプルキー、ダブルロックドア、全居室フローリング、上水道、下水道、プロパンガス、電気、側溝、エアコン、庭、ウッドデッキ、照明器具、複層ガラス |
| その他 |
- |
| 現況 |
空家 |
引渡可能時期 |
相談 |
| 物件番号 |
6988142656 |
|
|
| 情報公開日 |
2025年10月27日 |
次回更新予定日 |
2026年1月2日 |
| ケータイ用バーコード |
- スマートフォンでこの物件を見る
- スマートフォンからもこの物件をご覧になれます。
|
※「-」と表示されている項目については、情報提供会社にご確認ください。
ここから簡単にお問い合わせをすることができます。
(SSLでの暗号化での送信を希望されるお客さまは
こちら
よりお問い合わせください)
お問い合わせを行う前に
「個人情報の取り扱いについて」を必ずお読みください。
「個人情報の取り扱いについて」に同意いただいた場合は「上記にご同意の上 確認画面へ進む」のボタンをクリックしてください。
個人情報の取り扱いについて
皆さまが送付された個人情報はアットホーム(株)のサーバを経由し、お問い合わせ先の不動産会社にメールまたはFAXにて転送されるためアットホーム(株)にも保管されます。アットホーム(株)で保管された個人情報の取り扱いについては、【こちら】をご覧ください。
また、本画面でご記入いただいた個人情報は、お問い合わせ先の不動産会社でも保管します。 お問い合わせ先の不動産会社が保管する個人情報の取り扱いについては、不動産会社に直接お問い合わせください。
大分県知事免許(6)第2575号 |
|---|
- 交通:
- JR日豊本線/杵築駅 徒歩76分 【バス】 新大内 停歩1分
- 大分県杵築市大字大内4539番地8
- TEL:
- 0978-63-0933
- FAX:
- 0978-63-0995
- 所属団体:
- (公社)全日本不動産協会会員(一社)九州不動産公正取引協議会加盟
取引態様:媒介  - 80400938
|
- スマートフォンで
この不動産会社を見る

|
- 提携サイト等より掲載されている物件情報につきましては、不動産会社詳細情報にリンクされていないものがあります。
- 物件に関するお問合せは、物件詳細ページの「情報提供会社」に表示されている不動産会社へ直接お願いいたします。
- 間取図は、現況を優先させていただきます。
- 映像は物件の一部を撮影したものです。物件の契約にあたっての最終判断はご自身の判断に基づいて行ってください。
- 仲介手数料について

アットホームは物件情報の適正化に努めております。
内容に誤りがある場合にはこちらへご連絡ください。