東京都練馬区大泉学園町7丁目(大泉学園駅)の一戸建て:物件詳細
交通 所在地 |
駅徒歩 |
価格 |
間取り 建物面積 |
土地面積 私道負担面積 |
物件種目 築年月 |
|
西武池袋線/大泉学園 【バス】6分 大泉風致地区 停歩7分
東京都練馬区大泉学園町7丁目
|
-
|
5,480万円
|
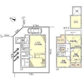
3LDK
69.04m²
|
81.01m²
-
|
中古一戸建て
2023年8月(築2年5ヶ月)
|
|
南向き、3面採光、2面採光、24時間換気システム、バリアフリー、閑静な住宅街、整形地、設計住宅性能評価書あり、建設住宅性能評価書あり
|
|
間取図
|
外観
|
その他の画像
|
| 交通 | 西武池袋線 大泉学園駅 【バス】 6分 大泉風致地区 停歩7分 |
|---|
| その他の交通 | 東武東上線 成増駅 【バス】 17分 西長久保 停歩5分 |
| 所在地 |
東京都練馬区大泉学園町7丁目
|
| 物件種目 |
中古一戸建て |
| 価格 |
5,480万円 |
借地期間・地代(月額) |
- |
| 権利金 |
- |
敷金または保証金 |
- / - |
| 維持費等 |
- |
その他一時金 |
- |
| 間取り |
3LDK(洋 5・4.3・4 LDK 14) |
建物面積 |
69.04m² |
| 土地権利 |
所有権 |
建物構造 |
木造 |
| 土地面積 |
81.01m²(公簿) |
私道負担面積 |
- |
| 築年月 |
2023年8月(築2年5ヶ月)
|
都市計画 |
市街化区域 |
| 建物名 |
練馬区大泉学園町7丁目戸建 |
建築確認番号 |
- |
| 用途地域 |
1種低層 |
駐車場 |
- |
| 建ぺい率 |
50% |
容積率 |
100% |
| 階建 |
2階建 |
接道状況 |
北 5.4m 公道 接面8.4m
・ 東 5.0m 公道 接面5.7m
・ 二方道路
|
| 地目 |
- |
地勢 |
- |
| 国土法届出 |
- |
セットバック |
- |
| アピールポイント |
国に登録された第三者機関の認定が与えられた設計住宅性能評価書有、更にスピーカーとディスプレイを備えたモニタ付インターホン設置なので、来訪者を顔確認できて安心です。また初々しさが残る築3年以内の建物で、その上閑静な住宅街立地の物件だから、騒々しい街の喧噪から離れて生活できます。ちなみに心にゆとりを与える庭付です。自然に団らんが生まれる3LDK。是非その目でお確かめください。 |
| リフォーム履歴 |
- |
| リノベーション履歴 |
- |
| 瑕疵保証 |
- |
| 瑕疵保険 |
- |
| 評価・証明書 |
- |
| 備考 |
主要採光面:南向き
建築確認完了検査済証あり
■太陽光発電システム設置(パナソニック製)
■家族の会話が弾む対面キッチン
■約3.6帖のロフト付き
■各部屋収納あり ウォークインクローゼット付き洋室
■周辺お買い物施設充実
|
| エネルギー消費性能 |
- |
| 断熱性能 |
- |
| 目安光熱費 |
- |
| バス・トイレ |
浴室乾燥機、追焚機能、温水洗浄便座、トイレ2ヶ所 |
| キッチン |
カウンターキッチン、食器洗浄乾燥機、3口以上コンロ |
| 設備・サービス |
全居室収納、ウォークインクローゼット、太陽光発電システム、全居室エアコン、エアコン2台以上、クローゼット、床下収納、モニター付インターホン、カードキー、シャッター雨戸、上水道、下水道、都市ガス、電気、庭、火災警報器(報知機)、インターネット対応、CS、BS端子、蓄電池付き |
| その他 |
- |
| 現況 |
所有者居住中 |
引渡可能時期 |
相談 |
| 物件番号 |
6988172506 |
|
|
| 情報公開日 |
2025年10月27日 |
次回更新予定日 |
2025年12月22日 |
| ケータイ用バーコード |
- スマートフォンでこの物件を見る
- スマートフォンからもこの物件をご覧になれます。
|
※「-」と表示されている項目については、情報提供会社にご確認ください。
| 周辺施設 |
ファミリーマート大泉長久保通り店 |
| 距離 |
316m |
| 周辺施設 |
医療法人社団健育会ねりま健育会病院 |
| 距離 |
425m |
| 周辺施設 |
サンドラッグ大泉学園町店 |
| 距離 |
528m |
| 周辺施設 |
サミットストア大泉学園店 |
| 距離 |
756m |
ここから簡単にお問い合わせをすることができます。
(SSLでの暗号化での送信を希望されるお客さまは
こちら
よりお問い合わせください)
お問い合わせを行う前に
「個人情報の取り扱いについて」を必ずお読みください。
「個人情報の取り扱いについて」に同意いただいた場合は「上記にご同意の上 確認画面へ進む」のボタンをクリックしてください。
個人情報の取り扱いについて
皆さまが送付された個人情報はアットホーム(株)のサーバを経由し、お問い合わせ先の不動産会社にメールまたはFAXにて転送されるためアットホーム(株)にも保管されます。アットホーム(株)で保管された個人情報の取り扱いについては、【こちら】をご覧ください。
また、本画面でご記入いただいた個人情報は、お問い合わせ先の不動産会社でも保管します。 お問い合わせ先の不動産会社が保管する個人情報の取り扱いについては、不動産会社に直接お問い合わせください。
東京都知事免許(13)第29917号 |
|---|
- 交通:
- 東京メトロ丸ノ内線/淡路町駅 徒歩4分
- 東京都千代田区神田美土代町3-3 泉国際産業ビル
- TEL:
- 03-3259-8050
- FAX:
- 03-3518-2596
- 所属団体:
- (公社)東京都宅地建物取引業協会会員(公社)首都圏不動産公正取引協議会加盟
取引態様:専任媒介  - 00130207
|
- スマートフォンで
この不動産会社を見る

|
- 提携サイト等より掲載されている物件情報につきましては、不動産会社詳細情報にリンクされていないものがあります。
- 物件に関するお問合せは、物件詳細ページの「情報提供会社」に表示されている不動産会社へ直接お願いいたします。
- 間取図は、現況を優先させていただきます。
- 映像は物件の一部を撮影したものです。物件の契約にあたっての最終判断はご自身の判断に基づいて行ってください。
- 仲介手数料について

アットホームは物件情報の適正化に努めております。
内容に誤りがある場合にはこちらへご連絡ください。