神奈川県川崎市幸区南加瀬2丁目(日吉駅)の一戸建て:物件詳細
交通 所在地 |
駅徒歩 |
価格 |
間取り 建物面積 |
土地面積 私道負担面積 |
物件種目 築年月 |
|
東急東横線/日吉 【バス】11分 江川町 停歩3分
神奈川県川崎市幸区南加瀬2丁目
|
-
|
3,980万円
|
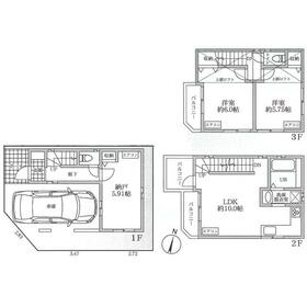
3LDK
68.98m²
|
43.14m²
-
|
中古一戸建て
2007年5月(築18年8ヶ月)
|
|
間取図
|
|
<
その他の画像
>
|
| 交通 | 東急東横線 日吉駅 【バス】 11分 江川町 停歩3分 |
|---|
| その他の交通 | JR京浜東北線 川崎駅 【バス】 19分 江川町 停歩3分 |
| 所在地 |
神奈川県川崎市幸区南加瀬2丁目
|
| 物件種目 |
中古一戸建て |
| 価格 |
3,980万円 |
借地期間・地代(月額) |
- |
| 権利金 |
- |
敷金または保証金 |
- / - |
| 維持費等 |
- |
その他一時金 |
- |
| 間取り |
3LDK(洋 6・5.9・5.7) |
建物面積 |
68.98m² |
| 土地権利 |
所有権 |
建物構造 |
木造 |
| 土地面積 |
43.14m²(公簿) |
私道負担面積 |
- |
| 築年月 |
2007年5月(築18年8ヶ月)
|
都市計画 |
市街化区域 |
| 建物名 |
南加瀬2丁目 |
建築確認番号 |
- |
| 用途地域 |
1種住居 |
駐車場 |
- |
| 建ぺい率 |
60% |
容積率 |
160% |
| 階建 |
3階建 |
接道状況 |
-
|
| 地目 |
- |
地勢 |
- |
| 国土法届出 |
- |
セットバック |
- |
| アピールポイント |
■ 無料! 当社独自のサービスで通常かかる仲介手数料(約137万円)が0円!
■新規リフォーム
■平成19年築の3LDK
■令和3年外観・屋根塗装工事済
■3階の居室2部屋にはロフト付
■全居室+LDKにエアコン新品設置(4台)
【ご案内方法】
■事前ご予約を頂けるとご案内がスムーズです
■現地・送迎(鶴見区・幸区・川崎区お住まいの方)・ご来社・最寄り駅等
お客様のご希望に合わせてご案内致します。
【住宅ローン】
■都市銀行・地方銀行・信用金庫・ろうきん等
多数の金融機関よりお客様の最適な金融機関をご紹介致します。
最大金利優遇で適用金利が0.8%台も可能です(条件有)。
【フロンティア住販の特徴】
■仲介手数料最大無料!
■弊社ホームページに仲介手数料無料物件が多数掲載しています。
■地域密着(鶴見区・幸区・川崎区)
■売買専門で信頼と実績の創業27周年!
■しつこい営業は一切行っていません。
■値引き交渉もお任せください。
■ご自宅売却時の仲介手数料は半額!(無料査定)
■弊社ホームページにご契約頂いた【お客様の声】掲載しています。ご覧くださいませ。 |
| リフォーム履歴 |
■水回り:2025年10月 キッチン、浴室、トイレ ■内装:2025年10月 全室クロス張替え、床(フローリング等) ■外装:2021年5月 外壁、屋根 ※実施年月は最も古い履歴を表示 |
| リノベーション履歴 |
- |
| 瑕疵保証 |
- |
| 瑕疵保険 |
- |
| 評価・証明書 |
- |
| 備考 |
-
|
| エネルギー消費性能 |
- |
| 断熱性能 |
- |
| 目安光熱費 |
- |
| バス・トイレ |
浴室乾燥機、追焚機能、シャワー付洗面化粧台、温水洗浄便座、トイレ2ヶ所 |
| キッチン |
システムキッチン、食器洗浄乾燥機、3口以上コンロ |
| 設備・サービス |
全居室収納、全居室エアコン、モニター付インターホン、プロパンガス |
| その他 |
- |
| 現況 |
空家 |
引渡可能時期 |
相談 |
| 物件番号 |
6988186071 |
仲介手数料 |
不要 |
| 情報公開日 |
2025年10月30日 |
次回更新予定日 |
2025年12月24日 |
| ケータイ用バーコード |
- スマートフォンでこの物件を見る
- スマートフォンからもこの物件をご覧になれます。
|
※「-」と表示されている項目については、情報提供会社にご確認ください。
| 周辺施設 |
セブンイレブン川崎南加瀬3丁目店 |
| 距離 |
394m |
| 周辺施設 |
マクドナルド川崎南加瀬店 |
| 距離 |
270m |
| 周辺施設 |
ガスト南加瀬店(から好し取扱店) |
| 距離 |
429m |
ここから簡単にお問い合わせをすることができます。
(SSLでの暗号化での送信を希望されるお客さまは
こちら
よりお問い合わせください)
お問い合わせを行う前に
「個人情報の取り扱いについて」を必ずお読みください。
「個人情報の取り扱いについて」に同意いただいた場合は「上記にご同意の上 確認画面へ進む」のボタンをクリックしてください。
個人情報の取り扱いについて
皆さまが送付された個人情報はアットホーム(株)のサーバを経由し、お問い合わせ先の不動産会社にメールまたはFAXにて転送されるためアットホーム(株)にも保管されます。アットホーム(株)で保管された個人情報の取り扱いについては、【こちら】をご覧ください。
また、本画面でご記入いただいた個人情報は、お問い合わせ先の不動産会社でも保管します。 お問い合わせ先の不動産会社が保管する個人情報の取り扱いについては、不動産会社に直接お問い合わせください。
神奈川県知事免許(6)第22816号 |
|---|
- 交通:
- JR南武線/尻手駅 徒歩8分
- 神奈川県横浜市鶴見区尻手3丁目4-10
- TEL:
- 045-573-2249
- FAX:
- 045-571-8689
- 所属団体:
- (公社)神奈川県宅地建物取引業協会会員(公社)首都圏不動産公正取引協議会加盟
取引態様:媒介  - 00531752
|
- スマートフォンで
この不動産会社を見る

|
- 提携サイト等より掲載されている物件情報につきましては、不動産会社詳細情報にリンクされていないものがあります。
- 物件に関するお問合せは、物件詳細ページの「情報提供会社」に表示されている不動産会社へ直接お願いいたします。
- 間取図は、現況を優先させていただきます。
- 映像は物件の一部を撮影したものです。物件の契約にあたっての最終判断はご自身の判断に基づいて行ってください。
- 仲介手数料について

アットホームは物件情報の適正化に努めております。
内容に誤りがある場合にはこちらへご連絡ください。