東京都世田谷区桜上水5丁目(桜上水駅)の一戸建て:物件詳細
交通 所在地 |
駅徒歩 |
価格 |
間取り 建物面積 |
土地面積 私道負担面積 |
物件種目 築年月 |
|
京王線/桜上水
東京都世田谷区桜上水5丁目
|
4分
|
9,980万円
|
3LDK
91.08m²
|
91.30m²
-
|
中古一戸建て
2018年3月(築7年9ヶ月)
|
|
バス1坪以上
|
|
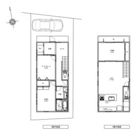
間取図
|
リビング
|
<
その他の画像
>
|
| 交通 | 京王線 桜上水駅 徒歩4分 |
|---|
| その他の交通 | 京王線 上北沢駅 徒歩10分 東急世田谷線 下高井戸駅 徒歩17分 |
| 所在地 |
東京都世田谷区桜上水5丁目
|
| 物件種目 |
中古一戸建て |
| 価格 |
9,980万円 |
借地期間・地代(月額) |
- |
| 権利金 |
- |
敷金または保証金 |
- / - |
| 維持費等 |
- |
その他一時金 |
- |
| 間取り |
3LDK(洋 6・6・6.5) |
建物面積 |
91.08m² |
| 土地権利 |
所有権 |
建物構造 |
木造 |
| 土地面積 |
91.30m² |
私道負担面積 |
- |
| 築年月 |
2018年3月(築7年9ヶ月)
|
都市計画 |
市街化区域 |
| 建物名 |
|
建築確認番号 |
- |
| 用途地域 |
1種低層 |
駐車場 |
- |
| 建ぺい率 |
50% |
容積率 |
100% |
| 階建 |
2階建 |
接道状況 |
北 4.0m 公道
|
| 地目 |
宅地 |
地勢 |
平坦 |
| 国土法届出 |
- |
セットバック |
- |
| アピールポイント |
□桜上水駅徒歩4分
□建物面積90m超
□LDK17.5帖、対面式システムキッチン
□リフォーム済み戸建
□閑静な住宅街
□小中学校まで10分以内
□全居室5帖超
◆先着申込受付中◆
Always By Your Side ~いつもあなたのそばに~
株式会社マーベラス 本店 TEL03-5790-5411 |
| リフォーム履歴 |
- |
| リノベーション履歴 |
- |
| 瑕疵保証 |
- |
| 瑕疵保険 |
- |
| 評価・証明書 |
- |
| 備考 |
-
|
| エネルギー消費性能 |
- |
| 断熱性能 |
- |
| 目安光熱費 |
- |
| バス・トイレ |
浴室暖房、浴室乾燥機、オートバス、追焚機能、高温差湯式、温水洗浄便座、トイレ2ヶ所 |
| キッチン |
カウンターキッチン、システムキッチン、食器洗浄乾燥機、食器乾燥機、浄水器、3口以上コンロ、グリル |
| 設備・サービス |
全居室収納、シューズインクローゼット、クローゼット、床下収納、モニター付インターホン、全居室フローリング、上水道、下水道、都市ガス、ワイドバルコニー |
| その他 |
- |
| 現況 |
空家 |
引渡可能時期 |
相談 |
| 物件番号 |
6988206140 |
|
|
| 情報公開日 |
2025年10月30日 |
次回更新予定日 |
2025年11月18日 |
| ケータイ用バーコード |
- スマートフォンでこの物件を見る
- スマートフォンからもこの物件をご覧になれます。
|
※「-」と表示されている項目については、情報提供会社にご確認ください。
ここから簡単にお問い合わせをすることができます。
(SSLでの暗号化での送信を希望されるお客さまは
こちら
よりお問い合わせください)
お問い合わせを行う前に
「個人情報の取り扱いについて」を必ずお読みください。
「個人情報の取り扱いについて」に同意いただいた場合は「上記にご同意の上 確認画面へ進む」のボタンをクリックしてください。
個人情報の取り扱いについて
皆さまが送付された個人情報はアットホーム(株)のサーバを経由し、お問い合わせ先の不動産会社にメールまたはFAXにて転送されるためアットホーム(株)にも保管されます。アットホーム(株)で保管された個人情報の取り扱いについては、【こちら】をご覧ください。
また、本画面でご記入いただいた個人情報は、お問い合わせ先の不動産会社でも保管します。 お問い合わせ先の不動産会社が保管する個人情報の取り扱いについては、不動産会社に直接お問い合わせください。
東京都知事免許(3)第94444号 |
|---|
- 交通:
- 東京メトロ千代田線/代々木公園駅 徒歩10分
- 東京都渋谷区富ヶ谷2丁目14-5
- TEL:
- 03-5790-5411
- FAX:
- 03-5790-5422
- 所属団体:
- (公社)東京都宅地建物取引業協会会員(公社)首都圏不動産公正取引協議会加盟
取引態様:媒介  - 00107266
|
- スマートフォンで
この不動産会社を見る

|
- 提携サイト等より掲載されている物件情報につきましては、不動産会社詳細情報にリンクされていないものがあります。
- 物件に関するお問合せは、物件詳細ページの「情報提供会社」に表示されている不動産会社へ直接お願いいたします。
- 間取図は、現況を優先させていただきます。
- 映像は物件の一部を撮影したものです。物件の契約にあたっての最終判断はご自身の判断に基づいて行ってください。
- 仲介手数料について

アットホームは物件情報の適正化に努めております。
内容に誤りがある場合にはこちらへご連絡ください。