広島県福山市日吉台2丁目(東福山駅)の一戸建て:物件詳細
交通 所在地 |
駅徒歩 |
価格 |
間取り 建物面積 |
土地面積 私道負担面積 |
物件種目 築年月 |
|
JR山陽本線/東福山
広島県福山市日吉台2丁目
|
32分
|
3,090万円
|
4LDK
102.68m²
|
159.00m²
-
|
新築一戸建て
2026年1月
|
|
駐車場2台分、南向き、バス1坪以上、24時間換気システム
|
|
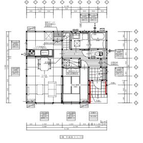
間取図
|
|
その他の画像
|
| 交通 | JR山陽本線 東福山駅 徒歩32分 |
| 所在地 |
広島県福山市日吉台2丁目
|
| 物件種目 |
新築一戸建て |
| 価格 |
3,090万円 |
借地期間・地代(月額) |
- |
| 権利金 |
- |
敷金または保証金 |
- / - |
| 維持費等 |
- |
その他一時金 |
- |
| 間取り |
4LDK(洋 6・6・6・8 LDK 15.5) |
建物面積 |
102.68m² |
| 土地権利 |
所有権 |
建物構造 |
木造 |
| 土地面積 |
159.00m²(公簿) |
私道負担面積 |
- |
| 築年月 |
2026年1月
|
都市計画 |
市街化区域 |
| 建物名 |
|
建築確認番号 |
第R07SHC117907号 |
| 用途地域 |
1種住居 |
駐車場 |
有 |
| 建ぺい率 |
60% |
容積率 |
200% |
| 階建 |
2階建 |
接道状況 |
南 6.3m 公道 接面10.2m
|
| 地目 |
宅地 |
地勢 |
雛段 |
| 国土法届出 |
- |
セットバック |
- |
| アピールポイント |
車中心生活を支える駐車場2台分有だから、家族それぞれの行動範囲がグッと広がります。また手つかずの新築で、その上一度に複数のおかず作りを同時進行できるコンロ3口以上の仕様なので、進行ペースがスピードアップ。ちなみに家事がたくさんあるときに大助かりなオートバス仕様です。家族の物語が生まれる4LDK。是非見学にお越しください。 |
| リフォーム履歴 |
- |
| リノベーション履歴 |
- |
| 瑕疵保証 |
- |
| 瑕疵保険 |
- |
| 評価・証明書 |
- |
| 備考 |
主要採光面:南向き
|
| エネルギー消費性能 |
- |
| 断熱性能 |
- |
| 目安光熱費 |
- |
| バス・トイレ |
浴室乾燥機、オートバス、追焚機能、シャワー付洗面化粧台、トイレ2ヶ所、浴室に窓あり |
| キッチン |
浄水器、3口以上コンロ |
| 設備・サービス |
全居室収納、モニター付インターホン、ディンプルキー、ダブルロックドア、シャッター雨戸、上水道、下水道、都市ガス、電気、火災警報器(報知機)、複層ガラス、Low-E ガラス |
| その他 |
- |
| 現況 |
未着工 |
引渡可能時期 |
相談 |
| 物件番号 |
6988241294 |
|
|
| 情報公開日 |
2025年11月2日 |
次回更新予定日 |
2025年12月28日 |
| ケータイ用バーコード |
- スマートフォンでこの物件を見る
- スマートフォンからもこの物件をご覧になれます。
|
※「-」と表示されている項目については、情報提供会社にご確認ください。
ここから簡単にお問い合わせをすることができます。
(SSLでの暗号化での送信を希望されるお客さまは
こちら
よりお問い合わせください)
お問い合わせを行う前に
「個人情報の取り扱いについて」を必ずお読みください。
「個人情報の取り扱いについて」に同意いただいた場合は「上記にご同意の上 確認画面へ進む」のボタンをクリックしてください。
個人情報の取り扱いについて
皆さまが送付された個人情報はアットホーム(株)のサーバを経由し、お問い合わせ先の不動産会社にメールまたはFAXにて転送されるためアットホーム(株)にも保管されます。アットホーム(株)で保管された個人情報の取り扱いについては、【こちら】をご覧ください。
また、本画面でご記入いただいた個人情報は、お問い合わせ先の不動産会社でも保管します。 お問い合わせ先の不動産会社が保管する個人情報の取り扱いについては、不動産会社に直接お問い合わせください。
(株)アイダ設計 福山店国土交通大臣免許(8)第4179号 |
|---|
- 交通:
- JR山陽本線/福山駅 徒歩24分
- 広島県福山市三吉町4丁目12-14
- TEL:
- 0120-907-918
- 所属団体:
- (公社)広島県宅地建物取引業協会会員中国地区不動産公正取引協議会加盟
取引態様:売主 |
- 提携サイト等より掲載されている物件情報につきましては、不動産会社詳細情報にリンクされていないものがあります。
- 物件に関するお問合せは、物件詳細ページの「情報提供会社」に表示されている不動産会社へ直接お願いいたします。
- 間取図は、現況を優先させていただきます。
- 映像は物件の一部を撮影したものです。物件の契約にあたっての最終判断はご自身の判断に基づいて行ってください。
- 仲介手数料について

アットホームは物件情報の適正化に努めております。
内容に誤りがある場合にはこちらへご連絡ください。