北海道釧路市大楽毛5丁目(大楽毛駅)の一戸建て:物件詳細
交通 所在地 |
駅徒歩 |
価格 |
間取り 建物面積 |
土地面積 私道負担面積 |
物件種目 築年月 |
|
JR根室本線/大楽毛
北海道釧路市大楽毛5丁目
|
3分
|
1,380万円
|
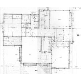
6LDK
197.64m²
|
704.09m²
-
|
中古一戸建て
1985年12月(築40年4ヶ月)
|
|
駐車場2台分、南向き、閑静な住宅街
|
|
間取図
|
|
その他の画像
|
| 交通 | JR根室本線 大楽毛駅 徒歩3分 |
|---|
| その他の交通 | JR根室本線 新大楽毛駅 徒歩26分 |
| 所在地 |
北海道釧路市大楽毛5丁目
|
| 物件種目 |
中古一戸建て |
| 価格 |
1,380万円 |
借地期間・地代(月額) |
- |
| 権利金 |
- |
敷金または保証金 |
- / - |
| 維持費等 |
- |
その他一時金 |
- |
| 間取り |
6LDK |
建物面積 |
197.64m² |
| 土地権利 |
所有権 |
建物構造 |
木造 |
| 土地面積 |
704.09m²(実測) |
私道負担面積 |
- |
| 築年月 |
1985年12月(築40年4ヶ月)
|
都市計画 |
市街化区域 |
| 建物名 |
|
建築確認番号 |
- |
| 用途地域 |
1種住居 |
駐車場 |
- |
| 建ぺい率 |
60% |
容積率 |
200% |
| 階建 |
2階建 |
接道状況 |
東 8.0m
|
| 地目 |
宅地 |
地勢 |
平坦 |
| 国土法届出 |
- |
セットバック |
- |
| アピールポイント |
霧の街に佇む、197㎡の大型邸宅。冬を豊かに彩る、ゆとりの暮らし。延床197㎡の邸宅を包み込むのは、圧倒的な704㎡の敷地。築40年、釧路の厳しい季節を幾度も越えてきたこの家には、確かな安心感があります。
延床面積197㎡という広さは、家族が集まってもなお余裕を感じさせる空間。薪ストーブを置いて炎を眺めるリビング、雪景色を楽しむサンルーム等。
「寒い冬が、一番好きな季節になる」そんな温もりのある暮らしを、この広々とした家で叶えてみませんか。猛暑を知らない街・釧路で、自分だけのリゾート拠点を持つ。築40年の趣ある197㎡の戸建ては、都会の喧騒を忘れさせる広大なプライベート空間です。状態が良く、そのまま住み始められるこの家は、あなたの「第二の人生」を支える最高のキャンバスになります。又、釧路市の戸建ては、本州の都市部と比べて圧倒的に取得コストを抑えられます。浮いた資金で、こだわりのリノベーションを楽しんだり、趣味の道具を揃えたりと、人生の質をダイレクトに向上させることが可能です。住宅エコリフォーム補助制度」などの支援策も活用でき、賢く住まいを整えるチャンスです! |
| リフォーム履歴 |
- |
| リノベーション履歴 |
- |
| 瑕疵保証 |
- |
| 瑕疵保険 |
- |
| 評価・証明書 |
- |
| 備考 |
主要採光面:南向き
|
| エネルギー消費性能 |
- |
| 断熱性能 |
- |
| 目安光熱費 |
- |
| バス・トイレ |
温水洗浄便座、トイレ2ヶ所 |
| キッチン |
システムキッチン、IHクッキングヒーター |
| 設備・サービス |
全居室収納、上水道、下水道、都市ガス、セントラル |
| その他 |
- |
| 現況 |
所有者居住中 |
引渡可能時期 |
相談 |
| 物件番号 |
6988312094 |
仲介手数料 |
売買代金の3%+6万円 |
| 情報公開日 |
2026年2月19日 |
次回更新予定日 |
2026年4月3日 |
| ケータイ用バーコード |
- スマートフォンでこの物件を見る
- スマートフォンからもこの物件をご覧になれます。
|
※「-」と表示されている項目については、情報提供会社にご確認ください。
| 周辺施設 |
セブンイレブン釧路大楽毛店 |
| 距離 |
695m |
| 周辺施設 |
国立釧路工業高等専門学校 |
| 距離 |
1449m |
| 周辺施設 |
釧路おたのしけ認定こども園 |
| 距離 |
302m |
| 周辺施設 |
医療法人社団優心会釧路優心病院 |
| 距離 |
295m |
ここから簡単にお問い合わせをすることができます。
(SSLでの暗号化での送信を希望されるお客さまは
こちら
よりお問い合わせください)
お問い合わせを行う前に
「個人情報の取り扱いについて」を必ずお読みください。
「個人情報の取り扱いについて」に同意いただいた場合は「上記にご同意の上 確認画面へ進む」のボタンをクリックしてください。
個人情報の取り扱いについて
皆さまが送付された個人情報はアットホーム(株)のサーバを経由し、お問い合わせ先の不動産会社にメールまたはFAXにて転送されるためアットホーム(株)にも保管されます。アットホーム(株)で保管された個人情報の取り扱いについては、【こちら】をご覧ください。
また、本画面でご記入いただいた個人情報は、お問い合わせ先の不動産会社でも保管します。 お問い合わせ先の不動産会社が保管する個人情報の取り扱いについては、不動産会社に直接お問い合わせください。
東京都知事免許(2)第99425号 |
|---|
- 交通:
- 京成本線/お花茶屋駅 徒歩3分
- 東京都葛飾区お花茶屋1丁目28-1 大竹ビル102
- TEL:
- 03-6240-7088
- FAX:
- 03-6240-7099
- 所属団体:
- (公社)全日本不動産協会会員(公社)首都圏不動産公正取引協議会加盟
取引態様:専任媒介  - 00261516
|
- スマートフォンで
この不動産会社を見る

|
- 提携サイト等より掲載されている物件情報につきましては、不動産会社詳細情報にリンクされていないものがあります。
- 物件に関するお問合せは、物件詳細ページの「情報提供会社」に表示されている不動産会社へ直接お願いいたします。
- 間取図は、現況を優先させていただきます。
- 映像は物件の一部を撮影したものです。物件の契約にあたっての最終判断はご自身の判断に基づいて行ってください。
- 仲介手数料について

アットホームは物件情報の適正化に努めております。
内容に誤りがある場合にはこちらへご連絡ください。