不動産 賃貸 マンション等の住宅情報:埼玉住まい情報


兵庫県南あわじ市潮美台1丁目の一戸建て:物件詳細

  • 物件詳細
  • 情報の見方
  • 印刷用画面
交通
所在地
駅徒歩 価格 間取り
建物面積
土地面積
私道負担面積
物件種目
築年月

【バス】潮美台 停歩400m

兵庫県南あわじ市潮美台1丁目


1,850万円

7K

215.64m²

463.67m²

なし

中古一戸建て

1986年10月(築39年3ヶ月)

おすすめコメント

注:南あわじ市WEBハザードマップ、南海トラフ地震「津波浸水想定区域」外です。広々敷地約140坪・南あわじ市潮美台一丁目、「事務所・売買」(仲介)

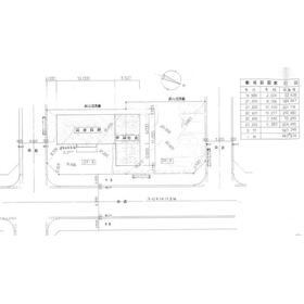
間取図

間取図

外観

外観

その他の画像
  • その他
  • 間取図
  • 間取図
  • 室内
  • 室内
  • 室内
  • キッチン
  • トイレ
  • 周辺環境
    • とりあえず保存
    • お問い合わせ
    交通

    【バス】 潮美台 停歩400m

    所在地 兵庫県南あわじ市潮美台1丁目
    物件種目 中古一戸建て
    価格 1,850万円 借地期間・地代(月額)
    権利金 敷金または保証金 - / -
    維持費等 その他一時金
    間取り 7K 建物面積 215.64m²
    土地権利 所有権 建物構造 鉄骨造
    土地面積 463.67m²(公簿) 私道負担面積 なし
    築年月 1986年10月(築39年3ヶ月) 都市計画 非線引区域
    建物名   建築確認番号
    用途地域 無指定 駐車場
    建ぺい率 60% 容積率 200%
    階建 2階建 接道状況 北 6.0m 公道 ・ 東 12.0m 公道 ・ 南 6.0m 公道 ・ 三方道路
    地目 宅地 地勢 平坦
    国土法届出 セットバック
    アピールポイント 注:南あわじ市WEBハザードマップ、南海トラフ地震「津波浸水想定区域」外です。
    注:売主は買主に対して契約不適合責任を負いません。
    注:売主は買主に対して付帯設備の修復義務を負いません。
    土地:463.67㎡(約140.26坪)
    建物:事務所・鉄骨造スレート・亜鉛メッキ鋼板葺2階建
    築年昭和61年(築39年)・築年平成6年(変更、増築)
    1階:86.84㎡ 2階:128.80㎡
    現状有姿渡し、公簿面積の取引とします。
    残置物有り(エアコン等)
    令和7年度:固定資産税年間
    143,400円
    駐車場が広い。
    リフォーム履歴
    リノベーション履歴
    瑕疵保証
    瑕疵保険
    評価・証明書
    備考
    注:南あわじ市WEBハザードマップ、南海トラフ地震「津波浸水想定区域
    」外です。
    注:売主は買主に対して契約不適合責任を負いません。
    注:売主は買主に対して付帯設備の修復義務を負いません。
    土地:463.67㎡(約140.26坪)
    建物:事務所・鉄骨造スレート・亜鉛メッキ鋼板葺2階建
    築年昭和61年(築39年)・築年平成6年(変更、増築)
    1階:86.84㎡ 2階:128.80㎡
    現状有姿渡し、公簿面積の取引とします。
    残置物有り(エアコン等)
    令和7年度:固定資産税年間
    143,400円
    駐車場が広い。
    エネルギー消費性能
    断熱性能
    目安光熱費
    バス・トイレ
    キッチン
    設備・サービス
    その他
    現況 空家 引渡可能時期 相談
    物件番号 6988343169 仲介手数料 売買代金の3%+6万円
    情報公開日 2025年11月10日 次回更新予定日 2025年12月15日
    ケータイ用バーコード

    QRコード

    スマートフォンでこの物件を見る
    スマートフォンからもこの物件をご覧になれます。
    ※「-」と表示されている項目については、情報提供会社にご確認ください。

    クイックお問い合わせ

    ここから簡単にお問い合わせをすることができます。
    (SSLでの暗号化での送信を希望されるお客さまは こちら よりお問い合わせください)

    お問い合わせ内容(必須)
    お名前(必須) 姓  名 
    メールアドレス(必須)
    ※携帯電話のメールアドレスをご入力される方はこちらをご確認ください
    電話番号(必須)
    - -

    ※入力いただいた電話番号へSMSまたは音声でパスワードをご連絡します。

    携帯電話の番号をご入力の方へ

    携帯電話の番号をご入力の方へ
    確認画面にて送信ボタンをクリックするとSMSが携帯電話に届きます。
    そのSMSに記載のパスワード(認証番号)を入力し、お問い合わせを完了してください。
    尚、SMSの送信者番号は 0005 202 760 となります。
    これはアットホームの固定番号です。

    備考欄 希望条件、物件案内希望日、質問などがございましたらご記入ください。
    お問い合わせを行う前に「個人情報の取り扱いについて」を必ずお読みください。
    「個人情報の取り扱いについて」に同意いただいた場合は「上記にご同意の上 確認画面へ進む」のボタンをクリックしてください。

    個人情報の取り扱いについて

    皆さまが送付された個人情報はアットホーム(株)のサーバを経由し、お問い合わせ先の不動産会社にメールまたはFAXにて転送されるためアットホーム(株)にも保管されます。アットホーム(株)で保管された個人情報の取り扱いについては、【こちら】をご覧ください。
    また、本画面でご記入いただいた個人情報は、お問い合わせ先の不動産会社でも保管します。 お問い合わせ先の不動産会社が保管する個人情報の取り扱いについては、不動産会社に直接お問い合わせください。

    情報提供会社

    情報提供会社

    土井商事(株)

    兵庫県知事免許(5)第800227号

    交通:
    【バス】 円行寺 停歩2分
    兵庫県南あわじ市市円行寺150 パルティ内
    TEL:
    0799-42-1013
    FAX:
    0799-42-1371
    所属団体:
    (一社)兵庫県宅地建物取引業協会会員
    (公社)近畿地区不動産公正取引協議会加盟

    取引態様:一般媒介

    • 会社情報
    • 50022754
    スマートフォンで
    この不動産会社を見る
    QRコード
    • とりあえず保存
    • お問い合わせ
    • 提携サイト等より掲載されている物件情報につきましては、不動産会社詳細情報にリンクされていないものがあります。
    • 物件に関するお問合せは、物件詳細ページの「情報提供会社」に表示されている不動産会社へ直接お願いいたします。
    • 間取図は、現況を優先させていただきます。
    • 映像は物件の一部を撮影したものです。物件の契約にあたっての最終判断はご自身の判断に基づいて行ってください。
    • 仲介手数料について仲介手数料

    アットホームは物件情報の適正化に努めております。 内容に誤りがある場合にはこちらへご連絡ください。

    【埼玉住まい情報】では、日本全国の物件から賃貸マンションや賃貸アパート・賃貸一戸建て等の賃貸住宅情報、新築マンション・分譲マンションや中古マンション等の売買マンション情報、新築一戸建てや中古一戸建てなどの戸建住宅、 土地など、総合的な不動産住宅情報検索サービスを提供致します。
    【埼玉住まい情報】から、選りすぐりの不動産物件を探してみましょう。

    【免責事項】
    このコーナーの運営はアットホーム株式会社(https://www.athome.co.jp/)が行っています。
    このコーナーに掲載している物件情報は、「アットホーム不動産情報ネットワーク」に加盟する不動産会社等(情報提供元)から提供されています。信頼性の高い情報提供が行えるよう、最大限の努力をしておりますが、その内容を保証するものではありません。 利用者のみなさまと各情報提供元との取引に起因する損害および情報が掲載されたことに起因する損害等については、株式会社イーシティ埼玉、およびアットホームは一切責任を負いません。
    各物件情報の内容や画像等はすべて現況を優先させていただきます。
    お取引等(お取引の準備、資金調達等を含みます)の際には、内容や契約条件等について、各情報提供元より十分な説明を受け、ご自身でご確認の上、判断してください。
    このコーナーへの物件情報のご掲載、その他不動産業務ソリューション等についての不動産会社様のお問合せはこちらからお願いいたします。

    物件画像: