鹿児島県鹿児島市中山1丁目(上塩屋駅)の一戸建て:物件詳細
交通 所在地 |
駅徒歩 |
価格 |
間取り 建物面積 |
土地面積 私道負担面積 |
物件種目 築年月 |
|
鹿児島市電谷山線/上塩屋
鹿児島県鹿児島市中山1丁目
|
32分
|
5,500万円
|
10SLDK
277.23m²
|
323.01m²
-
|
中古一戸建て
1997年4月(築28年9ヶ月)
|
|
駐車場3台分以上、内装コンクリート、外壁コンクリート、3面採光
|
|
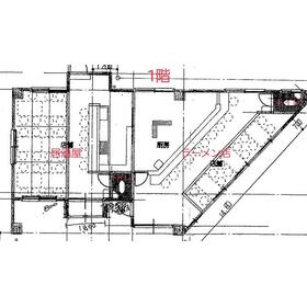
間取図
|
外観
|
<
その他の画像
>
|
| 交通 | 鹿児島市電谷山線 上塩屋駅 徒歩32分 |
|---|
| その他の交通 | 鹿児島市電谷山線 谷山駅 徒歩28分 【バス】 中山団地バス停 停歩1分 |
| 所在地 |
鹿児島県鹿児島市中山1丁目
|
| 物件種目 |
中古一戸建て |
| 価格 |
5,500万円 |
借地期間・地代(月額) |
- |
| 権利金 |
- |
敷金または保証金 |
- / - |
| 維持費等 |
- |
その他一時金 |
- |
| 間取り |
10SLDK(和 10・6・6・6・6 洋 6・6・6・6・6 LDK 12 S 42・8) |
建物面積 |
277.23m² |
| 土地権利 |
所有権 |
建物構造 |
RC |
| 土地面積 |
323.01m²(公簿) |
私道負担面積 |
- |
| 築年月 |
1997年4月(築28年9ヶ月)
|
都市計画 |
市街化区域 |
| 建物名 |
中山バイパス 店舗付き住宅 土地97坪 三方角地 RC造 |
建築確認番号 |
- |
| 用途地域 |
準住居、1種低層 |
駐車場 |
有 無料 |
| 建ぺい率 |
70% |
容積率 |
200% |
| 階建 |
2階建 |
接道状況 |
南東 25.0m 公道 接面14.8m
・ 西 9.7m 公道 接面16.5m
・ 東 6.0m 公道 接面8.8m
・ 三方道路
|
| 地目 |
宅地 |
地勢 |
平坦 |
| 国土法届出 |
- |
セットバック |
- |
| アピールポイント |
中山バイパス沿いの店舗付き住宅!
1階はとても美味しいラーメン店とカラオケ居酒屋の2店舗を営業中です。
店舗は昭和55年から45年営業しており、28年前にRCの建物を新築。
2店舗で合計68.3㎡(20.6坪)あり繋げる事も可能です。
2店舗分のグリストラップあります。
2階は入り口が2ヶ所あり7DKと3LDKです。
それぞれにキッチン、浴室あり。
全居室に収納もあります。
南東向きのワイドバルコニーはバイパス側にあり日当たり良好です!
駐車場は7台!屋根付きで倉庫も置いてあります。
約8年前に屋上の防水塗装済み。
約10年前に外壁塗装済みです。
中山小学校まで約1km、徒歩約14分
谷山北中学校まで約2.1km、徒歩約30分
年間の固定資産税は342,000円です。
残置物は撤去して引き渡します。
厨房機器は希望により無償でお引渡しします。 |
| リフォーム履歴 |
■外装:2015年1月 外壁、屋根 約8年前に屋上防水塗装・約10年前に外壁塗装済み ※実施年月は最も古い履歴を表示 |
| リノベーション履歴 |
- |
| 瑕疵保証 |
- |
| 瑕疵保険 |
- |
| 評価・証明書 |
- |
| 備考 |
主要採光面:南東向き
建築確認完了検査済証あり、新築時・増改築時の設計図書あり
|
| エネルギー消費性能 |
- |
| 断熱性能 |
- |
| 目安光熱費 |
- |
| バス・トイレ |
シャワー付洗面化粧台、温水洗浄便座、トイレ2ヶ所、浴室に窓あり |
| キッチン |
カウンターキッチン |
| 設備・サービス |
全居室収納、ウォークインクローゼット、エアコン2台以上、シューズインクローゼット、クローゼット、上水道、下水道、都市ガス、電気、ワイドバルコニー、照明器具 |
| その他 |
- |
| 現況 |
所有者居住中 |
引渡可能時期 |
相談 |
| 物件番号 |
6988343374 |
|
|
| 情報公開日 |
2025年11月11日 |
次回更新予定日 |
2025年12月23日 |
| ケータイ用バーコード |
- スマートフォンでこの物件を見る
- スマートフォンからもこの物件をご覧になれます。
|
※「-」と表示されている項目については、情報提供会社にご確認ください。
| 周辺施設 |
ローソン鹿児島中山自由ヶ丘店 |
| 距離 |
473m |
| 周辺施設 |
ファミリーマート桜ヶ丘五丁目店 |
| 距離 |
1428m |
| 周辺施設 |
国立大学法人鹿児島大学医学部 |
| 距離 |
2100m |
| 周辺施設 |
鹿児島市立谷山北中学校 |
| 距離 |
2364m |
ここから簡単にお問い合わせをすることができます。
(SSLでの暗号化での送信を希望されるお客さまは
こちら
よりお問い合わせください)
お問い合わせを行う前に
「個人情報の取り扱いについて」を必ずお読みください。
「個人情報の取り扱いについて」に同意いただいた場合は「上記にご同意の上 確認画面へ進む」のボタンをクリックしてください。
個人情報の取り扱いについて
皆さまが送付された個人情報はアットホーム(株)のサーバを経由し、お問い合わせ先の不動産会社にメールまたはFAXにて転送されるためアットホーム(株)にも保管されます。アットホーム(株)で保管された個人情報の取り扱いについては、【こちら】をご覧ください。
また、本画面でご記入いただいた個人情報は、お問い合わせ先の不動産会社でも保管します。 お問い合わせ先の不動産会社が保管する個人情報の取り扱いについては、不動産会社に直接お問い合わせください。
鹿児島県知事免許(10)第3203号 |
|---|
- 交通:
- 鹿児島市電谷山線/騎射場駅 徒歩5分 【バス】 県体育館前バス停 停歩3分
- 鹿児島県鹿児島市下荒田3丁目33-8
- TEL:
- 099-251-8822
- FAX:
- 099-253-4880
- 所属団体:
- (公社)鹿児島県宅地建物取引業協会会員(一社)九州不動産公正取引協議会加盟
取引態様:一般媒介  - 80600362
|
- スマートフォンで
この不動産会社を見る

|
- 提携サイト等より掲載されている物件情報につきましては、不動産会社詳細情報にリンクされていないものがあります。
- 物件に関するお問合せは、物件詳細ページの「情報提供会社」に表示されている不動産会社へ直接お願いいたします。
- 間取図は、現況を優先させていただきます。
- 映像は物件の一部を撮影したものです。物件の契約にあたっての最終判断はご自身の判断に基づいて行ってください。
- 仲介手数料について

アットホームは物件情報の適正化に努めております。
内容に誤りがある場合にはこちらへご連絡ください。