愛知県海部郡蟹江町城3丁目(近鉄蟹江駅)の一戸建て:物件詳細
交通 所在地 |
駅徒歩 |
価格 |
間取り 建物面積 |
土地面積 私道負担面積 |
物件種目 築年月 |
|
近鉄名古屋線/近鉄蟹江
愛知県海部郡蟹江町城3丁目
|
9分
|
3,280万円
|
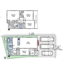
4LDK
105.51m²
|
114.06m²
-
|
新築一戸建て
2026年2月
|
|
駐車場3台分以上、外壁サイディング、ノンホルムアルデヒド、バス1坪以上、バリアフリー、オール電化
|
|
間取図
|
|
<
その他の画像
>
|
| 交通 | 近鉄名古屋線 近鉄蟹江駅 徒歩9分 |
|---|
| その他の交通 | 関西本線 蟹江駅 徒歩13分 |
| 所在地 |
愛知県海部郡蟹江町城3丁目
|
| 物件種目 |
新築一戸建て |
| 価格 |
3,280万円 |
借地期間・地代(月額) |
- |
| 権利金 |
- |
敷金または保証金 |
- / - |
| 維持費等 |
- |
その他一時金 |
- |
| 間取り |
4LDK |
建物面積 |
105.51m² |
| 土地権利 |
所有権 |
建物構造 |
木造 |
| 土地面積 |
114.06m²(公簿) |
私道負担面積 |
- |
| 築年月 |
2026年2月
|
都市計画 |
市街化区域 |
| 建物名 |
|
建築確認番号 |
第KS125-0420-56686 |
| 用途地域 |
1種住居 |
駐車場 |
- |
| 建ぺい率 |
60% |
容積率 |
200% |
| 階建 |
2階建 |
接道状況 |
北 6.0m 公道
・ 東 4.0m 公道
・ 二方道路
|
| 地目 |
宅地 |
地勢 |
平坦 |
| 国土法届出 |
- |
セットバック |
済 |
| アピールポイント |
◆オール電化
◆長期優良住宅
◆ZEH基準の断熱仕様、耐震等級3
◆食洗器、リビング電動シャッターなど設備充実
◆収納豊富 パントリー付
◆耐久性の強いガルバリウム鋼板屋根
◆断熱性にすぐれた発砲ウレタン吹付断熱
完成前は現地にて、設計図面・各種資料を使ってのご説明と合わせて、同社完成済みのモデルハウスへご案内させていただきます。
お気軽にご相談ください。蟹江町のソーシンサービスがご検討のお手伝いをさせて頂きます。 |
| リフォーム履歴 |
- |
| リノベーション履歴 |
- |
| 瑕疵保証 |
- |
| 瑕疵保険 |
- |
| 評価・証明書 |
- |
| 備考 |
号棟番号:1号棟
|
| エネルギー消費性能 |
- |
| 断熱性能 |
- |
| 目安光熱費 |
- |
| バス・トイレ |
浴室乾燥機、オートバス、追焚機能、シャワー付洗面化粧台、温水洗浄便座、トイレ2ヶ所、浴室に窓あり |
| キッチン |
カウンターキッチン、システムキッチン、食器洗浄乾燥機、浄水器、3口以上コンロ、グリル |
| 設備・サービス |
全居室収納、ウォークインクローゼット、モニター付インターホン、ディンプルキー、ダブルロックドア、電動シャッター、シャッター雨戸、全居室フローリング、上水道、下水道、電気、側溝、ダウンライト、複層ガラス |
| その他 |
- |
| 現況 |
建築中 |
引渡可能時期 |
相談 |
| 物件番号 |
6988361580 |
|
|
| 情報公開日 |
2025年11月13日 |
次回更新予定日 |
2025年12月31日 |
| ケータイ用バーコード |
- スマートフォンでこの物件を見る
- スマートフォンからもこの物件をご覧になれます。
|
※「-」と表示されている項目については、情報提供会社にご確認ください。
| 周辺施設 |
Yストア蟹江食品舘 |
| 距離 |
240m |
写真を見る |
| 周辺施設 |
ファミリーマート蟹江城店 |
| 距離 |
550m |
写真を見る |
| 周辺施設 |
蟹江南保育所 |
| 距離 |
550m |
写真を見る |
| 周辺施設 |
蟹江町立蟹江小学校 |
| 距離 |
350m |
写真を見る |
| 周辺施設 |
蟹江町立蟹江中学校 |
| 距離 |
850m |
写真を見る |
ここから簡単にお問い合わせをすることができます。
(SSLでの暗号化での送信を希望されるお客さまは
こちら
よりお問い合わせください)
お問い合わせを行う前に
「個人情報の取り扱いについて」を必ずお読みください。
「個人情報の取り扱いについて」に同意いただいた場合は「上記にご同意の上 確認画面へ進む」のボタンをクリックしてください。
個人情報の取り扱いについて
皆さまが送付された個人情報はアットホーム(株)のサーバを経由し、お問い合わせ先の不動産会社にメールまたはFAXにて転送されるためアットホーム(株)にも保管されます。アットホーム(株)で保管された個人情報の取り扱いについては、【こちら】をご覧ください。
また、本画面でご記入いただいた個人情報は、お問い合わせ先の不動産会社でも保管します。 お問い合わせ先の不動産会社が保管する個人情報の取り扱いについては、不動産会社に直接お問い合わせください。
愛知県知事免許(2)第24429号 |
|---|
- 交通:
- 近鉄名古屋線/近鉄蟹江駅 徒歩15分
- 愛知県海部郡蟹江町源氏1丁目161
- TEL:
- 0567-69-5235
- FAX:
- 0567-69-5230
- 所属団体:
- (公社)全日本不動産協会会員東海不動産公正取引協議会加盟
取引態様:一般媒介  - 40409541
|
- スマートフォンで
この不動産会社を見る

|
- 提携サイト等より掲載されている物件情報につきましては、不動産会社詳細情報にリンクされていないものがあります。
- 物件に関するお問合せは、物件詳細ページの「情報提供会社」に表示されている不動産会社へ直接お願いいたします。
- 間取図は、現況を優先させていただきます。
- 映像は物件の一部を撮影したものです。物件の契約にあたっての最終判断はご自身の判断に基づいて行ってください。
- 仲介手数料について

アットホームは物件情報の適正化に努めております。
内容に誤りがある場合にはこちらへご連絡ください。