岡山県倉敷市児島下の町3丁目(上の町駅)の一戸建て:物件詳細
交通 所在地 |
駅徒歩 |
価格 |
間取り 建物面積 |
土地面積 私道負担面積 |
物件種目 築年月 |
|
本四備讃線/上の町 [バス利用可] バス 王慈園前 停歩5分
岡山県倉敷市児島下の町3丁目
|
24分
|
1,798万円
|
4LDK
121.95m²
|
166.93m²
-
|
中古一戸建て
1985年9月(築40年4ヶ月)
|
|
南向き、吹抜、閑静な住宅街
|
|
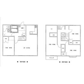
間取図
人気の4LDK
|
外観
洋風のお洒落な外観
|
<
その他の画像
>
|
| 交通 | 本四備讃線 上の町駅 徒歩24分 [バス利用可] バス 王慈園前 停歩5分 |
| 所在地 |
岡山県倉敷市児島下の町3丁目
|
| 物件種目 |
中古一戸建て |
| 価格 |
1,798万円 |
借地期間・地代(月額) |
- |
| 権利金 |
- |
敷金または保証金 |
- / - |
| 維持費等 |
- |
その他一時金 |
- |
| 間取り |
4LDK(和 6 洋 9・6・6 LDK 18) |
建物面積 |
121.95m² |
| 土地権利 |
所有権 |
建物構造 |
軽量鉄骨造 |
| 土地面積 |
166.93m²(公簿) |
私道負担面積 |
- |
| 築年月 |
1985年9月(築40年4ヶ月)
|
都市計画 |
市街化区域 |
| 建物名 |
|
建築確認番号 |
第60-00758 |
| 用途地域 |
準工業 |
駐車場 |
有 無料 |
| 建ぺい率 |
60% |
容積率 |
200% |
| 階建 |
2階建 |
接道状況 |
北 2.7m 公道 接面12.2m
・ 西 4.0m 私道 位置指定有 接面12.7m
・ 二方道路
|
| 地目 |
宅地 |
地勢 |
- |
| 国土法届出 |
- |
セットバック |
要 2.50m² |
| リフォーム履歴 |
■水回り:2025年11月 キッチン、浴室、トイレ、洗面所 ■内装:2025年11月 全室クロス張替え、床(フローリング等)、壁・天井(クロス・塗装等) ■外装:2025年11月 外壁、屋根 砕石・防草シート敷設 駐車場造成 ※実施年月は最も古い履歴を表示 |
| リノベーション履歴 |
- |
| 瑕疵保証 |
- |
| 瑕疵保険 |
- |
| 評価・証明書 |
- |
| 備考 |
主要採光面:南向き
施工会社:パナソニックホームズ(旧ナショナルホーム)
※現状有姿取引
※私道持分(8分の1)も売却対象
※プロパンガス業者指定あり(浅野産業)
※駐車場2台可(車種による)
|
| エネルギー消費性能 |
- |
| 断熱性能 |
- |
| 目安光熱費 |
- |
| バス・トイレ |
追焚機能、シャワー付洗面化粧台、温水洗浄便座、トイレ2ヶ所、浴室に窓あり |
| キッチン |
システムキッチン、食器洗浄乾燥機、浄水器、IHクッキングヒーター、グリル |
| 設備・サービス |
全居室収納、クローゼット、床下収納、モニター付インターホン、ダブルロックドア、シャッター雨戸、出窓、プロパンガス、ダウンライト、照明器具、火災警報器(報知機) |
| その他 |
- |
| 現況 |
空家 |
引渡可能時期 |
相談 |
| 物件番号 |
6988423336 |
|
|
| 情報公開日 |
2025年11月20日 |
次回更新予定日 |
2025年12月31日 |
| ケータイ用バーコード |
- スマートフォンでこの物件を見る
- スマートフォンからもこの物件をご覧になれます。
|
※「-」と表示されている項目については、情報提供会社にご確認ください。
| 周辺施設 |
ニシナフードバスケット児島下の町店 |
| 距離 |
587m |
写真を見る |
| 周辺施設 |
ファミリーマート児島下の町店 |
| 距離 |
115m |
写真を見る |
| 周辺施設 |
倉敷市立琴浦中学校 |
| 距離 |
1388m |
写真を見る |
| 周辺施設 |
倉敷市立琴浦西小学校 |
| 距離 |
615m |
写真を見る |
| 周辺施設 |
医療法人社団百子会やまな病院 |
| 距離 |
466m |
写真を見る |
| 周辺施設 |
児島下の町郵便局 |
| 距離 |
379m |
写真を見る |
| 周辺施設 |
香川銀行琴浦支店 |
| 距離 |
858m |
写真を見る |
| 周辺施設 |
倉敷市児島支所 |
| 距離 |
1592m |
写真を見る |
ここから簡単にお問い合わせをすることができます。
(SSLでの暗号化での送信を希望されるお客さまは
こちら
よりお問い合わせください)
お問い合わせを行う前に
「個人情報の取り扱いについて」を必ずお読みください。
「個人情報の取り扱いについて」に同意いただいた場合は「上記にご同意の上 確認画面へ進む」のボタンをクリックしてください。
個人情報の取り扱いについて
皆さまが送付された個人情報はアットホーム(株)のサーバを経由し、お問い合わせ先の不動産会社にメールまたはFAXにて転送されるためアットホーム(株)にも保管されます。アットホーム(株)で保管された個人情報の取り扱いについては、【こちら】をご覧ください。
また、本画面でご記入いただいた個人情報は、お問い合わせ先の不動産会社でも保管します。 お問い合わせ先の不動産会社が保管する個人情報の取り扱いについては、不動産会社に直接お問い合わせください。
岡山県知事免許(6)第4622号 |
|---|
- 交通:
- 【バス】 市役所前 停歩1分
- 岡山県岡山市北区鹿田町1丁目1-3 中島ビル2階
- TEL:
- 086-226-9100
- FAX:
- 086-226-9200
- 所属団体:
- (公社)全日本不動産協会会員中国地区不動産公正取引協議会加盟
取引態様:専任媒介  - 50026493
|
- スマートフォンで
この不動産会社を見る

|
- 提携サイト等より掲載されている物件情報につきましては、不動産会社詳細情報にリンクされていないものがあります。
- 物件に関するお問合せは、物件詳細ページの「情報提供会社」に表示されている不動産会社へ直接お願いいたします。
- 間取図は、現況を優先させていただきます。
- 映像は物件の一部を撮影したものです。物件の契約にあたっての最終判断はご自身の判断に基づいて行ってください。
- 仲介手数料について

アットホームは物件情報の適正化に努めております。
内容に誤りがある場合にはこちらへご連絡ください。