茨城県守谷市百合ケ丘3丁目(守谷駅)の一戸建て:物件詳細
交通 所在地 |
駅徒歩 |
価格 |
間取り 建物面積 |
土地面積 私道負担面積 |
物件種目 築年月 |
|
つくばエクスプレス/守谷 [バス利用可] バス 10分 天神(守谷市) 停歩6分
茨城県守谷市百合ケ丘3丁目
|
15分
|
3,050万円
|
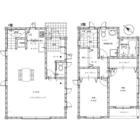
2LDK
86.12m²
|
122.18m²
-
|
中古一戸建て
2011年7月(築14年10ヶ月)
|
|
駐車場2台分、駐車場3台分以上、南向き、二世帯向き、2×4工法、2面採光、閑静な住宅街、フラット35S適合証明書あり
|
|
間取図
|
|
<
その他の画像
>
|
| 交通 | つくばエクスプレス 守谷駅 徒歩15分 [バス利用可] バス 10分 天神(守谷市) 停歩6分 |
|---|
| その他の交通 | 関東鉄道常総線 守谷駅 徒歩15分 |
| 所在地 |
茨城県守谷市百合ケ丘3丁目
|
| 物件種目 |
中古一戸建て |
| 価格 |
3,050万円 |
借地期間・地代(月額) |
- |
| 権利金 |
- |
敷金または保証金 |
- / - |
| 維持費等 |
- |
その他一時金 |
- |
| 間取り |
2LDK |
建物面積 |
86.12m² |
| 土地権利 |
所有権 |
建物構造 |
木造 |
| 土地面積 |
122.18m²(公簿) |
私道負担面積 |
- |
| 築年月 |
2011年7月(築14年10ヶ月)
|
都市計画 |
市街化区域 |
| 建物名 |
守谷市百合ヶ丘3丁目戸建 |
建築確認番号 |
- |
| 用途地域 |
1種低層 |
駐車場 |
有 無料 |
| 建ぺい率 |
40% |
容積率 |
80% |
| 階建 |
2階建 |
接道状況 |
-
|
| 地目 |
宅地 |
地勢 |
平坦 |
| 国土法届出 |
- |
セットバック |
- |
| アピールポイント |
この浮いたお金でうまくやりくりを!フラット35S適用。システムキッチン付、更にお鍋とフライパンを使いながらヤカンもおけるコンロ3口以上の仕様なので、晩ごはんの支度と翌日の弁当準備ができます。また広々とした延床面積86.12㎡の居室空間で、その上閑静な住宅街立地の物件だから、騒々しい街の喧噪から離れて生活できます。ちなみに気密が高く火に耐えるといわれる2x4工法採用です。家族の安心拠点になる2LDK。実際の空間をご自身で体感ください。 |
| リフォーム履歴 |
- |
| リノベーション履歴 |
- |
| 瑕疵保証 |
- |
| 瑕疵保険 |
- |
| 評価・証明書 |
■フラット35S適合証明書 フラット35S適合証明書あり |
| 備考 |
主要採光面:南向き
建築確認完了検査済証あり
|
| エネルギー消費性能 |
- |
| 断熱性能 |
- |
| 目安光熱費 |
- |
| バス・トイレ |
浴室暖房、浴室乾燥機、オートバス、追焚機能、シャワー付洗面化粧台、温水洗浄便座、トイレ2ヶ所 |
| キッチン |
システムキッチン、独立型キッチン、3口以上コンロ |
| 設備・サービス |
全居室収納、ウォークインクローゼット、全居室エアコン、エアコン2台以上、床暖房、床下収納、モニター付インターホン、都市ガス、火災警報器(報知機)、BS端子 |
| その他 |
- |
| 現況 |
空家 |
引渡可能時期 |
相談 |
| 物件番号 |
6988456538 |
仲介手数料 |
売買代金の3%+6万円 |
| 情報公開日 |
2026年4月17日 |
次回更新予定日 |
2026年5月1日 |
| ケータイ用バーコード |
- スマートフォンでこの物件を見る
- スマートフォンからもこの物件をご覧になれます。
|
※「-」と表示されている項目については、情報提供会社にご確認ください。
| 周辺施設 |
カスミフードスクエアイオンタウン守谷店 |
| 距離 |
569m |
| 周辺施設 |
ユニクロイオンタウン守谷店 |
| 距離 |
663m |
| 周辺施設 |
無印良品イオンタウン守谷店 |
| 距離 |
663m |
| 周辺施設 |
セブンイレブン守谷大柏店 |
| 距離 |
419m |
| 周辺施設 |
はま寿司アクロスモール守谷店 |
| 距離 |
626m |
| 周辺施設 |
銀だこイオンタウン守谷店 |
| 距離 |
585m |
| 周辺施設 |
丸亀製麺イオンタウン守谷店 |
| 距離 |
654m |
ここから簡単にお問い合わせをすることができます。
(SSLでの暗号化での送信を希望されるお客さまは
こちら
よりお問い合わせください)
お問い合わせを行う前に
「個人情報の取り扱いについて」を必ずお読みください。
「個人情報の取り扱いについて」に同意いただいた場合は「上記にご同意の上 確認画面へ進む」のボタンをクリックしてください。
個人情報の取り扱いについて
皆さまが送付された個人情報はアットホーム(株)のサーバを経由し、お問い合わせ先の不動産会社にメールまたはFAXにて転送されるためアットホーム(株)にも保管されます。アットホーム(株)で保管された個人情報の取り扱いについては、【こちら】をご覧ください。
また、本画面でご記入いただいた個人情報は、お問い合わせ先の不動産会社でも保管します。 お問い合わせ先の不動産会社が保管する個人情報の取り扱いについては、不動産会社に直接お問い合わせください。
東京都知事免許(3)第97431号 |
|---|
- 交通:
- JR山手線/池袋駅 徒歩3分
- 東京都豊島区西池袋5丁目5-21 ザ・タワー・グランディア2901号室
- TEL:
- 03-6907-1590
- FAX:
- 03-6907-1579
- 所属団体:
- (公社)東京都宅地建物取引業協会会員(公社)首都圏不動産公正取引協議会加盟
取引態様:媒介  - 00162282
|
- スマートフォンで
この不動産会社を見る

|
- 提携サイト等より掲載されている物件情報につきましては、不動産会社詳細情報にリンクされていないものがあります。
- 物件に関するお問合せは、物件詳細ページの「情報提供会社」に表示されている不動産会社へ直接お願いいたします。
- 間取図は、現況を優先させていただきます。
- 映像は物件の一部を撮影したものです。物件の契約にあたっての最終判断はご自身の判断に基づいて行ってください。
- 仲介手数料について

アットホームは物件情報の適正化に努めております。
内容に誤りがある場合にはこちらへご連絡ください。