長野県松本市村井町南4丁目(村井駅)の一戸建て:物件詳細
交通 所在地 |
駅徒歩 |
価格 |
間取り 建物面積 |
土地面積 私道負担面積 |
物件種目 築年月 |
|
JR篠ノ井線/村井
長野県松本市村井町南4丁目
|
11分
|
4,980万円
|
2LDK
107.64m²
|
171.64m²
-
|
新築一戸建て
2025年9月
|
|
駐車場3台分以上、制震構造、高気密高断熱住宅、オール電化
|
|
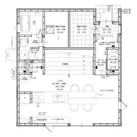
間取図
|
間取図
【1F】デザインだけではありません。大階段の下には、季節家電や日用品が丸ごと入る「巨大な収納スペース」を確保。生活感を隠してリビングを広く使える、デザインと実用性を兼ね備えた賢い間取りです。
|
<
その他の画像
>
|
| 交通 | JR篠ノ井線 村井駅 徒歩11分 |
| 所在地 |
長野県松本市村井町南4丁目
|
| 物件種目 |
新築一戸建て |
| 価格 |
4,980万円 |
借地期間・地代(月額) |
- |
| 権利金 |
- |
敷金または保証金 |
- / - |
| 維持費等 |
- |
その他一時金 |
- |
| 間取り |
2LDK(洋 6・4) |
建物面積 |
107.64m² |
| 土地権利 |
所有権 |
建物構造 |
木造 |
| 土地面積 |
171.64m²(公簿) |
私道負担面積 |
- |
| 築年月 |
2025年9月
|
都市計画 |
市街化区域 |
| 建物名 |
|
建築確認番号 |
第24NJM-10-02108号 (令和7年3月18日) |
| 用途地域 |
1種住居 |
駐車場 |
- |
| 建ぺい率 |
60% |
容積率 |
200% |
| 階建 |
2階建 |
接道状況 |
北 6.0m
|
| 地目 |
宅地 |
地勢 |
平坦 |
| 国土法届出 |
- |
セットバック |
- |
| アピールポイント |
太陽光パネルは6.88KW搭載。
太陽光と連動するエコキュートとも相まって、光熱費は驚くほど低く抑えられます。
「大階段」アイデアひとつで階段は、通路から「居場所」となる。
なぜか座りたくなる、どこか心地よい。階段にはそんな不思議な魅力があります。 |
| リフォーム履歴 |
- |
| リノベーション履歴 |
- |
| 瑕疵保証 |
- |
| 瑕疵保険 |
- |
| 評価・証明書 |
- |
| 備考 |
施工会社:ホクシンハウス株式会社
「階段は上の階へ行くだけの場所ですか?」
この家に入った瞬間、その常識は覆ります。
リビングの中心に構えるのは、光と風を通すダイナミックな「大階段」。
友人を招いて段差に腰掛けホームパーティをしたり、
日当たりの良い段でお子様が絵本を読んだり。
今までの常識外の場が「居場所」になります。
【なぜ、長野でこんな開放的な家が作れるのか?】
これだけの吹き抜け空間は冬の寒さがネックに。
しかし、ホクシンハウスの特許技術『FB-6工法』なら話は別。
エアコン1台で家中の温度を均一に保つため、足元から天井まで春のような暖かさ。
「デザイン」のために「快適さ」を犠牲にする必要はありません!
|
| エネルギー消費性能 |
- |
| 断熱性能 |
- |
| 目安光熱費 |
- |
| バス・トイレ |
- |
| キッチン |
- |
| 設備・サービス |
太陽光発電システム、ディンプルキー、上水道、下水道、電気、エアコン、庭、ウッドデッキ、間接照明、照明器具、火災警報器(報知機) |
| その他 |
- |
| 現況 |
空家 |
引渡可能時期 |
相談 |
| 物件番号 |
6988473060 |
|
|
| 情報公開日 |
2025年11月22日 |
次回更新予定日 |
2025年12月26日 |
| ケータイ用バーコード |
- スマートフォンでこの物件を見る
- スマートフォンからもこの物件をご覧になれます。
|
※「-」と表示されている項目については、情報提供会社にご確認ください。
| 周辺施設 |
イオンタウン松本村井 |
| 距離 |
331m |
写真を見る |
| 周辺施設 |
セブンイレブン松本芳川村井町店 |
| 距離 |
330m |
写真を見る |
| 周辺施設 |
松本市立筑摩野中学校 |
| 距離 |
1609m |
写真を見る |
| 周辺施設 |
松本市立芳川小学校 |
| 距離 |
2335m |
写真を見る |
| 周辺施設 |
松本信用金庫村井支店 |
| 距離 |
383m |
写真を見る |
| 周辺施設 |
ファミリーマート松本村井店 |
| 距離 |
442m |
| 周辺施設 |
スーパースポーツゼビオ松本芳川店 |
| 距離 |
1537m |
ここから簡単にお問い合わせをすることができます。
(SSLでの暗号化での送信を希望されるお客さまは
こちら
よりお問い合わせください)
お問い合わせを行う前に
「個人情報の取り扱いについて」を必ずお読みください。
「個人情報の取り扱いについて」に同意いただいた場合は「上記にご同意の上 確認画面へ進む」のボタンをクリックしてください。
個人情報の取り扱いについて
皆さまが送付された個人情報はアットホーム(株)のサーバを経由し、お問い合わせ先の不動産会社にメールまたはFAXにて転送されるためアットホーム(株)にも保管されます。アットホーム(株)で保管された個人情報の取り扱いについては、【こちら】をご覧ください。
また、本画面でご記入いただいた個人情報は、お問い合わせ先の不動産会社でも保管します。 お問い合わせ先の不動産会社が保管する個人情報の取り扱いについては、不動産会社に直接お問い合わせください。
長野県知事免許(4)第5173号 |
|---|
- 交通:
- 北陸新幹線/長野駅 【バス】13分
- 長野県長野市大字西尾張部322番地1 長野本社
- TEL:
- 0120-23-2358
- FAX:
- 0262-27-3901
- 所属団体:
- (公社)長野県宅地建物取引業協会会員(公社)首都圏不動産公正取引協議会加盟
取引態様:売主  - 00268291
|
- スマートフォンで
この不動産会社を見る

|
- 提携サイト等より掲載されている物件情報につきましては、不動産会社詳細情報にリンクされていないものがあります。
- 物件に関するお問合せは、物件詳細ページの「情報提供会社」に表示されている不動産会社へ直接お願いいたします。
- 間取図は、現況を優先させていただきます。
- 映像は物件の一部を撮影したものです。物件の契約にあたっての最終判断はご自身の判断に基づいて行ってください。
- 仲介手数料について

アットホームは物件情報の適正化に努めております。
内容に誤りがある場合にはこちらへご連絡ください。