広島県大竹市玖波1丁目(玖波駅)の一戸建て:物件詳細
交通 所在地 |
駅徒歩 |
価格 |
間取り 建物面積 |
土地面積 私道負担面積 |
物件種目 築年月 |
|
JR山陽本線/玖波
広島県大竹市玖波1丁目
|
3分
|
3,087万円
|
4LDK
109.30m²
|
171.90m²
-
|
新築一戸建て
2026年4月
|
|
駐車場2台分、外壁サイディング、バス1坪以上、24時間換気システム、オール電化、整形地
|
|
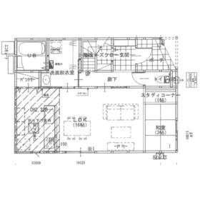
間取図
1階間取図
|
外観
|
<
その他の画像
>
|
| 交通 | JR山陽本線 玖波駅 徒歩3分 |
| 所在地 |
広島県大竹市玖波1丁目
|
| 物件種目 |
新築一戸建て |
| 価格 |
3,087万円 |
借地期間・地代(月額) |
- |
| 権利金 |
- |
敷金または保証金 |
- / - |
| 維持費等 |
- |
その他一時金 |
- |
| 間取り |
4LDK(和 3 洋 7・7・6 LDK 16) |
建物面積 |
109.30m² |
| 土地権利 |
所有権 |
建物構造 |
木造 |
| 土地面積 |
171.90m²(実測) |
私道負担面積 |
- |
| 築年月 |
2026年4月
|
都市計画 |
市街化区域 |
| 建物名 |
|
建築確認番号 |
第R07認広建セ01091号 |
| 用途地域 |
1種住居 |
駐車場 |
- |
| 建ぺい率 |
60% |
容積率 |
200% |
| 階建 |
2階建 |
接道状況 |
北東 4.3m 公道 接面19.5m
・ 南東 6.1m 公道 接面8.4m
・ 二方道路
|
| 地目 |
宅地 |
地勢 |
- |
| 国土法届出 |
- |
セットバック |
- |
| アピールポイント |
【建売住宅キャンペーン】(2026.1/5~2026.12/29まで)住宅ローンのご相談、事前審査の方3000円分のクオカード、ご成約の方に50000円分の商品券プレゼント! |
| リフォーム履歴 |
- |
| リノベーション履歴 |
- |
| 瑕疵保証 |
- |
| 瑕疵保険 |
- |
| 評価・証明書 |
- |
| 備考 |
号棟番号:1号棟
|
| エネルギー消費性能 |
- |
| 断熱性能 |
- |
| 目安光熱費 |
- |
| バス・トイレ |
浴室乾燥機、オートバス、追焚機能、シャワー付洗面化粧台、温水洗浄便座、トイレ2ヶ所 |
| キッチン |
カウンターキッチン、システムキッチン、食器洗浄乾燥機、IHクッキングヒーター |
| 設備・サービス |
全居室収納、ウォークインクローゼット、シューズインクローゼット、クローゼット、床下収納、モニター付インターホン、省エネ給湯器、上水道、下水道、電気、サンルーム、人感センサー付照明、ダウンライト、照明器具、火災警報器(報知機)、複層ガラス |
| その他 |
- |
| 現況 |
完成済 |
引渡可能時期 |
相談 |
| 物件番号 |
6988604480 |
|
|
| 情報公開日 |
2025年12月2日 |
次回更新予定日 |
2026年5月22日 |
| ケータイ用バーコード |
- スマートフォンでこの物件を見る
- スマートフォンからもこの物件をご覧になれます。
|
※「-」と表示されている項目については、情報提供会社にご確認ください。
| 周辺施設 |
ゆめタウン大竹 |
| 距離 |
1685m |
写真を見る |
| 周辺施設 |
大竹市立玖波中学校 |
| 距離 |
714m |
写真を見る |
| 周辺施設 |
大竹市立玖波小学校 |
| 距離 |
600m |
写真を見る |
ここから簡単にお問い合わせをすることができます。
(SSLでの暗号化での送信を希望されるお客さまは
こちら
よりお問い合わせください)
お問い合わせを行う前に
「個人情報の取り扱いについて」を必ずお読みください。
「個人情報の取り扱いについて」に同意いただいた場合は「上記にご同意の上 確認画面へ進む」のボタンをクリックしてください。
個人情報の取り扱いについて
皆さまが送付された個人情報はアットホーム(株)のサーバを経由し、お問い合わせ先の不動産会社にメールまたはFAXにて転送されるためアットホーム(株)にも保管されます。アットホーム(株)で保管された個人情報の取り扱いについては、【こちら】をご覧ください。
また、本画面でご記入いただいた個人情報は、お問い合わせ先の不動産会社でも保管します。 お問い合わせ先の不動産会社が保管する個人情報の取り扱いについては、不動産会社に直接お問い合わせください。
広島県知事免許(6)第8485号 |
|---|
- 交通:
- JR山陽本線/大竹駅 徒歩2分
- 広島県大竹市油見3丁目3-11
- TEL:
- 0827-53-5586
- FAX:
- 0827-53-5596
- 所属団体:
- (公社)全日本不動産協会会員中国地区不動産公正取引協議会加盟
取引態様:専任媒介  - 50019213
|
- スマートフォンで
この不動産会社を見る

|
- 提携サイト等より掲載されている物件情報につきましては、不動産会社詳細情報にリンクされていないものがあります。
- 物件に関するお問合せは、物件詳細ページの「情報提供会社」に表示されている不動産会社へ直接お願いいたします。
- 間取図は、現況を優先させていただきます。
- 映像は物件の一部を撮影したものです。物件の契約にあたっての最終判断はご自身の判断に基づいて行ってください。
- 仲介手数料について

アットホームは物件情報の適正化に努めております。
内容に誤りがある場合にはこちらへご連絡ください。