秋田県秋田市仁井田二ツ屋2丁目(羽後牛島駅)の一戸建て:物件詳細
交通 所在地 |
駅徒歩 |
価格 |
間取り 建物面積 |
土地面積 私道負担面積 |
物件種目 築年月 |
|
JR羽越本線/羽後牛島 [バス利用可] バス 福島入口 停歩2分
秋田県秋田市仁井田二ツ屋2丁目
|
14分
|
2,100万円
|
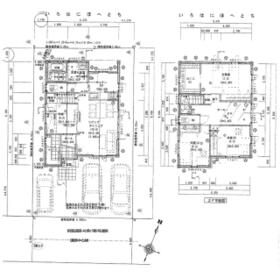
4LDK
105.99m²
|
132.59m²
有 35.00m²
|
中古一戸建て
2017年10月(築8年6ヶ月)
|
|
駐車場3台分以上、南向き、バス1坪以上、閑静な住宅街、整形地
|
|
間取図
|
外観
|
<
その他の画像
>
|
| 交通 | JR羽越本線 羽後牛島駅 徒歩14分 [バス利用可] バス 福島入口 停歩2分 |
| 所在地 |
秋田県秋田市仁井田二ツ屋2丁目
|
| 物件種目 |
中古一戸建て |
| 価格 |
2,100万円 |
借地期間・地代(月額) |
- |
| 権利金 |
- |
敷金または保証金 |
- / - |
| 維持費等 |
- |
その他一時金 |
- |
| 間取り |
4LDK(和 4.5 洋 5.3・5.3・7.5 LDK 15.6) |
建物面積 |
105.99m² |
| 土地権利 |
所有権 |
建物構造 |
木造 |
| 土地面積 |
132.59m²(公簿) |
私道負担面積 |
有 35.00m² |
| 築年月 |
2017年10月(築8年6ヶ月)
|
都市計画 |
市街化区域 |
| 建物名 |
仁井田二ツ屋中古住宅 |
建築確認番号 |
- |
| 用途地域 |
1種低層 |
駐車場 |
有 無料 |
| 建ぺい率 |
50% |
容積率 |
80% |
| 階建 |
2階建 |
接道状況 |
南 4.0m 私道 接面8.9m
|
| 地目 |
宅地 |
地勢 |
平坦 |
| 国土法届出 |
- |
セットバック |
済 |
| リフォーム履歴 |
- |
| リノベーション履歴 |
- |
| 瑕疵保証 |
- |
| 瑕疵保険 |
- |
| 評価・証明書 |
■建物状況調査 実施済み(報告書あり) 建物検査実施日:2025年12月02日 検査料:買主負担なし |
| 備考 |
主要採光面:南向き
建築確認完了検査済証あり
|
| エネルギー消費性能 |
- |
| 断熱性能 |
- |
| 目安光熱費 |
- |
| バス・トイレ |
シャワー付洗面化粧台、温水洗浄便座、トイレ2ヶ所、浴室に窓あり |
| キッチン |
システムキッチン、食器洗浄乾燥機、IHクッキングヒーター、3口以上コンロ |
| 設備・サービス |
全居室収納、ウォークインクローゼット、クローゼット、モニター付インターホン、クッションフロア、上水道、下水道、都市ガス、電気、可動間仕切り、側溝、エアコン、ダウンライト、照明器具 |
| その他 |
- |
| 現況 |
空家 |
引渡可能時期 |
即時 |
| 物件番号 |
6988649581 |
|
|
| 情報公開日 |
2026年3月10日 |
次回更新予定日 |
2026年4月6日 |
| ケータイ用バーコード |
- スマートフォンでこの物件を見る
- スマートフォンからもこの物件をご覧になれます。
|
※「-」と表示されている項目については、情報提供会社にご確認ください。
| 周辺施設 |
JR羽越本線 羽後牛島駅 |
| 距離 |
1100m |
| 周辺施設 |
秋田中央交通「福島入口」 |
| 距離 |
135m |
| 周辺施設 |
セブンイレブン秋田仁井田二ツ屋店 |
| 距離 |
350m |
| 周辺施設 |
城南さいとうクリニック |
| 距離 |
1240m |
ここから簡単にお問い合わせをすることができます。
(SSLでの暗号化での送信を希望されるお客さまは
こちら
よりお問い合わせください)
お問い合わせを行う前に
「個人情報の取り扱いについて」を必ずお読みください。
「個人情報の取り扱いについて」に同意いただいた場合は「上記にご同意の上 確認画面へ進む」のボタンをクリックしてください。
個人情報の取り扱いについて
皆さまが送付された個人情報はアットホーム(株)のサーバを経由し、お問い合わせ先の不動産会社にメールまたはFAXにて転送されるためアットホーム(株)にも保管されます。アットホーム(株)で保管された個人情報の取り扱いについては、【こちら】をご覧ください。
また、本画面でご記入いただいた個人情報は、お問い合わせ先の不動産会社でも保管します。 お問い合わせ先の不動産会社が保管する個人情報の取り扱いについては、不動産会社に直接お問い合わせください。
秋田県知事免許(6)第1696号 |
|---|
- 交通:
- JR奥羽本線/秋田駅 徒歩32分
- 秋田県秋田市保戸野原の町17-5
- TEL:
- 018-866-6080
- FAX:
- 018-866-6040
- 所属団体:
- (公社)秋田県宅地建物取引業協会会員東北地区不動産公正取引協議会加盟
取引態様:専任媒介  - 20002623
|
- スマートフォンで
この不動産会社を見る

|
- 提携サイト等より掲載されている物件情報につきましては、不動産会社詳細情報にリンクされていないものがあります。
- 物件に関するお問合せは、物件詳細ページの「情報提供会社」に表示されている不動産会社へ直接お願いいたします。
- 間取図は、現況を優先させていただきます。
- 映像は物件の一部を撮影したものです。物件の契約にあたっての最終判断はご自身の判断に基づいて行ってください。
- 仲介手数料について

アットホームは物件情報の適正化に努めております。
内容に誤りがある場合にはこちらへご連絡ください。