福岡県福岡市東区青葉6丁目(土井駅)の一戸建て:物件詳細
交通 所在地 |
駅徒歩 |
価格 |
間取り 建物面積 |
土地面積 私道負担面積 |
物件種目 築年月 |
|
JR香椎線/土井
福岡県福岡市東区青葉6丁目
|
17分
|
4,500万円
|
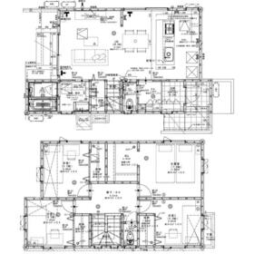
4LDK
106.41m²
|
168.78m²
-
|
新築一戸建て
2025年11月
|
|
デザイナーズ、駐車場3台分以上、高気密高断熱住宅、外壁サイディング、バス1坪以上、全室2面採光、3面採光、24時間換気システム、オール電化、前面棟無
|
|
間取図
|
外観
|
<
その他の画像
>
|
| 交通 | JR香椎線 土井駅 徒歩17分 |
|---|
| その他の交通 | JR香椎線 舞松原駅 徒歩22分 JR香椎線 香椎神宮駅 徒歩30分 |
| 所在地 |
福岡県福岡市東区青葉6丁目
|
| 物件種目 |
新築一戸建て |
| 価格 |
4,500万円 |
借地期間・地代(月額) |
- |
| 権利金 |
- |
敷金または保証金 |
- / - |
| 維持費等 |
- |
その他一時金 |
- |
| 間取り |
4LDK |
建物面積 |
106.41m² |
| 土地権利 |
所有権 |
建物構造 |
木造 |
| 土地面積 |
168.78m²(公簿) |
私道負担面積 |
- |
| 築年月 |
2025年11月
|
都市計画 |
市街化区域 |
| 建物名 |
|
建築確認番号 |
- |
| 用途地域 |
1種低層 |
駐車場 |
- |
| 建ぺい率 |
40% |
容積率 |
80% |
| 階建 |
2階建 |
接道状況 |
-
|
| 地目 |
宅地 |
地勢 |
- |
| 国土法届出 |
- |
セットバック |
- |
| アピールポイント |
■省令準耐火構造×ZEH水準省エネ住宅
■LDK20帖×無垢材
■ZEH水準省エネ住宅で環境にやさしいだけではなく、光熱費軽減×金利優遇×住宅ローン減税拡大など様々なメリットがあります。
■木の温もりを感じる無垢材フローリング
■火災保険もお得な省令準耐火構造
■断熱材にもこだわりが…発泡ウレタン吹付けで通常の繊維系の断熱材と比べて隙間がないので高い断熱性と気密性吸音性能を実現。目に見えない部分にもこだわって建築しています
■オール電化+最新の省エネ設備仕様
■食器洗乾燥機・浴室乾燥機・オールインワン浄水器等
■24時間365日の安心住まいアフターサービス付 |
| リフォーム履歴 |
- |
| リノベーション履歴 |
- |
| 瑕疵保証 |
- |
| 瑕疵保険 |
- |
| 評価・証明書 |
- |
| 備考 |
工事完了予定日:2025年11月
建築確認完了検査済証あり、新築時・増改築時の設計図書あり
|
| エネルギー消費性能 |
★★★★(削減率30%達成) |
| 断熱性能 |
6段階/7段階中 |
| 目安光熱費 |
- |
| バス・トイレ |
TV付浴室、浴室暖房、浴室乾燥機、オートバス、追焚機能、シャワー付洗面化粧台、温水洗浄便座、タンクレストイレ、トイレ2ヶ所、浴室に窓あり |
| キッチン |
アイランドキッチン、システムキッチン、食器洗浄乾燥機、浄水器、IHクッキングヒーター、3口以上コンロ |
| 設備・サービス |
全居室収納、ウォークインクローゼット、EV車充電設備、クローゼット、モニター付インターホン、ディンプルキー、全居室フローリング、室内物干し、上水道、下水道、電気、人感センサー付照明、ダウンライト、照明器具、複層ガラス |
| その他 |
- |
| 現況 |
空家 |
引渡可能時期 |
即時 |
| 物件番号 |
6988691831 |
|
|
| 情報公開日 |
2026年3月17日 |
次回更新予定日 |
2026年3月31日 |
| ケータイ用バーコード |
- スマートフォンでこの物件を見る
- スマートフォンからもこの物件をご覧になれます。
|
※「-」と表示されている項目については、情報提供会社にご確認ください。
| 周辺施設 |
サニー舞松原店 |
| 距離 |
1623m |
写真を見る |
| 周辺施設 |
MrMax土井店 |
| 距離 |
1062m |
写真を見る |
| 周辺施設 |
セブンイレブン福岡名子3丁目店 |
| 距離 |
835m |
写真を見る |
| 周辺施設 |
マクドナルド福岡土井店 |
| 距離 |
1488m |
写真を見る |
| 周辺施設 |
福岡市立青葉中学校 |
| 距離 |
1057m |
写真を見る |
| 周辺施設 |
福岡市立青葉小学校 |
| 距離 |
759m |
写真を見る |
| 周辺施設 |
特定医療法人原土井病院 |
| 距離 |
480m |
写真を見る |
| 周辺施設 |
福岡青葉郵便局 |
| 距離 |
303m |
写真を見る |
ここから簡単にお問い合わせをすることができます。
(SSLでの暗号化での送信を希望されるお客さまは
こちら
よりお問い合わせください)
お問い合わせを行う前に
「個人情報の取り扱いについて」を必ずお読みください。
「個人情報の取り扱いについて」に同意いただいた場合は「上記にご同意の上 確認画面へ進む」のボタンをクリックしてください。
個人情報の取り扱いについて
皆さまが送付された個人情報はアットホーム(株)のサーバを経由し、お問い合わせ先の不動産会社にメールまたはFAXにて転送されるためアットホーム(株)にも保管されます。アットホーム(株)で保管された個人情報の取り扱いについては、【こちら】をご覧ください。
また、本画面でご記入いただいた個人情報は、お問い合わせ先の不動産会社でも保管します。 お問い合わせ先の不動産会社が保管する個人情報の取り扱いについては、不動産会社に直接お問い合わせください。
福岡県知事免許(9)第10084号 |
|---|
- 交通:
- 地下鉄空港線/赤坂駅
- 福岡県福岡市中央区舞鶴2丁目8-29 サンセーヌ舞鶴
- TEL:
- 092-741-6560
- FAX:
- 092-741-6542
- 所属団体:
- (公社)福岡県宅地建物取引業協会会員(一社)九州不動産公正取引協議会加盟
取引態様:専任媒介  - 80504689
|
- スマートフォンで
この不動産会社を見る

|
- 提携サイト等より掲載されている物件情報につきましては、不動産会社詳細情報にリンクされていないものがあります。
- 物件に関するお問合せは、物件詳細ページの「情報提供会社」に表示されている不動産会社へ直接お願いいたします。
- 間取図は、現況を優先させていただきます。
- 映像は物件の一部を撮影したものです。物件の契約にあたっての最終判断はご自身の判断に基づいて行ってください。
- 仲介手数料について

アットホームは物件情報の適正化に努めております。
内容に誤りがある場合にはこちらへご連絡ください。