不動産 賃貸 マンション等の住宅情報:埼玉住まい情報


岡山県総社市久代(総社駅)の一戸建て:物件詳細

  • 物件詳細
  • 情報の見方
  • 印刷用画面
交通
所在地
駅徒歩 価格 間取り
建物面積
土地面積
私道負担面積
物件種目
築年月

伯備線/総社
[バス利用可] バス 16分 あおいハイツ東 停歩2分

岡山県総社市久代

4700m

980万円

4LDK

153.96m²

248.70m²

中古一戸建て

1989年8月(築36年10ヶ月)

おすすめPOINT南向き、閑静な住宅街、前面棟無、隣接建物距離2m以上

おすすめコメント

日当り良好・南面ルーフバルコニー☆庭付き美邸☆広い居室空間が魅力の物件です☆

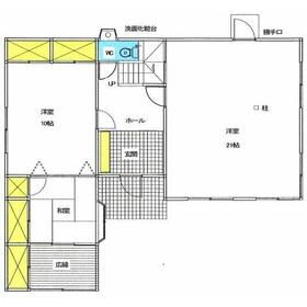
間取図

間取図

2階間取り

間取図

間取図

1階間取り

<
その他の画像
  • 外観
  • キッチン
  • リビング
  • 室内
  • トイレ
  • トイレ
  • 室内
  • 室内
  • 室内
  • 室内
  • 室内
  • 玄関
  • 庭
  • 駐車場
  • ショッピング施設
  • コンビニ
  • 郵便局
  • 銀行
  • 小学校
  • 中学校
>
    • とりあえず保存
    • お問い合わせ
    交通

    伯備線 総社駅 徒歩4700m
    [バス利用可] バス 16分 あおいハイツ東 停歩2分

    所在地 岡山県総社市久代
    物件種目 中古一戸建て
    価格 980万円 借地期間・地代(月額)
    権利金 敷金または保証金 - / -
    維持費等 共同施設使用料:6,000円/月 その他一時金
    間取り 4LDK(和 4.5・6 洋 21・10 LDK 18) 建物面積 153.96m²
    土地権利 所有権 建物構造 軽量鉄骨造
    土地面積 248.70m²(公簿) 私道負担面積
    築年月 1989年8月(築36年10ヶ月) 都市計画 調整区域
    建物名   建築確認番号
    用途地域 無指定 駐車場 有 無料
    建ぺい率 50% 容積率 100%
    階建 2階建 接道状況 南 6.0m 公道
    地目 宅地 地勢 雛段
    国土法届出 セットバック
    リフォーム履歴
    リノベーション履歴
    瑕疵保証
    瑕疵保険
    評価・証明書
    備考
    主要採光面:南向き
    現況の駐車場は普通車1台分ですが、拡幅すれば普通車2台駐車できるスパースが有ります。
    エネルギー消費性能
    断熱性能
    目安光熱費
    バス・トイレ 追焚機能、温水洗浄便座、トイレ2ヶ所、浴室に窓あり
    キッチン システムキッチン、IHクッキングヒーター、3口以上コンロ、グリル
    設備・サービス 全居室収納、浄化槽、上水道、プロパンガス、側溝、庭、ルーフバルコニー、縁側、照明器具、掘ごたつ、ケーブルTV
    その他
    現況 空家 引渡可能時期 即時
    物件番号 6988778749    
    情報公開日 2025年12月15日 次回更新予定日 2026年5月10日
    ケータイ用バーコード

    QRコード

    スマートフォンでこの物件を見る
    スマートフォンからもこの物件をご覧になれます。
    ※「-」と表示されている項目については、情報提供会社にご確認ください。

    この物件の周辺情報

    周辺施設 プラザ久代店
    距離 968m
    周辺施設 ローソン総社久代店
    距離 997m
    周辺施設 総社秦郵便局
    距離 1546m
    周辺施設 吉備信用金庫西部支店
    距離 2527m
    周辺施設 総社市立総社西小学校
    距離 1260m
    周辺施設 総社市立総社中学校
    距離 1387m

    クイックお問い合わせ

    ここから簡単にお問い合わせをすることができます。
    (SSLでの暗号化での送信を希望されるお客さまは こちら よりお問い合わせください)

    お問い合わせ内容(必須)
    お名前(必須) 姓  名 
    メールアドレス(必須)
    ※携帯電話のメールアドレスをご入力される方はこちらをご確認ください
    電話番号(必須)
    - -

    ※入力いただいた電話番号へSMSまたは音声でパスワードをご連絡します。

    携帯電話の番号をご入力の方へ

    携帯電話の番号をご入力の方へ
    確認画面にて送信ボタンをクリックするとSMSが携帯電話に届きます。
    そのSMSに記載のパスワード(認証番号)を入力し、お問い合わせを完了してください。
    尚、SMSの送信者番号は 0005 202 760 となります。
    これはアットホームの固定番号です。

    備考欄 希望条件、物件案内希望日、質問などがございましたらご記入ください。
    お問い合わせを行う前に「個人情報の取り扱いについて」を必ずお読みください。
    「個人情報の取り扱いについて」に同意いただいた場合は「上記にご同意の上 確認画面へ進む」のボタンをクリックしてください。

    個人情報の取り扱いについて

    皆さまが送付された個人情報はアットホーム(株)のサーバを経由し、お問い合わせ先の不動産会社にメールまたはFAXにて転送されるためアットホーム(株)にも保管されます。アットホーム(株)で保管された個人情報の取り扱いについては、【こちら】をご覧ください。
    また、本画面でご記入いただいた個人情報は、お問い合わせ先の不動産会社でも保管します。 お問い合わせ先の不動産会社が保管する個人情報の取り扱いについては、不動産会社に直接お問い合わせください。

    情報提供会社

    情報提供会社

    (株)e-住まいる

    岡山県知事免許(2)第5670号

    交通:
    JR山陽本線/倉敷駅 徒歩25分 【バス】 両備バス倉敷市役所前 停歩5分
    岡山県倉敷市西中新田507-2 
    TEL:
    086-454-8818
    FAX:
    086-454-8819
    所属団体:
    (公社)全日本不動産協会会員
    中国地区不動産公正取引協議会加盟

    取引態様:媒介

    • 会社情報
    • 50108121
    スマートフォンで
    この不動産会社を見る
    QRコード
    • とりあえず保存
    • お問い合わせ
    • 提携サイト等より掲載されている物件情報につきましては、不動産会社詳細情報にリンクされていないものがあります。
    • 物件に関するお問合せは、物件詳細ページの「情報提供会社」に表示されている不動産会社へ直接お願いいたします。
    • 間取図は、現況を優先させていただきます。
    • 映像は物件の一部を撮影したものです。物件の契約にあたっての最終判断はご自身の判断に基づいて行ってください。
    • 仲介手数料について仲介手数料

    アットホームは物件情報の適正化に努めております。 内容に誤りがある場合にはこちらへご連絡ください。

    【埼玉住まい情報】では、日本全国の物件から賃貸マンションや賃貸アパート・賃貸一戸建て等の賃貸住宅情報、新築マンション・分譲マンションや中古マンション等の売買マンション情報、新築一戸建てや中古一戸建てなどの戸建住宅、 土地など、総合的な不動産住宅情報検索サービスを提供致します。
    【埼玉住まい情報】から、選りすぐりの不動産物件を探してみましょう。

    【免責事項】
    このコーナーの運営はアットホーム株式会社(https://www.athome.co.jp/)が行っています。
    このコーナーに掲載している物件情報は、「アットホーム不動産情報ネットワーク」に加盟する不動産会社等(情報提供元)から提供されています。信頼性の高い情報提供が行えるよう、最大限の努力をしておりますが、その内容を保証するものではありません。 利用者のみなさまと各情報提供元との取引に起因する損害および情報が掲載されたことに起因する損害等については、株式会社イーシティ埼玉、およびアットホームは一切責任を負いません。
    各物件情報の内容や画像等はすべて現況を優先させていただきます。
    お取引等(お取引の準備、資金調達等を含みます)の際には、内容や契約条件等について、各情報提供元より十分な説明を受け、ご自身でご確認の上、判断してください。
    このコーナーへの物件情報のご掲載、その他不動産業務ソリューション等についての不動産会社様のお問合せはこちらからお願いいたします。

    物件画像: