不動産 賃貸 マンション等の住宅情報:埼玉住まい情報


長崎県長崎市江里町の一戸建て:物件詳細

  • 物件詳細
  • 情報の見方
  • 印刷用画面
交通
所在地
駅徒歩 価格 間取り
建物面積
土地面積
私道負担面積
物件種目
築年月

【バス】下大橋 停歩3分

長崎県長崎市江里町


3,990万円

3LDK

91.50m²

129.44m²

なし

新築一戸建て

2026年5月
新築 

おすすめPOINTオール電化

おすすめコメント

手つかずの新築、更にIHクッキングヒーター付です。また手早く洗髪できるシャンプードレッサー付で、その上食器洗いによる手荒れに悩まされなくなる食器洗浄乾燥機付だから、疲れた日の後片付けも大助かりです。

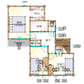
間取図

間取図

  • とりあえず保存
  • お問い合わせ
交通

【バス】 下大橋 停歩3分

所在地 長崎県長崎市江里町
物件種目 新築一戸建て
価格 3,990万円 借地期間・地代(月額)
権利金 敷金または保証金 - / -
維持費等 その他一時金
間取り 3LDK(洋 6.8・5.3・5) 建物面積 91.50m²
土地権利 所有権 建物構造 木造
土地面積 129.44m²(公簿) 私道負担面積 なし
築年月 2026年5月 新築  都市計画 市街化区域
建物名 ビバネスト江里町2号地 建築確認番号 R07長住セ第0285号
用途地域 1種住居 駐車場 有 無料
建ぺい率 60% 容積率 200%
階建 2階建 接道状況 南東 6.0m 公道 接面14.0m
地目 宅地 地勢
国土法届出 セットバック
アピールポイント 手つかずの新築、更に進化を続けるIHクッキングヒーター付なので、スマートなキッチンの印象を作っています。また洗髪とメイクをまとめてできるシャンプードレッサー付で、その上高温のお湯で油汚れまでスッキリ落とす食器洗浄乾燥機付だから、疲れた日の後片付けも大助かりです。ちなみにマイカー感覚でバスが使えるバス停徒歩3分以内立地の物件です。家族が帰宅を焦がれる3LDK。ご案内いたしますのでお気軽にご連絡ください。
リフォーム履歴
リノベーション履歴
瑕疵保証
瑕疵保険
評価・証明書
備考
バルコニー:2.4m²
工事完了予定日:2026年4月
長期優良住宅
オール電化
2階約1坪分の収納あり
省令準耐火
エネルギー消費性能
断熱性能
目安光熱費
バス・トイレ 追焚機能、シャワー付洗面化粧台、温水洗浄便座、トイレ2ヶ所、浴室に窓あり
キッチン 食器洗浄乾燥機、IHクッキングヒーター
設備・サービス 全居室収納、上水道、下水道、照明器具、複層ガラス
その他
現況 建築中 引渡可能時期 相談
物件番号 6988802723    
情報公開日 2026年2月24日 次回更新予定日 2026年5月22日
ケータイ用バーコード

QRコード

スマートフォンでこの物件を見る
スマートフォンからもこの物件をご覧になれます。
※「-」と表示されている項目については、情報提供会社にご確認ください。

クイックお問い合わせ

ここから簡単にお問い合わせをすることができます。
(SSLでの暗号化での送信を希望されるお客さまは こちら よりお問い合わせください)

お問い合わせ内容(必須)
お名前(必須) 姓  名 
メールアドレス(必須)
※携帯電話のメールアドレスをご入力される方はこちらをご確認ください
電話番号(必須)
- -

※入力いただいた電話番号へSMSまたは音声でパスワードをご連絡します。

携帯電話の番号をご入力の方へ

携帯電話の番号をご入力の方へ
確認画面にて送信ボタンをクリックするとSMSが携帯電話に届きます。
そのSMSに記載のパスワード(認証番号)を入力し、お問い合わせを完了してください。
尚、SMSの送信者番号は 0005 202 760 となります。
これはアットホームの固定番号です。

備考欄 希望条件、物件案内希望日、質問などがございましたらご記入ください。
お問い合わせを行う前に「個人情報の取り扱いについて」を必ずお読みください。
「個人情報の取り扱いについて」に同意いただいた場合は「上記にご同意の上 確認画面へ進む」のボタンをクリックしてください。

個人情報の取り扱いについて

皆さまが送付された個人情報はアットホーム(株)のサーバを経由し、お問い合わせ先の不動産会社にメールまたはFAXにて転送されるためアットホーム(株)にも保管されます。アットホーム(株)で保管された個人情報の取り扱いについては、【こちら】をご覧ください。
また、本画面でご記入いただいた個人情報は、お問い合わせ先の不動産会社でも保管します。 お問い合わせ先の不動産会社が保管する個人情報の取り扱いについては、不動産会社に直接お問い合わせください。

情報提供会社

情報提供会社

東栄不動産(株)

長崎県知事免許(6)第3170号

交通:
長崎電軌蛍茶屋支線/めがね橋駅 徒歩1分
長崎県長崎市栄町4-17 
TEL:
095-824-2417
FAX:
095-822-2734
所属団体:
(公社)長崎県宅地建物取引業協会会員
(一社)九州不動産公正取引協議会加盟

取引態様:売主

  • 会社情報
  • 80507259
スマートフォンで
この不動産会社を見る
QRコード
  • とりあえず保存
  • お問い合わせ
  • 提携サイト等より掲載されている物件情報につきましては、不動産会社詳細情報にリンクされていないものがあります。
  • 物件に関するお問合せは、物件詳細ページの「情報提供会社」に表示されている不動産会社へ直接お願いいたします。
  • 間取図は、現況を優先させていただきます。
  • 映像は物件の一部を撮影したものです。物件の契約にあたっての最終判断はご自身の判断に基づいて行ってください。
  • 仲介手数料について仲介手数料

アットホームは物件情報の適正化に努めております。 内容に誤りがある場合にはこちらへご連絡ください。

【埼玉住まい情報】では、日本全国の物件から賃貸マンションや賃貸アパート・賃貸一戸建て等の賃貸住宅情報、新築マンション・分譲マンションや中古マンション等の売買マンション情報、新築一戸建てや中古一戸建てなどの戸建住宅、 土地など、総合的な不動産住宅情報検索サービスを提供致します。
【埼玉住まい情報】から、選りすぐりの不動産物件を探してみましょう。

【免責事項】
このコーナーの運営はアットホーム株式会社(https://www.athome.co.jp/)が行っています。
このコーナーに掲載している物件情報は、「アットホーム不動産情報ネットワーク」に加盟する不動産会社等(情報提供元)から提供されています。信頼性の高い情報提供が行えるよう、最大限の努力をしておりますが、その内容を保証するものではありません。 利用者のみなさまと各情報提供元との取引に起因する損害および情報が掲載されたことに起因する損害等については、株式会社イーシティ埼玉、およびアットホームは一切責任を負いません。
各物件情報の内容や画像等はすべて現況を優先させていただきます。
お取引等(お取引の準備、資金調達等を含みます)の際には、内容や契約条件等について、各情報提供元より十分な説明を受け、ご自身でご確認の上、判断してください。
このコーナーへの物件情報のご掲載、その他不動産業務ソリューション等についての不動産会社様のお問合せはこちらからお願いいたします。

物件画像: