不動産 賃貸 マンション等の住宅情報:埼玉住まい情報


静岡県藤枝市堀之内の一戸建て:物件詳細

  • 物件詳細
  • 情報の見方
  • 印刷用画面
交通
所在地
駅徒歩 価格 間取り
建物面積
土地面積
私道負担面積
物件種目
築年月

藤枝バイパス谷稲葉IC

静岡県藤枝市堀之内


4,590万円

4LDK

110.75m²

363.30m²

なし

新築一戸建て

2026年8月
新築 

おすすめPOINTデザイナーズ、スマートハウス、駐車場2台分、制震構造、高気密高断熱住宅、外壁サイディング、天井高2.5M以上、バス1坪以上、24時間換気システム、整形地、庭10坪以上、長期優良住宅(耐震、省エネ性等高い)

おすすめコメント

【ご返済例・地方銀行の場合】借入金額:4,590万円期間50年頭金0円月々返済84,183円・ボーナス98,827円年2回◆ご返済例金利1.15%変動金利型

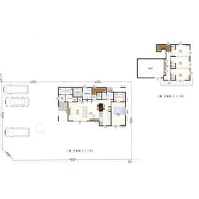
間取図

間取図

平面図

外観

外観

外観イメージパース

<
その他の画像
  • 案内図
  • その他
  • その他
  • その他
  • その他
  • その他
  • その他
  • その他
  • その他
  • その他
  • 設備
  • 設備
  • 設備
  • 設備
  • 設備
  • その他
  • その他
  • 設備
  • その他
  • 小学校
  • 中学校
  • コンビニ
  • ショッピング施設
  • ショッピング施設
  • ショッピング施設
  • 郵便局
  • 銀行
>
    • とりあえず保存
    • お問い合わせ
    交通

    藤枝バイパス谷稲葉IC

    その他の交通

    東海道本線 藤枝駅 徒歩4400m

    所在地 静岡県藤枝市堀之内
    物件種目 新築一戸建て
    価格 4,590万円 借地期間・地代(月額)
    権利金 敷金または保証金 - / -
    維持費等 その他一時金
    間取り 4LDK(洋 7.5・4.5・4.5・4.5 LDK 20.1) 建物面積 110.75m²
    土地権利 所有権 建物構造 木造
    土地面積 363.30m²(実測) 私道負担面積 なし
    築年月 2026年8月 新築  都市計画 市街化区域
    建物名 藤枝市堀之内期1号地 デザイナーズハウス 長期優良住宅・GX志向型住宅 建築確認番号 第2025確認建築静建住ま09732号
    用途地域 無指定 駐車場
    建ぺい率 30% 容積率 50%
    階建 2階建 接道状況 南 6.0m 公道 ・ 西 5.8m 公道
    地目 宅地 地勢 平坦
    国土法届出 セットバック
    アピールポイント 静岡市 AVANTIA静岡支社(五朋建設) 新築住宅


    ◆大きな土地で、ひろびろとした生活を!◆

    ★平日案内も可能です★
    お気軽にお問合せください


    耐震等級     最高等級3
    断熱等性能等級  最高等級7の内 等級6
    一エネ消費量等級 最高等級6
    維持管理対策等級 最高等級3
    劣化対策等級   最高等級3

    ・認定長期優良住宅
    ・GX志向型住宅
    ・スマートハウス
    ・太陽光発電システム搭載
    ・家庭用燃料電池エネファーム搭載
    ・制震ダンパー搭載
    ・40年建物長期保証付
    ・10年住宅設備保証付
    ・住宅瑕疵担保責任保険10年
    ・瑕疵保証 構造体10年、その他2年

    ●物件金額4,590万円購入する場合、35歳未満で世帯年収が444万円以上の方、40歳未満で世帯年収466万円以上の方、45歳未満で世帯年収493万円以上の方可能。
    ※50年返済・審査金利3.0%で計算した場合。建物はコミコミ価格になりますので別途諸経費(金融諸経費・火災保険・登記)が約200万円程で収まります。
    (返済例:2026円4月10日)
    リフォーム履歴
    リノベーション履歴
    瑕疵保証
    瑕疵保険
    評価・証明書 ■長期優良住宅認定通知書
     長期優良住宅認定通知書あり
    備考
    工事完了予定日:2026年2月
    施工会社:五朋建設株式会社
    設備保証付
    BELS/省エネ基準適合認定
    【ご家族構成:4名、太陽光発電XSOL:6.83KW、太陽光発電量:8,638Kwh/年】SHIZGASでんき(おうちプラン2)60A/セットでずーっと割・創エネ割の場合(比較はエネファーム+太陽光対と給湯器エコジョーズ)1年目~20年間のランニングコストでは約2,770,000円の節約になり、エネファーム+太陽光設置による月平均貢献金額約11,500円が節約になります。※1年~10年間の太陽光販売料金は静岡ガスへ譲渡になり、11年目からの太陽光販売料金はお施主様の収入になります。売電単価:8.7円/Kwhで計算した場合。

    ■建物おすすめPOINT■
    ○木造軸組壁工法・制震装置付2階建○4LDK+SCL+WIC○駐車10台以上可
    ○建物価格には消費税・全室LED照明・カーテン・Low-eガラス・LDK、洋室用エアコン1台・外構工事・食洗機・浴室乾燥暖房機・TVドアホン・宅配BOX・制震装置を含みます。
    ○長期優良住宅
    ○GX志向型住宅
    〇スマートハウス
    〇高気密住宅
    〇太陽光発電システム&エネファーム搭載
    エネルギー消費性能 ★★★★★★(削減率50%達成)
    断熱性能 6段階/7段階中
    目安光熱費
    バス・トイレ 浴室暖房、浴室乾燥機、追焚機能、シャワー付洗面化粧台、温水洗浄便座
    キッチン カウンターキッチン、システムキッチン、食器洗浄乾燥機、浄水器、3口以上コンロ
    設備・サービス 全居室収納、ウォークインクローゼット、太陽光発電システム、シューズインクローゼット、クローゼット、床下収納、モニター付インターホン、ディンプルキー、ダブルロックドア、防犯カメラ、シャッター雨戸、浄化槽、省エネ給湯器、全居室フローリング、クッションフロア、上水道、プロパンガス、電気、側溝、エアコン、庭、人感センサー付照明、ダウンライト、照明器具、火災警報器(報知機)、複層ガラス、Low-E ガラス
    その他
    現況 未着工 引渡可能時期 相談
    物件番号 6988831501    
    情報公開日 2025年12月19日 次回更新予定日 2026年5月15日
    ケータイ用バーコード

    QRコード

    スマートフォンでこの物件を見る
    スマートフォンからもこの物件をご覧になれます。
    ※「-」と表示されている項目については、情報提供会社にご確認ください。

    この物件の周辺情報

    周辺施設 藤枝市立稲葉小学校
    距離 1100m
    周辺施設 藤枝市立藤枝中学校
    距離 1700m
    周辺施設 セブンイレブン藤枝堀之内店
    距離 450m
    周辺施設 ウエルシア藤枝茶町店
    距離 1800m
    周辺施設 しずてつストア駿河台店
    距離 2300m
    周辺施設 KOマート藤枝志太店
    距離 2600m
    周辺施設 藤枝茶町郵便局
    距離 1700m
    周辺施設 JA大井川稲葉支店
    距離 280m

    クイックお問い合わせ

    ここから簡単にお問い合わせをすることができます。
    (SSLでの暗号化での送信を希望されるお客さまは こちら よりお問い合わせください)

    お問い合わせ内容(必須)
    お名前(必須) 姓  名 
    メールアドレス(必須)
    ※携帯電話のメールアドレスをご入力される方はこちらをご確認ください
    電話番号(必須)
    - -

    ※入力いただいた電話番号へSMSまたは音声でパスワードをご連絡します。

    携帯電話の番号をご入力の方へ

    携帯電話の番号をご入力の方へ
    確認画面にて送信ボタンをクリックするとSMSが携帯電話に届きます。
    そのSMSに記載のパスワード(認証番号)を入力し、お問い合わせを完了してください。
    尚、SMSの送信者番号は 0005 202 760 となります。
    これはアットホームの固定番号です。

    備考欄 希望条件、物件案内希望日、質問などがございましたらご記入ください。
    お問い合わせを行う前に「個人情報の取り扱いについて」を必ずお読みください。
    「個人情報の取り扱いについて」に同意いただいた場合は「上記にご同意の上 確認画面へ進む」のボタンをクリックしてください。

    個人情報の取り扱いについて

    皆さまが送付された個人情報はアットホーム(株)のサーバを経由し、お問い合わせ先の不動産会社にメールまたはFAXにて転送されるためアットホーム(株)にも保管されます。アットホーム(株)で保管された個人情報の取り扱いについては、【こちら】をご覧ください。
    また、本画面でご記入いただいた個人情報は、お問い合わせ先の不動産会社でも保管します。 お問い合わせ先の不動産会社が保管する個人情報の取り扱いについては、不動産会社に直接お問い合わせください。

    情報提供会社

    情報提供会社

    五朋建設(株)

    静岡県知事免許(14)第3417号

    交通:
    東海道本線/東静岡駅 徒歩10分
    静岡県静岡市駿河区曲金2丁目8-39 
    TEL:
    054-283-0777
    FAX:
    054-283-0971
    所属団体:
    (公社)静岡県宅地建物取引業協会会員
    東海不動産公正取引協議会加盟

    取引態様:売主

    • 会社情報
    • 40201186
    スマートフォンで
    この不動産会社を見る
    QRコード
    • とりあえず保存
    • お問い合わせ
    • 提携サイト等より掲載されている物件情報につきましては、不動産会社詳細情報にリンクされていないものがあります。
    • 物件に関するお問合せは、物件詳細ページの「情報提供会社」に表示されている不動産会社へ直接お願いいたします。
    • 間取図は、現況を優先させていただきます。
    • 映像は物件の一部を撮影したものです。物件の契約にあたっての最終判断はご自身の判断に基づいて行ってください。
    • 仲介手数料について仲介手数料

    アットホームは物件情報の適正化に努めております。 内容に誤りがある場合にはこちらへご連絡ください。

    【埼玉住まい情報】では、日本全国の物件から賃貸マンションや賃貸アパート・賃貸一戸建て等の賃貸住宅情報、新築マンション・分譲マンションや中古マンション等の売買マンション情報、新築一戸建てや中古一戸建てなどの戸建住宅、 土地など、総合的な不動産住宅情報検索サービスを提供致します。
    【埼玉住まい情報】から、選りすぐりの不動産物件を探してみましょう。

    【免責事項】
    このコーナーの運営はアットホーム株式会社(https://www.athome.co.jp/)が行っています。
    このコーナーに掲載している物件情報は、「アットホーム不動産情報ネットワーク」に加盟する不動産会社等(情報提供元)から提供されています。信頼性の高い情報提供が行えるよう、最大限の努力をしておりますが、その内容を保証するものではありません。 利用者のみなさまと各情報提供元との取引に起因する損害および情報が掲載されたことに起因する損害等については、株式会社イーシティ埼玉、およびアットホームは一切責任を負いません。
    各物件情報の内容や画像等はすべて現況を優先させていただきます。
    お取引等(お取引の準備、資金調達等を含みます)の際には、内容や契約条件等について、各情報提供元より十分な説明を受け、ご自身でご確認の上、判断してください。
    このコーナーへの物件情報のご掲載、その他不動産業務ソリューション等についての不動産会社様のお問合せはこちらからお願いいたします。

    物件画像: