富山県富山市中冨居新町(新富山口駅)の一戸建て:物件詳細
交通 所在地 |
駅徒歩 |
価格 |
間取り 建物面積 |
土地面積 私道負担面積 |
物件種目 築年月 |
|
あいの風とやま鉄道/新富山口 [バス利用可] バス 富山地鉄バス 飯野新屋 停歩8分
富山県富山市中冨居新町
|
5分
|
3,780万円
|
3SLDK
114.25m²
|
203.13m²
-
|
新築一戸建て
2026年7月
|
|
デザイナーズ、駐車場2台分、駐車場3台分以上、制震構造、高気密高断熱住宅、外壁サイディング、バス1坪以上、24時間換気システム、閑静な住宅街、オール電化、整形地、分譲地内
|
|
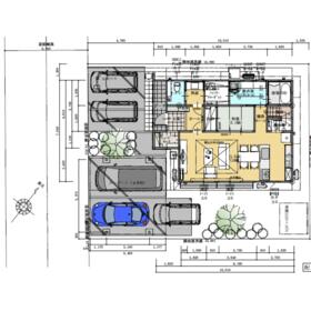
間取図
1F 平面図
|
外観
※パースはイメージです
|
その他の画像
|
| 交通 | あいの風とやま鉄道 新富山口駅 徒歩5分 [バス利用可] バス 富山地鉄バス 飯野新屋 停歩8分 |
|---|
| その他の交通 | 富山地鉄富山港線 下奥井駅 徒歩28分 [バス利用可] バス 富山地鉄バス 上飯野北口停 停歩12分 |
| 所在地 |
富山県富山市中冨居新町
|
| 物件種目 |
新築一戸建て |
| 価格 |
3,780万円 |
借地期間・地代(月額) |
- |
| 権利金 |
- |
敷金または保証金 |
- / - |
| 維持費等 |
- |
その他一時金 |
- |
| 間取り |
3SLDK(洋 6・5.2・5.2 LDK 18 S 3.1) |
建物面積 |
114.25m² |
| 土地権利 |
所有権 |
建物構造 |
木造 |
| 土地面積 |
203.13m²(公簿) |
私道負担面積 |
- |
| 築年月 |
2026年7月
|
都市計画 |
市街化区域 |
| 建物名 |
富山市 中冨居新町7号地 |
建築確認番号 |
R07確認建築富建セ1933号 |
| 用途地域 |
準工業 |
駐車場 |
- |
| 建ぺい率 |
60% |
容積率 |
200% |
| 階建 |
2階建 |
接道状況 |
西 6.0m 公道 接面10.9m
|
| 地目 |
宅地 |
地勢 |
平坦 |
| 国土法届出 |
- |
セットバック |
- |
| アピールポイント |
◆断熱等級6・ZEH対応
◆耐震パネル「プレウォール」工法の家
◆2026年7月完成予定
◆広田小校下
◆スーパーやドラッグストラ等
買い物施設の充実した立地
◆あいの風とやま鉄道「新富山口」駅までよ◆断熱等級6・ZEH対応
◆耐震パネル「プレウォール」工法の家
◆2026年7月完成予定
◆広田小校下
◆スーパーやドラッグストラ等
買い物施設の充実した立地
◆あいの風とやま鉄道
「新富山口」駅まで徒歩約5分!!
◆冬場でも安心!
アルミカーポート車2台用付き
◆LDkエアコン23帖用付き
◆駐車スペース4台確保
◆開放感のある、対面式キッチン
洗面化粧台は幅1,200のワイドタイプ
※仲介…㈱安心住宅 |
| リフォーム履歴 |
- |
| リノベーション履歴 |
- |
| 瑕疵保証 |
- |
| 瑕疵保険 |
- |
| 評価・証明書 |
- |
| 備考 |
工事完了予定日:2026年7月
施工会社:株式会社 とやまアイホーム
建築確認完了検査済証あり、新築時・増改築時の設計図書あり、BELS/省エネ基準適合認定
◆断熱等級6・ZEH対応
◆耐震パネル「プレウォール」工法の家
◆2026年7月完成予定
◆広田小校下
◆スーパーやドラッグストラ等
買い物施設の充実した立地
◆あいの風とやま鉄道「新富山口」駅までよ◆断熱等級6・ZEH対応
◆耐震パネル「プレウォール」工法の家
◆2026年7月完成予定
◆広田小校下
◆スーパーやドラッグストラ等
買い物施設の充実した立地
◆あいの風とやま鉄道
「新富山口」駅まで徒歩約5分!!
◆冬場でも安心!
アルミカーポート車2台用付き
◆LDkエアコン23帖用付き
◆駐車スペース4台確保
◆開放感のある、対面式キッチン
洗面化粧台は幅1,200のワイドタイプ
※仲介…㈱安心住宅
|
| エネルギー消費性能 |
- |
| 断熱性能 |
- |
| 目安光熱費 |
- |
| バス・トイレ |
浴室暖房、浴室乾燥機、オートバス、追焚機能、温水洗浄便座、タンクレストイレ、トイレ2ヶ所 |
| キッチン |
オープンキッチン、システムキッチン、食器洗浄乾燥機、食器乾燥機、IHクッキングヒーター、2口コンロ |
| 設備・サービス |
ウォークインクローゼット、EV車充電設備、シューズインクローゼット、クローゼット、モニター付インターホン、ディンプルキー、ダブルロックドア、省エネ給湯器、室内物干し、上水道、下水道、電気、側溝、エアコン、人感センサー付照明、フットライト、ダウンライト、照明器具、火災警報器(報知機)、三層複層ガラス |
| その他 |
- |
| 現況 |
未着工 |
引渡可能時期 |
相談 |
| 物件番号 |
6988907380 |
|
|
| 情報公開日 |
2025年12月26日 |
次回更新予定日 |
2026年1月9日 |
| ケータイ用バーコード |
- スマートフォンでこの物件を見る
- スマートフォンからもこの物件をご覧になれます。
|
※「-」と表示されている項目については、情報提供会社にご確認ください。
| 周辺施設 |
富山市立広田小学校 |
| 距離 |
625m |
写真を見る |
| 周辺施設 |
認定こども園ひろたこども園 |
| 距離 |
265m |
写真を見る |
| 周辺施設 |
クスリのアオキ鍋田店 |
| 距離 |
206m |
写真を見る |
| 周辺施設 |
ファッションセンターしまむら鍋田店 |
| 距離 |
221m |
写真を見る |
| 周辺施設 |
ファミリーマート富山鍋田店 |
| 距離 |
463m |
写真を見る |
| 周辺施設 |
イオンタウン上飯野 |
| 距離 |
766m |
写真を見る |
| 周辺施設 |
アピタ富山東店 |
| 距離 |
1056m |
写真を見る |
ここから簡単にお問い合わせをすることができます。
(SSLでの暗号化での送信を希望されるお客さまは
こちら
よりお問い合わせください)
お問い合わせを行う前に
「個人情報の取り扱いについて」を必ずお読みください。
「個人情報の取り扱いについて」に同意いただいた場合は「上記にご同意の上 確認画面へ進む」のボタンをクリックしてください。
個人情報の取り扱いについて
皆さまが送付された個人情報はアットホーム(株)のサーバを経由し、お問い合わせ先の不動産会社にメールまたはFAXにて転送されるためアットホーム(株)にも保管されます。アットホーム(株)で保管された個人情報の取り扱いについては、【こちら】をご覧ください。
また、本画面でご記入いただいた個人情報は、お問い合わせ先の不動産会社でも保管します。 お問い合わせ先の不動産会社が保管する個人情報の取り扱いについては、不動産会社に直接お問い合わせください。
富山県知事免許(6)第2342号 |
|---|
- 交通:
- あいの風とやま鉄道/新富山口駅 徒歩3分 【バス】 富山地鉄バス 下冨居口 停歩8分
- 富山県富山市下冨居2丁目5-6
- TEL:
- 076-433-6377
- FAX:
- 076-433-6380
- 所属団体:
- (公社)全日本不動産協会会員
取引態様:売主  - 40406051
|
- スマートフォンで
この不動産会社を見る

|
- 提携サイト等より掲載されている物件情報につきましては、不動産会社詳細情報にリンクされていないものがあります。
- 物件に関するお問合せは、物件詳細ページの「情報提供会社」に表示されている不動産会社へ直接お願いいたします。
- 間取図は、現況を優先させていただきます。
- 映像は物件の一部を撮影したものです。物件の契約にあたっての最終判断はご自身の判断に基づいて行ってください。
- 仲介手数料について

アットホームは物件情報の適正化に努めております。
内容に誤りがある場合にはこちらへご連絡ください。