福岡県久留米市国分町(久留米高校前駅)の一戸建て:物件詳細
交通 所在地 |
駅徒歩 |
価格 |
間取り 建物面積 |
土地面積 私道負担面積 |
物件種目 築年月 |
|
JR久大本線/久留米高校前
福岡県久留米市国分町
|
20分
|
3,690万円
|
3SLDK
127.52m²
|
176.20m²
-
|
中古一戸建て
2018年7月(築7年11ヶ月)
|
|
デザイナーズ、駐車場2台分、南向き、バス1坪以上、24時間換気システム、閑静な住宅街、オール電化、整形地
|
|
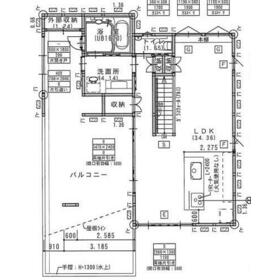
間取図
1階平面。インナーガレージと個室が1階。
|
間取図
2階平面。リビング⇔キッチン⇔バルコニーで印象的な空間に。
|
<
その他の画像
>
|
| 交通 | JR久大本線 久留米高校前駅 徒歩20分 |
|---|
| その他の交通 | JR久大本線 南久留米駅 徒歩23分 【バス】 八軒屋 停歩5分 |
| 所在地 |
福岡県久留米市国分町
|
| 物件種目 |
中古一戸建て |
| 価格 |
3,690万円 |
借地期間・地代(月額) |
- |
| 権利金 |
- |
敷金または保証金 |
- / - |
| 維持費等 |
- |
その他一時金 |
- |
| 間取り |
3SLDK(和 4.5 洋 7.5・5.2 LDK 20.7 S 15.3) |
建物面積 |
127.52m² |
| 土地権利 |
所有権 |
建物構造 |
木造 |
| 土地面積 |
176.20m²(公簿) |
私道負担面積 |
- |
| 築年月 |
2018年7月(築7年11ヶ月)
|
都市計画 |
市街化区域 |
| 建物名 |
|
建築確認番号 |
- |
| 用途地域 |
1種中高 |
駐車場 |
- |
| 建ぺい率 |
60% |
容積率 |
200% |
| 階建 |
2階建 |
接道状況 |
南 6.0m 公道 接面10.7m
|
| 地目 |
宅地 |
地勢 |
平坦 |
| 国土法届出 |
- |
セットバック |
- |
| アピールポイント |
インナーガレージと大型バルコニーのあるデザイン住宅。ガレージの電動シャッター、浴室の酸素美泡湯などの機能から、欲しい所に使い勝手の良い収納はとても考えられた間取りとなっています。モデルハウスとして使用した後、若干年賃貸後売却です。築7年の築浅で、照明、カーテン、エアコン等付き。是非一度ご覧ください。 |
| リフォーム履歴 |
- |
| リノベーション履歴 |
- |
| 瑕疵保証 |
- |
| 瑕疵保険 |
- |
| 評価・証明書 |
- |
| 備考 |
バルコニー:37.67m²
主要採光面:南向き
|
| エネルギー消費性能 |
- |
| 断熱性能 |
- |
| 目安光熱費 |
- |
| バス・トイレ |
浴室暖房、浴室乾燥機、高温差湯式、温水洗浄便座、タンクレストイレ、トイレ2ヶ所、浴室に窓あり |
| キッチン |
アイランドキッチン、食器洗浄乾燥機、3口以上コンロ |
| 設備・サービス |
全居室収納、エアコン2台以上、シューズインクローゼット、クローゼット、ディンプルキー、ダブルロックドア、電動シャッター、省エネ給湯器、上水道、下水道、電気、側溝、エアコン、ワイドバルコニー、ダウンライト、間接照明、照明器具、火災警報器(報知機)、複層ガラス |
| その他 |
- |
| 現況 |
空家 |
引渡可能時期 |
即時 |
| 物件番号 |
6988913105 |
仲介手数料 |
不要 |
| 情報公開日 |
2025年12月26日 |
次回更新予定日 |
2026年5月12日 |
| ケータイ用バーコード |
- スマートフォンでこの物件を見る
- スマートフォンからもこの物件をご覧になれます。
|
※「-」と表示されている項目については、情報提供会社にご確認ください。
| 周辺施設 |
ファミリーマート久留米国分町店 |
| 距離 |
299m |
| 周辺施設 |
認定こども園久留米育英保育園 |
| 距離 |
503m |
ここから簡単にお問い合わせをすることができます。
(SSLでの暗号化での送信を希望されるお客さまは
こちら
よりお問い合わせください)
お問い合わせを行う前に
「個人情報の取り扱いについて」を必ずお読みください。
「個人情報の取り扱いについて」に同意いただいた場合は「上記にご同意の上 確認画面へ進む」のボタンをクリックしてください。
個人情報の取り扱いについて
皆さまが送付された個人情報はアットホーム(株)のサーバを経由し、お問い合わせ先の不動産会社にメールまたはFAXにて転送されるためアットホーム(株)にも保管されます。アットホーム(株)で保管された個人情報の取り扱いについては、【こちら】をご覧ください。
また、本画面でご記入いただいた個人情報は、お問い合わせ先の不動産会社でも保管します。 お問い合わせ先の不動産会社が保管する個人情報の取り扱いについては、不動産会社に直接お問い合わせください。
国土交通大臣免許(3)第8577号 |
|---|
- 交通:
- JR鹿児島本線/荒木駅 徒歩6分
- 福岡県久留米市荒木町荒木789-2
- TEL:
- 0942-27-0352
- 所属団体:
- (公社)福岡県宅地建物取引業協会会員(一社)九州不動産公正取引協議会加盟
取引態様:売主  - 80502470
|
- スマートフォンで
この不動産会社を見る

|
- 提携サイト等より掲載されている物件情報につきましては、不動産会社詳細情報にリンクされていないものがあります。
- 物件に関するお問合せは、物件詳細ページの「情報提供会社」に表示されている不動産会社へ直接お願いいたします。
- 間取図は、現況を優先させていただきます。
- 映像は物件の一部を撮影したものです。物件の契約にあたっての最終判断はご自身の判断に基づいて行ってください。
- 仲介手数料について

アットホームは物件情報の適正化に努めております。
内容に誤りがある場合にはこちらへご連絡ください。