千葉県市原市ちはら台東3丁目(ちはら台駅)の一戸建て:物件詳細
交通 所在地 |
駅徒歩 |
価格 |
間取り 建物面積 |
土地面積 私道負担面積 |
物件種目 築年月 |
|
京成千原線/ちはら台
千葉県市原市ちはら台東3丁目
|
28分
|
2,980万円
|
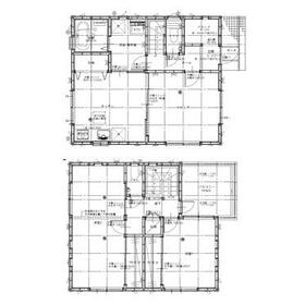
3LDK
87.77m²
|
176.39m²
-
|
中古一戸建て
2017年8月(築8年10ヶ月)
|
|
駐車場3台分以上、南向き、バス1坪以上、全室2面採光、2面採光、24時間換気システム、閑静な住宅街、区画整理地内、隣接建物距離2m以上
|
|
間取図
ルームクリーニング済み♪南向きで陽当たり良好♪お気軽にお問い合わせください♪
|
外観
水の江小学校まで530m♪人気のちはら台エリア♪南向きで陽当り良好♪現地ご案内します♪
|
<
その他の画像
>
|
| 交通 | 京成千原線 ちはら台駅 徒歩28分 |
|---|
| その他の交通 | 京成千原線 おゆみ野駅 徒歩4000m JR外房線 誉田駅 徒歩3500m |
| 所在地 |
千葉県市原市ちはら台東3丁目
|
| 物件種目 |
中古一戸建て |
| 価格 |
2,980万円 |
借地期間・地代(月額) |
- |
| 権利金 |
- |
敷金または保証金 |
- / - |
| 維持費等 |
- |
その他一時金 |
- |
| 間取り |
3LDK |
建物面積 |
87.77m² |
| 土地権利 |
所有権 |
建物構造 |
木造 |
| 土地面積 |
176.39m²(公簿) |
私道負担面積 |
- |
| 築年月 |
2017年8月(築8年10ヶ月)
|
都市計画 |
市街化区域 |
| 建物名 |
|
建築確認番号 |
- |
| 用途地域 |
1種低層 |
駐車場 |
有 無料 |
| 建ぺい率 |
50% |
容積率 |
100% |
| 階建 |
2階建 |
接道状況 |
南東 6.0m
|
| 地目 |
宅地 |
地勢 |
- |
| 国土法届出 |
- |
セットバック |
- |
| アピールポイント |
■京成千原線「ちはら台」駅より徒歩約28分♪
■クロス張替(一部)、クッションフロア張替、
ルームクリーニング済み♪
■南向き♪全室2面採光で陽当たり通風良好♪
■小学校まで徒歩約7分♪
■コンビニ近く生活便利♪
■公営水道・本下水・都市ガス
---周辺環境---
■市原市立水の江小学校まで約530m
■市原市立ちはら台南中学校まで約1200m
市原エリアに強いのはオリジナルメーカー
地域密着だからこその知識と情報量で
お客様にぴったりの物件をご紹介致します♪ |
| リフォーム履歴 |
- |
| リノベーション履歴 |
- |
| 瑕疵保証 |
- |
| 瑕疵保険 |
- |
| 評価・証明書 |
- |
| 備考 |
主要採光面:南向き
景観法、ちはら台東地区地区計画、司法書士指定あり、現況有姿
|
| エネルギー消費性能 |
- |
| 断熱性能 |
- |
| 目安光熱費 |
- |
| バス・トイレ |
浴室暖房、浴室乾燥機、オートバス、追焚機能、シャワー付洗面化粧台、温水洗浄便座、トイレ2ヶ所、浴室に窓あり |
| キッチン |
システムキッチン、食器洗浄乾燥機、3口以上コンロ、グリル |
| 設備・サービス |
エアコン2台以上、クローゼット、床下収納、モニター付インターホン、ディンプルキー、ダブルロックドア、シャッター雨戸、全居室フローリング、上水道、下水道、都市ガス、電気、ダウンライト、火災警報器(報知機)、複層ガラス |
| その他 |
- |
| 現況 |
空家 |
引渡可能時期 |
即時 |
| 物件番号 |
6988996850 |
仲介手数料 |
売買代金の3%+6万円 |
| 情報公開日 |
2026年1月8日 |
次回更新予定日 |
2026年5月12日 |
| ケータイ用バーコード |
- スマートフォンでこの物件を見る
- スマートフォンからもこの物件をご覧になれます。
|
※「-」と表示されている項目については、情報提供会社にご確認ください。
| 周辺施設 |
せんどうちはら台店 |
| 距離 |
1158m |
写真を見る |
| 周辺施設 |
ファミリーマート市原ちはら台東三丁目店 |
| 距離 |
283m |
写真を見る |
| 周辺施設 |
ウエルシア市原ちはら台店 |
| 距離 |
1118m |
写真を見る |
| 周辺施設 |
市原市立ちはら台南中学校 |
| 距離 |
1206m |
写真を見る |
| 周辺施設 |
市原市立水の江小学校 |
| 距離 |
528m |
写真を見る |
| 周辺施設 |
認定こども園おゆみ野南幼稚園幼児棟 |
| 距離 |
1029m |
写真を見る |
| 周辺施設 |
医療法人社団淳英会おゆみの中央病院 |
| 距離 |
1964m |
写真を見る |
| 周辺施設 |
市原ちはら台郵便局 |
| 距離 |
1060m |
写真を見る |
ここから簡単にお問い合わせをすることができます。
(SSLでの暗号化での送信を希望されるお客さまは
こちら
よりお問い合わせください)
お問い合わせを行う前に
「個人情報の取り扱いについて」を必ずお読みください。
「個人情報の取り扱いについて」に同意いただいた場合は「上記にご同意の上 確認画面へ進む」のボタンをクリックしてください。
個人情報の取り扱いについて
皆さまが送付された個人情報はアットホーム(株)のサーバを経由し、お問い合わせ先の不動産会社にメールまたはFAXにて転送されるためアットホーム(株)にも保管されます。アットホーム(株)で保管された個人情報の取り扱いについては、【こちら】をご覧ください。
また、本画面でご記入いただいた個人情報は、お問い合わせ先の不動産会社でも保管します。 お問い合わせ先の不動産会社が保管する個人情報の取り扱いについては、不動産会社に直接お問い合わせください。
千葉県知事免許(4)第15907号 |
|---|
- 交通:
- JR内房線/五井駅 【バス】20分 千種通り角 停歩8分
- 千葉県市原市青柳1878-3
- TEL:
- 0436-20-7800
- FAX:
- 0436-20-7801
- 所属団体:
- (一社)千葉県宅地建物取引業協会会員(公社)首都圏不動産公正取引協議会加盟
取引態様:媒介  - 00264131
|
- スマートフォンで
この不動産会社を見る

|
- 提携サイト等より掲載されている物件情報につきましては、不動産会社詳細情報にリンクされていないものがあります。
- 物件に関するお問合せは、物件詳細ページの「情報提供会社」に表示されている不動産会社へ直接お願いいたします。
- 間取図は、現況を優先させていただきます。
- 映像は物件の一部を撮影したものです。物件の契約にあたっての最終判断はご自身の判断に基づいて行ってください。
- 仲介手数料について

アットホームは物件情報の適正化に努めております。
内容に誤りがある場合にはこちらへご連絡ください。