不動産 賃貸 マンション等の住宅情報:埼玉住まい情報


愛知県豊橋市旭町(東八町駅)の一戸建て:物件詳細

  • 物件詳細
  • 情報の見方
  • 印刷用画面
交通
所在地
駅徒歩 価格 間取り
建物面積
土地面積
私道負担面積
物件種目
築年月

豊橋鉄道東田本線/東八町

愛知県豊橋市旭町

6分

2,900万円

4LDK

137.32m²

99.92m²

中古一戸建て

2017年10月(築8年6ヶ月)

おすすめPOINTデザイナーズ、駐車場3台分以上、2面採光

おすすめコメント

広々とした延床面積137.32㎡の居室空間、更に大きな荷物も収納できるウォークインクロゼット有なので、畳まずにハンガーのままで収納可能です♪駐車場も広く、最大3台駐車可能です!

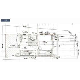
間取図

間取図

<
その他の画像
>
    • とりあえず保存
    • お問い合わせ
    交通

    豊橋鉄道東田本線 東八町駅 徒歩6分

    その他の交通

    豊橋鉄道東田本線 前畑駅 徒歩9分

    豊橋鉄道東田本線 豊橋公園前駅 徒歩11分

    所在地 愛知県豊橋市旭町
    物件種目 中古一戸建て
    価格 2,900万円 借地期間・地代(月額)
    権利金 敷金または保証金 - / -
    維持費等 その他一時金
    間取り 4LDK(洋 6.9・5.7・6.4・6.3 LDK 19.2) 建物面積 137.32m²
    土地権利 所有権 建物構造 RC
    土地面積 99.92m²(公簿) 私道負担面積
    築年月 2017年10月(築8年6ヶ月) 都市計画 市街化区域
    建物名   建築確認番号
    用途地域 近隣商業 駐車場
    建ぺい率 90% 容積率 200%
    階建 3階建 接道状況 東 6.0m 公道 接面3.6m ・ 北 15.0m 公道 接面13.9m ・ 二方道路
    地目 宅地 地勢
    国土法届出 セットバック
    アピールポイント 住居の全体像やリフォーム履歴が把握できる新築時・増改築時の設計図書有、更に適度な柔らかさで素足にも優しいクッションフロア仕様だから、小さなお子様の食卓の下のおこぼし対応も楽チンです♪また広々とした延床面積137.32㎡の居室空間で、その上クリエイターのデザインが光るデザイナーズ住居だから、こだわりのテイストとシンクロする方にはぴったり!配膳がラクなカウンターキッチン付!家族みんなのワガママにも応える4LDKです!少しでもご興味ある方はぜひお気軽にご連絡ください♪
    リフォーム履歴
    リノベーション履歴
    瑕疵保証
    瑕疵保険
    評価・証明書
    備考
    他所在地:愛知県豊橋市旭町47番7
    建築確認完了検査済証あり、新築時・増改築時の設計図書あり
    エネルギー消費性能
    断熱性能
    目安光熱費
    バス・トイレ 追焚機能、シャワー付洗面化粧台、温水洗浄便座、トイレ2ヶ所、浴室に窓あり
    キッチン カウンターキッチン、システムキッチン、食器洗浄乾燥機、3口以上コンロ、グリル
    設備・サービス ウォークインクローゼット、エアコン2台以上、シューズインクローゼット、クローゼット、モニター付インターホン、ディンプルキー、全居室フローリング、クッションフロア、都市ガス、エアコン、ルーフバルコニー、照明器具、Low-E ガラス
    その他
    現況 空家 引渡可能時期 即時
    物件番号 6989103725 仲介手数料 売買代金の3%+6万円
    情報公開日 2026年1月21日 次回更新予定日 2026年4月7日
    ケータイ用バーコード

    QRコード

    スマートフォンでこの物件を見る
    スマートフォンからもこの物件をご覧になれます。
    ※「-」と表示されている項目については、情報提供会社にご確認ください。

    この物件の周辺情報

    周辺施設 サンヨネ魚町本店
    距離 1562m
    周辺施設 向山フォレスタウノ
    距離 1666m
    周辺施設 ユニクロ豊橋前田南店
    距離 1670m
    周辺施設 サンヨネ東店
    距離 1873m
    周辺施設 アピタ向山店
    距離 1884m
    周辺施設 ファミリーマート豊橋旭店
    距離 240m
    周辺施設 ローソン豊橋旭本町店
    距離 441m
    周辺施設 ファミリーマート豊橋市役所/S店
    距離 1091m

    クイックお問い合わせ

    ここから簡単にお問い合わせをすることができます。
    (SSLでの暗号化での送信を希望されるお客さまは こちら よりお問い合わせください)

    お問い合わせ内容(必須)
    お名前(必須) 姓  名 
    メールアドレス(必須)
    ※携帯電話のメールアドレスをご入力される方はこちらをご確認ください
    電話番号(必須)
    - -

    ※入力いただいた電話番号へSMSまたは音声でパスワードをご連絡します。

    携帯電話の番号をご入力の方へ

    携帯電話の番号をご入力の方へ
    確認画面にて送信ボタンをクリックするとSMSが携帯電話に届きます。
    そのSMSに記載のパスワード(認証番号)を入力し、お問い合わせを完了してください。
    尚、SMSの送信者番号は 0005 202 760 となります。
    これはアットホームの固定番号です。

    備考欄 希望条件、物件案内希望日、質問などがございましたらご記入ください。
    お問い合わせを行う前に「個人情報の取り扱いについて」を必ずお読みください。
    「個人情報の取り扱いについて」に同意いただいた場合は「上記にご同意の上 確認画面へ進む」のボタンをクリックしてください。

    個人情報の取り扱いについて

    皆さまが送付された個人情報はアットホーム(株)のサーバを経由し、お問い合わせ先の不動産会社にメールまたはFAXにて転送されるためアットホーム(株)にも保管されます。アットホーム(株)で保管された個人情報の取り扱いについては、【こちら】をご覧ください。
    また、本画面でご記入いただいた個人情報は、お問い合わせ先の不動産会社でも保管します。 お問い合わせ先の不動産会社が保管する個人情報の取り扱いについては、不動産会社に直接お問い合わせください。

    情報提供会社

    情報提供会社

    (株)Tcell

    愛知県知事免許(1)第26087号

    交通:
    名古屋市桜通線/桜本町駅 徒歩10分
    愛知県名古屋市南区呼続3丁目3-5 201号 
    TEL:
    052-618-5580
    所属団体:
    (公社)愛知県宅地建物取引業協会会員
    東海不動産公正取引協議会加盟

    取引態様:専任媒介

    • 会社情報
    • 40412563
    スマートフォンで
    この不動産会社を見る
    QRコード
    • とりあえず保存
    • お問い合わせ
    • 提携サイト等より掲載されている物件情報につきましては、不動産会社詳細情報にリンクされていないものがあります。
    • 物件に関するお問合せは、物件詳細ページの「情報提供会社」に表示されている不動産会社へ直接お願いいたします。
    • 間取図は、現況を優先させていただきます。
    • 映像は物件の一部を撮影したものです。物件の契約にあたっての最終判断はご自身の判断に基づいて行ってください。
    • 仲介手数料について仲介手数料

    アットホームは物件情報の適正化に努めております。 内容に誤りがある場合にはこちらへご連絡ください。

    【埼玉住まい情報】では、日本全国の物件から賃貸マンションや賃貸アパート・賃貸一戸建て等の賃貸住宅情報、新築マンション・分譲マンションや中古マンション等の売買マンション情報、新築一戸建てや中古一戸建てなどの戸建住宅、 土地など、総合的な不動産住宅情報検索サービスを提供致します。
    【埼玉住まい情報】から、選りすぐりの不動産物件を探してみましょう。

    【免責事項】
    このコーナーの運営はアットホーム株式会社(https://www.athome.co.jp/)が行っています。
    このコーナーに掲載している物件情報は、「アットホーム不動産情報ネットワーク」に加盟する不動産会社等(情報提供元)から提供されています。信頼性の高い情報提供が行えるよう、最大限の努力をしておりますが、その内容を保証するものではありません。 利用者のみなさまと各情報提供元との取引に起因する損害および情報が掲載されたことに起因する損害等については、株式会社イーシティ埼玉、およびアットホームは一切責任を負いません。
    各物件情報の内容や画像等はすべて現況を優先させていただきます。
    お取引等(お取引の準備、資金調達等を含みます)の際には、内容や契約条件等について、各情報提供元より十分な説明を受け、ご自身でご確認の上、判断してください。
    このコーナーへの物件情報のご掲載、その他不動産業務ソリューション等についての不動産会社様のお問合せはこちらからお願いいたします。

    物件画像: