長野県長野市吉田2丁目(桐原駅)の一戸建て:物件詳細
交通 所在地 |
駅徒歩 |
価格 |
間取り 建物面積 |
土地面積 私道負担面積 |
物件種目 築年月 |
|
長野電鉄長野線/桐原
長野県長野市吉田2丁目
|
12分
|
2,880万円
|
3LDK
84.73m²
|
105.28m²
-
|
未入居一戸建て
2024年11月(築1年5ヶ月)
|
|
駐車場2台分、南向き、高気密高断熱住宅、バス1坪以上、全室2面採光、3面採光、2面採光、閑静な住宅街、オール電化、区画整理地内、整形地、分譲地内
|
|
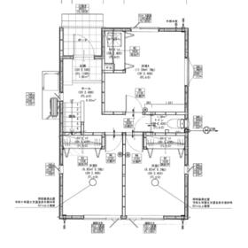
間取図
1階3部屋仕事部屋としても使えます
|
間取図
2階は明るく開放感があり外からの視線も気になりにくい設計です
|
<
その他の画像
>
|
| 交通 | 長野電鉄長野線 桐原駅 徒歩12分 |
|---|
| その他の交通 | 長野電鉄長野線 本郷駅 徒歩18分 北陸新幹線 長野駅 徒歩3900m |
| 所在地 |
長野県長野市吉田2丁目
|
| 物件種目 |
未入居一戸建て |
| 価格 |
2,880万円 |
借地期間・地代(月額) |
- |
| 権利金 |
- |
敷金または保証金 |
- / - |
| 維持費等 |
- |
その他一時金 |
- |
| 間取り |
3LDK(洋 7・5.3・5.3 LDK 15.7) |
建物面積 |
84.73m² |
| 土地権利 |
所有権 |
建物構造 |
木造 |
| 土地面積 |
105.28m²(公簿) |
私道負担面積 |
- |
| 築年月 |
2024年11月(築1年5ヶ月)
|
都市計画 |
市街化区域 |
| 建物名 |
長野市吉田2丁目 |
建築確認番号 |
- |
| 用途地域 |
1種中高 |
駐車場 |
有 無料 |
| 建ぺい率 |
60% |
容積率 |
160% |
| 階建 |
2階建 |
接道状況 |
北 4.4m 公道 接面7.3m
|
| 地目 |
宅地 |
地勢 |
平坦 |
| 国土法届出 |
- |
セットバック |
- |
| アピールポイント |
◆毎日の暮らしをスマートに光熱費を抑えつつ、快適な住空間を実現した3LDK住宅です◆2階リビングは外からの視線を気にせず寛げる設計です。1階には3部屋を備え、寝室+仕事部屋+収納など多用途に対応します◆室内物干し完備で雨の日や花粉の季節も安心してお洗濯ができます◆駐車場2台可能です◆ヤマダデンキ長野SBC通り店まで徒歩4分と日常のお買い物にも便利な立地です◆無理なく、気持ちよく、長く住み続けられるお家です |
| リフォーム履歴 |
- |
| リノベーション履歴 |
- |
| 瑕疵保証 |
- |
| 瑕疵保険 |
- |
| 評価・証明書 |
- |
| 備考 |
主要採光面:南向き
建築確認完了検査済証あり、新築時・増改築時の設計図書あり
|
| エネルギー消費性能 |
- |
| 断熱性能 |
- |
| 目安光熱費 |
- |
| バス・トイレ |
オートバス、追焚機能、シャワー付洗面化粧台、温水洗浄便座、トイレ2ヶ所、浴室に窓あり |
| キッチン |
カウンターキッチン、システムキッチン、食器洗浄乾燥機、浄水器、IHクッキングヒーター、3口以上コンロ、グリル |
| 設備・サービス |
全居室収納、クローゼット、モニター付インターホン、ディンプルキー、ダブルロックドア、全居室フローリング、室内物干し、上水道、下水道、電気、ダウンライト、照明器具、複層ガラス |
| その他 |
- |
| 現況 |
空家 |
引渡可能時期 |
即時 |
| 物件番号 |
6989139078 |
仲介手数料 |
売買代金の3.3%+6.6万円 |
| 情報公開日 |
2026年1月26日 |
次回更新予定日 |
2026年4月3日 |
| ケータイ用バーコード |
- スマートフォンでこの物件を見る
- スマートフォンからもこの物件をご覧になれます。
|
※「-」と表示されている項目については、情報提供会社にご確認ください。
| 周辺施設 |
セブンイレブン長野吉田2丁目店 |
| 距離 |
621m |
ここから簡単にお問い合わせをすることができます。
(SSLでの暗号化での送信を希望されるお客さまは
こちら
よりお問い合わせください)
お問い合わせを行う前に
「個人情報の取り扱いについて」を必ずお読みください。
「個人情報の取り扱いについて」に同意いただいた場合は「上記にご同意の上 確認画面へ進む」のボタンをクリックしてください。
個人情報の取り扱いについて
皆さまが送付された個人情報はアットホーム(株)のサーバを経由し、お問い合わせ先の不動産会社にメールまたはFAXにて転送されるためアットホーム(株)にも保管されます。アットホーム(株)で保管された個人情報の取り扱いについては、【こちら】をご覧ください。
また、本画面でご記入いただいた個人情報は、お問い合わせ先の不動産会社でも保管します。 お問い合わせ先の不動産会社が保管する個人情報の取り扱いについては、不動産会社に直接お問い合わせください。
長野県知事免許(1)第5780号 |
|---|
- 交通:
- 長野電鉄長野線/権堂駅 徒歩11分 【バス】4分 長電バス 柳町団地 停歩4分
- 長野県長野市東鶴賀町32-2
- TEL:
- 026-405-4010
- FAX:
- 026-405-2131
- 所属団体:
- (公社)長野県宅地建物取引業協会会員(公社)首都圏不動産公正取引協議会加盟
取引態様:一般媒介  - 00272161
|
- スマートフォンで
この不動産会社を見る

|
- 提携サイト等より掲載されている物件情報につきましては、不動産会社詳細情報にリンクされていないものがあります。
- 物件に関するお問合せは、物件詳細ページの「情報提供会社」に表示されている不動産会社へ直接お願いいたします。
- 間取図は、現況を優先させていただきます。
- 映像は物件の一部を撮影したものです。物件の契約にあたっての最終判断はご自身の判断に基づいて行ってください。
- 仲介手数料について

アットホームは物件情報の適正化に努めております。
内容に誤りがある場合にはこちらへご連絡ください。