山梨県南都留郡富士河口湖町河口(河口湖駅)の一戸建て:物件詳細
交通 所在地 |
駅徒歩 |
価格 |
間取り 建物面積 |
土地面積 私道負担面積 |
物件種目 築年月 |
|
富士急行/河口湖 【バス】9分 渡船場 停歩7分
山梨県南都留郡富士河口湖町河口
|
-
|
3,980万円
|
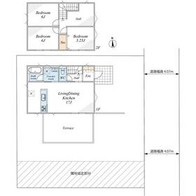
3LDK
84.26m²
|
223.81m²
なし
|
中古一戸建て
2025年1月(築1年3ヶ月)
|
|
デザイナーズ、駐車場3台分以上、南向き、外壁サイディング、バス1坪以上、2面採光、閑静な住宅街、整形地、庭10坪以上、前面棟無、隣接建物距離2m以上、IT重説対応物件
|
|
間取図
|
外観
正面から撮影
|
<
その他の画像
>
|
| 交通 | 富士急行 河口湖駅 【バス】 9分 渡船場 停歩7分 |
| 所在地 |
山梨県南都留郡富士河口湖町河口
|
| 物件種目 |
中古一戸建て |
| 価格 |
3,980万円 |
借地期間・地代(月額) |
- |
| 権利金 |
- |
敷金または保証金 |
- / - |
| 維持費等 |
- |
その他一時金 |
- |
| 間取り |
3LDK(洋 6・6・5.2 LDK 17) |
建物面積 |
84.26m² |
| 土地権利 |
所有権 |
建物構造 |
木造 |
| 土地面積 |
223.81m²(公簿) |
私道負担面積 |
なし |
| 築年月 |
2025年1月(築1年3ヶ月)
|
都市計画 |
非線引区域 |
| 建物名 |
|
建築確認番号 |
- |
| 用途地域 |
無指定 |
駐車場 |
有 無料 |
| 建ぺい率 |
70% |
容積率 |
200% |
| 階建 |
2階建 |
接道状況 |
東 4.0m 公道
|
| 地目 |
宅地 |
地勢 |
平坦 |
| 国土法届出 |
- |
セットバック |
- |
| アピールポイント |
ゆったりめの延床面積84.26㎡の居室空間、更に庭付なので、四季折々の変化を肌で感じられます。また落ち着いた暮らしが始められる閑静な住宅街立地の物件で、その上暮らしながら建築家のこだわりや工夫を感じていただけるデザイナーズの物件だから、センスやこだわりを重視する方にはおすすめです。ちなみに配膳も片付けもスムーズなカウンターキッチン仕様です。家族の安心拠点になる3LDK。ご案内いたしますのでお気軽にご連絡ください。 |
| リフォーム履歴 |
- |
| リノベーション履歴 |
- |
| 瑕疵保証 |
- |
| 瑕疵保険 |
- |
| 評価・証明書 |
- |
| 備考 |
主要採光面:南向き
IT重説対応物件
南側隣地協定あり
|
| エネルギー消費性能 |
- |
| 断熱性能 |
- |
| 目安光熱費 |
- |
| バス・トイレ |
浴室暖房、浴室乾燥機、オートバス、追焚機能、シャワー付洗面化粧台、温水洗浄便座、浴室に窓あり |
| キッチン |
カウンターキッチン、システムキッチン、浄水器、3口以上コンロ、グリル |
| 設備・サービス |
全居室エアコン、クローゼット、モニター付インターホン、シャッター雨戸、全居室フローリング、室内物干し、上水道、下水道、プロパンガス、電気、庭、ウッドデッキ、ダウンライト、照明器具、複層ガラス |
| その他 |
- |
| 現況 |
空家 |
引渡可能時期 |
即時 |
| 物件番号 |
6989158833 |
|
|
| 情報公開日 |
2026年2月5日 |
次回更新予定日 |
2026年3月19日 |
| ケータイ用バーコード |
- スマートフォンでこの物件を見る
- スマートフォンからもこの物件をご覧になれます。
|
※「-」と表示されている項目については、情報提供会社にご確認ください。
| 周辺施設 |
旅の駅kawaguchiko base |
| 距離 |
1138m |
| 周辺施設 |
ファミリーマート北河口湖店 |
| 距離 |
661m |
| 周辺施設 |
セブンイレブン河口湖美術館通り店 |
| 距離 |
691m |
| 周辺施設 |
富士河口湖町立河口湖北中学校 |
| 距離 |
788m |
| 周辺施設 |
富士河口湖町立河口小学校 |
| 距離 |
599m |
| 周辺施設 |
富士河口湖町立図書館河口分館 |
| 距離 |
671m |
ここから簡単にお問い合わせをすることができます。
(SSLでの暗号化での送信を希望されるお客さまは
こちら
よりお問い合わせください)
お問い合わせを行う前に
「個人情報の取り扱いについて」を必ずお読みください。
「個人情報の取り扱いについて」に同意いただいた場合は「上記にご同意の上 確認画面へ進む」のボタンをクリックしてください。
個人情報の取り扱いについて
皆さまが送付された個人情報はアットホーム(株)のサーバを経由し、お問い合わせ先の不動産会社にメールまたはFAXにて転送されるためアットホーム(株)にも保管されます。アットホーム(株)で保管された個人情報の取り扱いについては、【こちら】をご覧ください。
また、本画面でご記入いただいた個人情報は、お問い合わせ先の不動産会社でも保管します。 お問い合わせ先の不動産会社が保管する個人情報の取り扱いについては、不動産会社に直接お問い合わせください。
東京都知事免許(3)第92827号 |
|---|
- 交通:
- 東京メトロ南北線/白金高輪駅 徒歩5分
- 東京都港区南麻布2丁目7-25 日高ビル
- TEL:
- 03-6722-0576
- FAX:
- 03-6722-0588
- 所属団体:
- (公社)東京都宅地建物取引業協会会員(公社)首都圏不動産公正取引協議会加盟
取引態様:売主  - 00021748
|
- スマートフォンで
この不動産会社を見る

|
- 提携サイト等より掲載されている物件情報につきましては、不動産会社詳細情報にリンクされていないものがあります。
- 物件に関するお問合せは、物件詳細ページの「情報提供会社」に表示されている不動産会社へ直接お願いいたします。
- 間取図は、現況を優先させていただきます。
- 映像は物件の一部を撮影したものです。物件の契約にあたっての最終判断はご自身の判断に基づいて行ってください。
- 仲介手数料について

アットホームは物件情報の適正化に努めております。
内容に誤りがある場合にはこちらへご連絡ください。