秋田県秋田市四ツ小屋末戸松本字地蔵田(四ツ小屋駅)の一戸建て:物件詳細
交通 所在地 |
駅徒歩 |
価格 |
間取り 建物面積 |
土地面積 私道負担面積 |
物件種目 築年月 |
|
JR奥羽本線/四ツ小屋
秋田県秋田市四ツ小屋末戸松本字地蔵田
|
34分
|
3,290万円
|
3LDK
102.68m²
|
243.31m²
有 127.51m²(共有持分1/8)
|
中古一戸建て
2019年9月(築6年7ヶ月)
|
|
駐車場3台分以上、南向き、高気密高断熱住宅、外壁サイディング、バス1坪以上、24時間換気システム、バリアフリー、吹抜、閑静な住宅街、オール電化、整形地、庭10坪以上、前面棟無、隣接建物距離2m以上
|
|
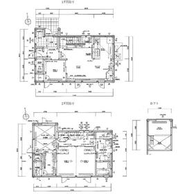
間取図
1F,2F,ロフト
|
外観
正面左
|
その他の画像
|
| 交通 | JR奥羽本線 四ツ小屋駅 徒歩34分 |
| 所在地 |
秋田県秋田市四ツ小屋末戸松本字地蔵田
|
| 物件種目 |
中古一戸建て |
| 価格 |
3,290万円 |
借地期間・地代(月額) |
- |
| 権利金 |
- |
敷金または保証金 |
- / - |
| 維持費等 |
- |
その他一時金 |
- |
| 間取り |
3LDK(洋 8・10・4.5 LDK 16) |
建物面積 |
102.68m² |
| 土地権利 |
所有権 |
建物構造 |
木造 |
| 土地面積 |
243.31m²(公簿) |
私道負担面積 |
有 127.51m²(共有持分1/8) |
| 築年月 |
2019年9月(築6年7ヶ月)
|
都市計画 |
市街化区域 |
| 建物名 |
|
建築確認番号 |
- |
| 用途地域 |
準工業 |
駐車場 |
- |
| 建ぺい率 |
60% |
容積率 |
200% |
| 階建 |
2階建 |
接道状況 |
北 6.0m 公道 接面12.2m
・ 南 2.5m 私道 接面12.1m
・ 西 2.0m 私道 接面19.2m
|
| 地目 |
宅地 |
地勢 |
平坦 |
| 国土法届出 |
- |
セットバック |
- |
| アピールポイント |
閑静な住宅街に立地。南側には約20の坪庭があり日当たり良好。近隣にイオン等の商業施設や公園もあり、利便性の高い地域。学区:御所野小、御所野学院中に指定変更可。内装はとても綺麗でそのままお住み頂ける状態です。寝室上部の空間にロフト(3畳)を設置。収納スペース、寝室、書斎、趣味部屋など多様な用途で活用できる便利な空間です。2階10畳洋室は間仕切りでで2つの部屋に分けることができます。建物前面に4台用のカーポート付。太陽光発電システムを利用したオール電化住宅であり、年間光熱費ゼロを実現できる「ZEH」住宅です。 |
| リフォーム履歴 |
- |
| リノベーション履歴 |
- |
| 瑕疵保証 |
- |
| 瑕疵保険 |
- |
| 評価・証明書 |
- |
| 備考 |
主要採光面:南向き
建築確認完了検査済証あり、修繕・点検の記録あり、新築時・増改築時の設計図書あり、BELS/省エネ基準適合認定
|
| エネルギー消費性能 |
- |
| 断熱性能 |
- |
| 目安光熱費 |
- |
| バス・トイレ |
浴室暖房、オートバス、追焚機能、シャワー付洗面化粧台、温水洗浄便座、タンクレストイレ、トイレ2ヶ所、浴室に窓あり |
| キッチン |
システムキッチン、食器洗浄乾燥機、IHクッキングヒーター、3口以上コンロ、グリル |
| 設備・サービス |
ウォークインクローゼット、太陽光発電システム、シューズインクローゼット、モニター付インターホン、カードキー、ディンプルキー、ダブルロックドア、省エネ給湯器、全居室フローリング、室内物干し、上水道、下水道、電気、側溝、エアコン、人感センサー付照明、ダウンライト、間接照明、照明器具、火災警報器(報知機)、BS端子、マルチメディアコンセント、三層複層ガラス |
| その他 |
- |
| 現況 |
所有者居住中 |
引渡可能時期 |
相談 |
| 物件番号 |
6989209587 |
|
|
| 情報公開日 |
2026年2月5日 |
次回更新予定日 |
2026年3月28日 |
| ケータイ用バーコード |
- スマートフォンでこの物件を見る
- スマートフォンからもこの物件をご覧になれます。
|
※「-」と表示されている項目については、情報提供会社にご確認ください。
ここから簡単にお問い合わせをすることができます。
(SSLでの暗号化での送信を希望されるお客さまは
こちら
よりお問い合わせください)
お問い合わせを行う前に
「個人情報の取り扱いについて」を必ずお読みください。
「個人情報の取り扱いについて」に同意いただいた場合は「上記にご同意の上 確認画面へ進む」のボタンをクリックしてください。
個人情報の取り扱いについて
皆さまが送付された個人情報はアットホーム(株)のサーバを経由し、お問い合わせ先の不動産会社にメールまたはFAXにて転送されるためアットホーム(株)にも保管されます。アットホーム(株)で保管された個人情報の取り扱いについては、【こちら】をご覧ください。
また、本画面でご記入いただいた個人情報は、お問い合わせ先の不動産会社でも保管します。 お問い合わせ先の不動産会社が保管する個人情報の取り扱いについては、不動産会社に直接お問い合わせください。
秋田県知事免許(10)第1270号 |
|---|
- 交通:
- JR奥羽本線/四ツ小屋駅 徒歩15分
- 秋田県秋田市御所野地蔵田2丁目2-1
- TEL:
- 018-839-8600
- FAX:
- 018-839-8787
- 所属団体:
- (公社)全日本不動産協会会員東北地区不動産公正取引協議会加盟
取引態様:専任媒介  - 20004734
|
- スマートフォンで
この不動産会社を見る

|
- 提携サイト等より掲載されている物件情報につきましては、不動産会社詳細情報にリンクされていないものがあります。
- 物件に関するお問合せは、物件詳細ページの「情報提供会社」に表示されている不動産会社へ直接お願いいたします。
- 間取図は、現況を優先させていただきます。
- 映像は物件の一部を撮影したものです。物件の契約にあたっての最終判断はご自身の判断に基づいて行ってください。
- 仲介手数料について

アットホームは物件情報の適正化に努めております。
内容に誤りがある場合にはこちらへご連絡ください。