大分県豊後大野市三重町玉田(三重町駅)の一戸建て:物件詳細
交通 所在地 |
駅徒歩 |
価格 |
間取り 建物面積 |
土地面積 私道負担面積 |
物件種目 築年月 |
|
JR豊肥本線/三重町
大分県豊後大野市三重町玉田
|
25分
|
1,850万円
|
4LDK
150.26m²
|
840.48m²
-
|
中古一戸建て
2010年11月(築15年7ヶ月)
|
|
駐車場3台分以上、南向き、バス1坪以上、庭10坪以上、前面棟無、隣接建物距離2m以上
|
|
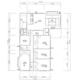
間取図
|
|
その他の画像
|
| 交通 | JR豊肥本線 三重町駅 徒歩25分 |
| 所在地 |
大分県豊後大野市三重町玉田
|
| 物件種目 |
中古一戸建て |
| 価格 |
1,850万円 |
借地期間・地代(月額) |
- |
| 権利金 |
- |
敷金または保証金 |
- / - |
| 維持費等 |
- |
その他一時金 |
- |
| 間取り |
4LDK(洋 9.5・8.5・8.5・7 LDK 28) |
建物面積 |
150.26m² |
| 土地権利 |
所有権 |
建物構造 |
木造 |
| 土地面積 |
840.48m²(公簿) |
私道負担面積 |
- |
| 築年月 |
2010年11月(築15年7ヶ月)
|
都市計画 |
非線引区域 |
| 建物名 |
三重町中古住宅 |
建築確認番号 |
- |
| 用途地域 |
無指定 |
駐車場 |
- |
| 建ぺい率 |
70% |
容積率 |
200% |
| 階建 |
平屋建 |
接道状況 |
-
|
| 地目 |
宅地 |
地勢 |
- |
| 国土法届出 |
- |
セットバック |
- |
| リフォーム履歴 |
- |
| リノベーション履歴 |
- |
| 瑕疵保証 |
- |
| 瑕疵保険 |
- |
| 評価・証明書 |
- |
| 備考 |
主要採光面:南向き
建築確認完了検査済証あり、新築時・増改築時の設計図書あり
|
| エネルギー消費性能 |
- |
| 断熱性能 |
- |
| 目安光熱費 |
- |
| バス・トイレ |
追焚機能、シャワー付洗面化粧台、温水洗浄便座、浴室に窓あり |
| キッチン |
カウンターキッチン、食器洗浄乾燥機、3口以上コンロ、ガスオーブン |
| 設備・サービス |
全居室収納、太陽光発電システム、クローゼット、ダブルロックドア、シャッター雨戸、浄化槽、出窓、全居室フローリング、プロパンガス、庭、間接照明、照明器具、火災警報器(報知機)、掘ごたつ |
| その他 |
- |
| 現況 |
所有者居住中 |
引渡可能時期 |
2026年6月中旬予定 |
| 物件番号 |
6989345776 |
|
|
| 情報公開日 |
2026年2月9日 |
次回更新予定日 |
2026年5月12日 |
| ケータイ用バーコード |
- スマートフォンでこの物件を見る
- スマートフォンからもこの物件をご覧になれます。
|
※「-」と表示されている項目については、情報提供会社にご確認ください。
| 周辺施設 |
豊後大野市小中一貫教育校三重学園新田小学校 |
| 距離 |
2074m |
| 周辺施設 |
豊後大野市小中一貫教育校三重学園三重中学校 |
| 距離 |
2232m |
| 周辺施設 |
医療法人医心会みえ記念病院 |
| 距離 |
1859m |
ここから簡単にお問い合わせをすることができます。
(SSLでの暗号化での送信を希望されるお客さまは
こちら
よりお問い合わせください)
お問い合わせを行う前に
「個人情報の取り扱いについて」を必ずお読みください。
「個人情報の取り扱いについて」に同意いただいた場合は「上記にご同意の上 確認画面へ進む」のボタンをクリックしてください。
個人情報の取り扱いについて
皆さまが送付された個人情報はアットホーム(株)のサーバを経由し、お問い合わせ先の不動産会社にメールまたはFAXにて転送されるためアットホーム(株)にも保管されます。アットホーム(株)で保管された個人情報の取り扱いについては、【こちら】をご覧ください。
また、本画面でご記入いただいた個人情報は、お問い合わせ先の不動産会社でも保管します。 お問い合わせ先の不動産会社が保管する個人情報の取り扱いについては、不動産会社に直接お問い合わせください。
大分県知事免許(6)第2523号 |
|---|
- 交通:
- JR久大本線/向之原駅
- 大分県由布市挾間町北方536-6
- TEL:
- 097-583-3739
- FAX:
- 097-583-3525
- 所属団体:
- (公社)大分県宅地建物取引業協会会員(一社)九州不動産公正取引協議会加盟
取引態様:専任媒介  - 80400864
|
- スマートフォンで
この不動産会社を見る

|
- 提携サイト等より掲載されている物件情報につきましては、不動産会社詳細情報にリンクされていないものがあります。
- 物件に関するお問合せは、物件詳細ページの「情報提供会社」に表示されている不動産会社へ直接お願いいたします。
- 間取図は、現況を優先させていただきます。
- 映像は物件の一部を撮影したものです。物件の契約にあたっての最終判断はご自身の判断に基づいて行ってください。
- 仲介手数料について

アットホームは物件情報の適正化に努めております。
内容に誤りがある場合にはこちらへご連絡ください。