大分県大分市大字中戸次(中判田駅)の一戸建て:物件詳細
交通 所在地 |
駅徒歩 |
価格 |
間取り 建物面積 |
土地面積 私道負担面積 |
物件種目 築年月 |
|
JR豊肥本線/中判田
大分県大分市大字中戸次
|
37分
|
2,380万円
|
4SLDK
99.36m²
|
184.00m²
-
|
中古一戸建て
2019年6月(築7年)
|
|
駐車場3台分以上、バス1坪以上、2面採光、前面棟無、分譲地内
|
|
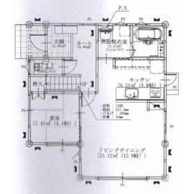
間取図
|
リビング
|
その他の画像
|
| 交通 | JR豊肥本線 中判田駅 徒歩37分 |
| 所在地 |
大分県大分市大字中戸次
|
| 物件種目 |
中古一戸建て |
| 価格 |
2,380万円 |
借地期間・地代(月額) |
- |
| 権利金 |
- |
敷金または保証金 |
- / - |
| 維持費等 |
- |
その他一時金 |
なし |
| 間取り |
4SLDK(和 4.5 洋 5.3・7.5・5.3 LDK 12.8 S 3) |
建物面積 |
99.36m² |
| 土地権利 |
所有権 |
建物構造 |
木造 |
| 土地面積 |
184.00m²(公簿) |
私道負担面積 |
- |
| 築年月 |
2019年6月(築7年)
|
都市計画 |
市街化区域 |
| 建物名 |
|
建築確認番号 |
- |
| 用途地域 |
1種住居 |
駐車場 |
有 無料 |
| 建ぺい率 |
60% |
容積率 |
200% |
| 階建 |
2階建 |
接道状況 |
西 4.0m 私道 接面12.0m
|
| 地目 |
宅地 |
地勢 |
平坦 |
| 国土法届出 |
- |
セットバック |
- |
| アピールポイント |
広々とした延床面積99.36㎡の居室空間、更に頭上を遮るものがなく開放感が魅力のルーフバルコニー付なので、絵心のある夕暮れの大きな空模様が楽しめます。また心にゆとりを与える庭付で、その上食後お皿を下げるのもスムーズなカウンターキッチン仕様なので、食後の片付けも楽ちんです。ちなみにお鍋とフライパンを使いながらヤカンもおけるコンロ3口以上付です。家族みんなのワガママにも応える4SLDK。実際の空間をご自身で体感ください。 |
| リフォーム履歴 |
- |
| リノベーション履歴 |
- |
| 瑕疵保証 |
- |
| 瑕疵保険 |
- |
| 評価・証明書 |
- |
| 備考 |
バルコニー:8.28m²
主要採光面:西向き
施工会社:三越商事大分株式会社
|
| エネルギー消費性能 |
- |
| 断熱性能 |
- |
| 目安光熱費 |
- |
| バス・トイレ |
浴室暖房、浴室乾燥機、オートバス、追焚機能、シャワー付洗面化粧台、温水洗浄便座、トイレ2ヶ所、浴室に窓あり |
| キッチン |
カウンターキッチン、3口以上コンロ |
| 設備・サービス |
全居室収納、ウォークインクローゼット、エアコン2台以上、モニター付インターホン、浄化槽、室内物干し、上水道、プロパンガス、エアコン、庭、ルーフバルコニー、人感センサー付照明、照明器具、火災警報器(報知機)、インターネット対応、複層ガラス |
| その他 |
- |
| 現況 |
空家 |
引渡可能時期 |
相談 |
| 物件番号 |
6989355171 |
|
|
| 情報公開日 |
2026年5月11日 |
次回更新予定日 |
2026年5月25日 |
| ケータイ用バーコード |
- スマートフォンでこの物件を見る
- スマートフォンからもこの物件をご覧になれます。
|
※「-」と表示されている項目については、情報提供会社にご確認ください。
ここから簡単にお問い合わせをすることができます。
(SSLでの暗号化での送信を希望されるお客さまは
こちら
よりお問い合わせください)
お問い合わせを行う前に
「個人情報の取り扱いについて」を必ずお読みください。
「個人情報の取り扱いについて」に同意いただいた場合は「上記にご同意の上 確認画面へ進む」のボタンをクリックしてください。
個人情報の取り扱いについて
皆さまが送付された個人情報はアットホーム(株)のサーバを経由し、お問い合わせ先の不動産会社にメールまたはFAXにて転送されるためアットホーム(株)にも保管されます。アットホーム(株)で保管された個人情報の取り扱いについては、【こちら】をご覧ください。
また、本画面でご記入いただいた個人情報は、お問い合わせ先の不動産会社でも保管します。 お問い合わせ先の不動産会社が保管する個人情報の取り扱いについては、不動産会社に直接お問い合わせください。
大分県知事免許(1)第3475号 |
|---|
- 交通:
- JR豊肥本線/大分駅 徒歩19分
- 大分県大分市賀来北2丁目5-19 パストラルプラザ賀来107
- TEL:
- 097-500-9260
- 所属団体:
- (公社)大分県宅地建物取引業協会会員(一社)九州不動産公正取引協議会加盟
取引態様:一般媒介  - 80506284
|
- スマートフォンで
この不動産会社を見る

|
- 提携サイト等より掲載されている物件情報につきましては、不動産会社詳細情報にリンクされていないものがあります。
- 物件に関するお問合せは、物件詳細ページの「情報提供会社」に表示されている不動産会社へ直接お願いいたします。
- 間取図は、現況を優先させていただきます。
- 映像は物件の一部を撮影したものです。物件の契約にあたっての最終判断はご自身の判断に基づいて行ってください。
- 仲介手数料について

アットホームは物件情報の適正化に努めております。
内容に誤りがある場合にはこちらへご連絡ください。