広島県広島市安佐北区亀崎1丁目(下深川駅)の一戸建て:物件詳細
交通 所在地 |
駅徒歩 |
価格 |
間取り 建物面積 |
土地面積 私道負担面積 |
物件種目 築年月 |
|
芸備線/下深川
広島県広島市安佐北区亀崎1丁目
|
17分
|
2,280万円
|
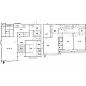
5SLDK
148.75m²
|
215.99m²
なし
|
中古一戸建て
1988年3月(築38年3ヶ月)
|
|
閑静な住宅街、整形地、庭10坪以上
|
| 交通 | 芸備線 下深川駅 徒歩17分 |
| 所在地 |
広島県広島市安佐北区亀崎1丁目
|
| 物件種目 |
中古一戸建て |
| 価格 |
2,280万円 |
借地期間・地代(月額) |
- |
| 権利金 |
- |
敷金または保証金 |
- / - |
| 維持費等 |
- |
その他一時金 |
- |
| 間取り |
5SLDK |
建物面積 |
148.75m² |
| 土地権利 |
所有権 |
建物構造 |
軽量鉄骨造 |
| 土地面積 |
215.99m²(公簿) |
私道負担面積 |
なし |
| 築年月 |
1988年3月(築38年3ヶ月)
|
都市計画 |
市街化区域 |
| 建物名 |
|
建築確認番号 |
- |
| 用途地域 |
1種低層 |
駐車場 |
有 無料 |
| 建ぺい率 |
50% |
容積率 |
100% |
| 階建 |
2階建 |
接道状況 |
南東 6.0m 公道 接面13.5m
|
| 地目 |
宅地 |
地勢 |
- |
| 国土法届出 |
- |
セットバック |
- |
| アピールポイント |
土地65.33坪のゆとりある敷地に、積水ハウス施工の軽量鉄骨造一戸建て。延床面積148.75㎡・5SLDKの間取りは、大家族でもそれぞれの居場所を確保でき、将来の家族構成の変化にも柔軟に対応可能です。回遊動線で家事がしやすく、独立型キッチンは料理好きの方にも嬉しい設計。駐車場は現在1台分ですが、工事により拡張も可能。リノベーション向けのため、自分たち好みの住まいづくりも楽しめます。フジグラン高陽徒歩8分、銀行や小学校も徒歩圏内に揃い、生活利便性と子育て環境が整った災害区域外の安心エリア。土地としてのご検討も可能です。 |
| リフォーム履歴 |
- |
| リノベーション履歴 |
- |
| 瑕疵保証 |
- |
| 瑕疵保険 |
- |
| 評価・証明書 |
- |
| 備考 |
-
|
| エネルギー消費性能 |
- |
| 断熱性能 |
- |
| 目安光熱費 |
- |
| バス・トイレ |
- |
| キッチン |
独立型キッチン |
| 設備・サービス |
上水道、下水道、掘ごたつ |
| その他 |
- |
| 現況 |
所有者居住中 |
引渡可能時期 |
相談 |
| 物件番号 |
6989430945 |
|
|
| 情報公開日 |
2026年2月9日 |
次回更新予定日 |
2026年5月10日 |
| ケータイ用バーコード |
- スマートフォンでこの物件を見る
- スマートフォンからもこの物件をご覧になれます。
|
※「-」と表示されている項目については、情報提供会社にご確認ください。
ここから簡単にお問い合わせをすることができます。
(SSLでの暗号化での送信を希望されるお客さまは
こちら
よりお問い合わせください)
お問い合わせを行う前に
「個人情報の取り扱いについて」を必ずお読みください。
「個人情報の取り扱いについて」に同意いただいた場合は「上記にご同意の上 確認画面へ進む」のボタンをクリックしてください。
個人情報の取り扱いについて
皆さまが送付された個人情報はアットホーム(株)のサーバを経由し、お問い合わせ先の不動産会社にメールまたはFAXにて転送されるためアットホーム(株)にも保管されます。アットホーム(株)で保管された個人情報の取り扱いについては、【こちら】をご覧ください。
また、本画面でご記入いただいた個人情報は、お問い合わせ先の不動産会社でも保管します。 お問い合わせ先の不動産会社が保管する個人情報の取り扱いについては、不動産会社に直接お問い合わせください。
広島県知事免許(3)第10407号 |
|---|
- 交通:
- 広島高速交通アストラムライン/高取駅 徒歩6分
- 広島県広島市安佐南区高取北1丁目7-12
- TEL:
- 082-872-0034
- FAX:
- 082-836-6563
- 所属団体:
- (公社)広島県宅地建物取引業協会会員中国地区不動産公正取引協議会加盟
取引態様:専任媒介  - 50027140
|
- スマートフォンで
この不動産会社を見る

|
- 提携サイト等より掲載されている物件情報につきましては、不動産会社詳細情報にリンクされていないものがあります。
- 物件に関するお問合せは、物件詳細ページの「情報提供会社」に表示されている不動産会社へ直接お願いいたします。
- 間取図は、現況を優先させていただきます。
- 映像は物件の一部を撮影したものです。物件の契約にあたっての最終判断はご自身の判断に基づいて行ってください。
- 仲介手数料について

アットホームは物件情報の適正化に努めております。
内容に誤りがある場合にはこちらへご連絡ください。