秋田県秋田市八橋大沼町(泉外旭川駅)の一戸建て:物件詳細
交通 所在地 |
駅徒歩 |
価格 |
間取り 建物面積 |
土地面積 私道負担面積 |
物件種目 築年月 |
|
JR奥羽本線/泉外旭川
秋田県秋田市八橋大沼町
|
25分
|
2,660万円
|
4LDK
170.02m²
|
324.56m²
なし
|
中古一戸建て
1998年7月(築27年9ヶ月)
|
|
駐車場2台分、駐車場3台分以上、南向き、吹抜
|
|
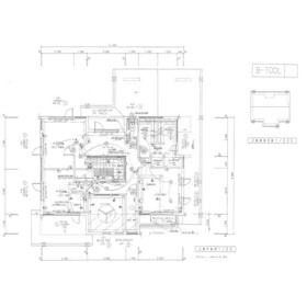
間取図
1階 平面図
|
間取図
2階 平面図
|
<
その他の画像
>
|
| 交通 | JR奥羽本線 泉外旭川駅 徒歩25分 |
| 所在地 |
秋田県秋田市八橋大沼町
|
| 物件種目 |
中古一戸建て |
| 価格 |
2,660万円 |
借地期間・地代(月額) |
- |
| 権利金 |
- |
敷金または保証金 |
- / - |
| 維持費等 |
- |
その他一時金 |
- |
| 間取り |
4LDK |
建物面積 |
170.02m² |
| 土地権利 |
所有権 |
建物構造 |
軽量鉄骨造 |
| 土地面積 |
324.56m²(公簿) |
私道負担面積 |
なし |
| 築年月 |
1998年7月(築27年9ヶ月)
|
都市計画 |
市街化区域 |
| 建物名 |
|
建築確認番号 |
- |
| 用途地域 |
2種中高 |
駐車場 |
有 無料 |
| 建ぺい率 |
60% |
容積率 |
200% |
| 階建 |
2階建 |
接道状況 |
北 5.5m 公道 接面13.7m
・ 東 6.0m 公道 接面19.1m
・ 二方道路
|
| 地目 |
宅地 |
地勢 |
平坦 |
| 国土法届出 |
- |
セットバック |
- |
| アピールポイント |
吹き抜けのある明るいリビングには20畳用フル暖エアコンがありますので、1階はもちろん2階もシーリングファンで暖まります♪
また、玄関には内風除室もありますので、暖気を逃がしにくく冷気侵入も防いでくれます。
小学校や商業施設が徒歩10分圏内にあり利便性もよい場所です! |
| リフォーム履歴 |
- |
| リノベーション履歴 |
- |
| 瑕疵保証 |
- |
| 瑕疵保険 |
- |
| 評価・証明書 |
- |
| 備考 |
主要採光面:南向き
施工会社:積水ハウス株式会社
リビングエアコン パナソニック2018年製
2階エアコン 2019年製 Eolia×2台、2007年製ナショナル×1台
|
| エネルギー消費性能 |
- |
| 断熱性能 |
- |
| 目安光熱費 |
- |
| バス・トイレ |
追焚機能、トイレ2ヶ所、浴室に窓あり |
| キッチン |
システムキッチン、IHクッキングヒーター、2口コンロ |
| 設備・サービス |
ウォークインクローゼット、エアコン2台以上、クローゼット、省エネ給湯器、室内物干し、上水道、電気、エアコン、シーリングファン、ルーフバルコニー、ダウンライト、照明器具、複層ガラス |
| その他 |
- |
| 現況 |
所有者居住中 |
引渡可能時期 |
相談 |
| 物件番号 |
6989451482 |
仲介手数料 |
売買代金の3%+6万円 |
| 情報公開日 |
2026年3月16日 |
次回更新予定日 |
2026年3月30日 |
| ケータイ用バーコード |
- スマートフォンでこの物件を見る
- スマートフォンからもこの物件をご覧になれます。
|
※「-」と表示されている項目については、情報提供会社にご確認ください。
| 周辺施設 |
ショッピングタウンパブリ |
| 距離 |
650m |
ここから簡単にお問い合わせをすることができます。
(SSLでの暗号化での送信を希望されるお客さまは
こちら
よりお問い合わせください)
お問い合わせを行う前に
「個人情報の取り扱いについて」を必ずお読みください。
「個人情報の取り扱いについて」に同意いただいた場合は「上記にご同意の上 確認画面へ進む」のボタンをクリックしてください。
個人情報の取り扱いについて
皆さまが送付された個人情報はアットホーム(株)のサーバを経由し、お問い合わせ先の不動産会社にメールまたはFAXにて転送されるためアットホーム(株)にも保管されます。アットホーム(株)で保管された個人情報の取り扱いについては、【こちら】をご覧ください。
また、本画面でご記入いただいた個人情報は、お問い合わせ先の不動産会社でも保管します。 お問い合わせ先の不動産会社が保管する個人情報の取り扱いについては、不動産会社に直接お問い合わせください。
秋田県知事免許(14)第529号 |
|---|
- 交通:
- JR羽越本線/秋田駅 徒歩5分
- 秋田県秋田市千秋城下町5-1 twotrees城下町1F
- TEL:
- 018-853-0885
- FAX:
- 018-853-0886
- 所属団体:
- (公社)秋田県宅地建物取引業協会会員東北地区不動産公正取引協議会加盟
取引態様:専任媒介  - 20002270
|
- スマートフォンで
この不動産会社を見る

|
- 提携サイト等より掲載されている物件情報につきましては、不動産会社詳細情報にリンクされていないものがあります。
- 物件に関するお問合せは、物件詳細ページの「情報提供会社」に表示されている不動産会社へ直接お願いいたします。
- 間取図は、現況を優先させていただきます。
- 映像は物件の一部を撮影したものです。物件の契約にあたっての最終判断はご自身の判断に基づいて行ってください。
- 仲介手数料について

アットホームは物件情報の適正化に努めております。
内容に誤りがある場合にはこちらへご連絡ください。