福岡県久留米市東合川7丁目(久留米大学前駅)の一戸建て:物件詳細
交通 所在地 |
駅徒歩 |
価格 |
間取り 建物面積 |
土地面積 私道負担面積 |
物件種目 築年月 |
|
JR久大本線/久留米大学前
福岡県久留米市東合川7丁目
|
26分
|
2,900万円
|
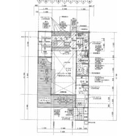
4LDK
105.14m²
|
230.00m²
なし
|
中古一戸建て
2017年1月(築9年3ヶ月)
|
|
デザイナーズ、駐車場3台分以上、高気密高断熱住宅、バス1坪以上、24時間換気システム、バリアフリー、吹抜、閑静な住宅街、オール電化、区画整理地内、整形地、設計住宅性能評価書あり、長期優良住宅(耐震、省エネ性等高い)、フラット35S適合証明書あり
|
|
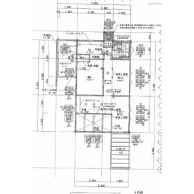
間取図
|
|
<
その他の画像
>
|
| 交通 | JR久大本線 久留米大学前駅 徒歩26分 |
|---|
| その他の交通 | JR久大本線 御井駅 徒歩29分 |
| 所在地 |
福岡県久留米市東合川7丁目
|
| 物件種目 |
中古一戸建て |
| 価格 |
2,900万円 |
借地期間・地代(月額) |
- |
| 権利金 |
- |
敷金または保証金 |
- / - |
| 維持費等 |
- |
その他一時金 |
- |
| 間取り |
4LDK(和 4 洋 4・4・6 LDK 20.9) |
建物面積 |
105.14m² |
| 土地権利 |
所有権 |
建物構造 |
木造 |
| 土地面積 |
230.00m²(公簿) |
私道負担面積 |
なし |
| 築年月 |
2017年1月(築9年3ヶ月)
|
都市計画 |
市街化区域 |
| 建物名 |
|
建築確認番号 |
- |
| 用途地域 |
1種住居 |
駐車場 |
- |
| 建ぺい率 |
60% |
容積率 |
200% |
| 階建 |
2階建 |
接道状況 |
南 6.0m 公道 接面8.5m
|
| 地目 |
宅地 |
地勢 |
平坦 |
| 国土法届出 |
- |
セットバック |
済 |
| アピールポイント |
認定された専門事業者が検査した設計住宅性能評価書有、更に安心も二重なダブルロックドア仕様なので、防犯レベルもダブルです。また広々とした延床面積1014㎡の居室空間で、その上閑静な住宅街立地の物件だから、騒々しい街の喧噪から離れて生活できます。ちなみに進化した精度の高い部材で実現、吹付断熱も採用しており高気密高断熱住宅です。家族の物語が生まれる4LDK。また、太陽光発電、蓄電池もつき電気代もお得です。実際の空間をご自身で体感ください。 |
| リフォーム履歴 |
- |
| リノベーション履歴 |
- |
| 瑕疵保証 |
- |
| 瑕疵保険 |
- |
| 評価・証明書 |
■長期優良住宅認定通知書 長期優良住宅認定通知書あり 建物検査実施日:2016年10月06日 ■フラット35S適合証明書 フラット35S適合証明書あり 建物検査実施日:2017年01月17日 |
| 備考 |
主要採光面:南西向き
BELS/省エネ基準適合認定
|
| エネルギー消費性能 |
- |
| 断熱性能 |
- |
| 目安光熱費 |
- |
| バス・トイレ |
浴室暖房、浴室乾燥機、高温差湯式、シャワー付洗面化粧台、温水洗浄便座、タンクレストイレ、トイレ2ヶ所、浴室に窓あり |
| キッチン |
カウンターキッチン、システムキッチン、食器洗浄乾燥機、IHクッキングヒーター、グリル |
| 設備・サービス |
ウォークインクローゼット、太陽光発電システム、エアコン2台以上、クローゼット、床下収納、モニター付インターホン、ダブルロックドア、省エネ給湯器、上水道、電気、ワイドバルコニー、ウッドデッキ、人感センサー付照明、ダウンライト、照明器具、火災警報器(報知機)、インターネット対応、BS端子、蓄電池付き、複層ガラス、Low-E ガラス |
| その他 |
- |
| 現況 |
所有者居住中 |
引渡可能時期 |
相談 |
| 物件番号 |
6989473239 |
仲介手数料 |
売買代金の3.3%+6.6万円 |
| 情報公開日 |
2026年3月2日 |
次回更新予定日 |
2026年3月31日 |
| ケータイ用バーコード |
- スマートフォンでこの物件を見る
- スマートフォンからもこの物件をご覧になれます。
|
※「-」と表示されている項目については、情報提供会社にご確認ください。
| 周辺施設 |
明治屋ジャンボ市久留米インター店 |
| 距離 |
442m |
写真を見る |
| 周辺施設 |
セブンイレブン久留米合川大橋店 |
| 距離 |
164m |
写真を見る |
| 周辺施設 |
久留米市立合川小学校 |
| 距離 |
1657m |
写真を見る |
| 周辺施設 |
木の実保育園 |
| 距離 |
735m |
写真を見る |
| 周辺施設 |
医療法人日新会久留米記念病院 |
| 距離 |
295m |
写真を見る |
| 周辺施設 |
久留米東合川郵便局 |
| 距離 |
1342m |
写真を見る |
| 周辺施設 |
筑邦銀行東合川支店 |
| 距離 |
570m |
写真を見る |
ここから簡単にお問い合わせをすることができます。
(SSLでの暗号化での送信を希望されるお客さまは
こちら
よりお問い合わせください)
お問い合わせを行う前に
「個人情報の取り扱いについて」を必ずお読みください。
「個人情報の取り扱いについて」に同意いただいた場合は「上記にご同意の上 確認画面へ進む」のボタンをクリックしてください。
個人情報の取り扱いについて
皆さまが送付された個人情報はアットホーム(株)のサーバを経由し、お問い合わせ先の不動産会社にメールまたはFAXにて転送されるためアットホーム(株)にも保管されます。アットホーム(株)で保管された個人情報の取り扱いについては、【こちら】をご覧ください。
また、本画面でご記入いただいた個人情報は、お問い合わせ先の不動産会社でも保管します。 お問い合わせ先の不動産会社が保管する個人情報の取り扱いについては、不動産会社に直接お問い合わせください。
福岡県知事免許(2)第18215号 |
|---|
- 交通:
- 西鉄天神大牟田線/西鉄久留米駅 徒歩4分
- 福岡県久留米市大手町2-15
- TEL:
- 0942-37-3218
- FAX:
- 0942-37-3107
- 所属団体:
- (公社)福岡県宅地建物取引業協会会員(一社)九州不動産公正取引協議会加盟
取引態様:一般媒介  - 80003973
|
- スマートフォンで
この不動産会社を見る

|
- 提携サイト等より掲載されている物件情報につきましては、不動産会社詳細情報にリンクされていないものがあります。
- 物件に関するお問合せは、物件詳細ページの「情報提供会社」に表示されている不動産会社へ直接お願いいたします。
- 間取図は、現況を優先させていただきます。
- 映像は物件の一部を撮影したものです。物件の契約にあたっての最終判断はご自身の判断に基づいて行ってください。
- 仲介手数料について

アットホームは物件情報の適正化に努めております。
内容に誤りがある場合にはこちらへご連絡ください。