福島県いわき市平下荒川字久世原(いわき駅)の一戸建て:物件詳細
交通 所在地 |
駅徒歩 |
価格 |
間取り 建物面積 |
土地面積 私道負担面積 |
物件種目 築年月 |
|
JR常磐線/いわき [バス利用可] バス 15分 下荒川 停歩2分
福島県いわき市平下荒川字久世原
|
50分
|
1,480万円
|
4DK
93.18m²
|
201.66m²
なし
|
中古一戸建て
1985年5月(築40年11ヶ月)
|
|
南向き、2面採光、閑静な住宅街、整形地、庭10坪以上、分譲地内
|
|
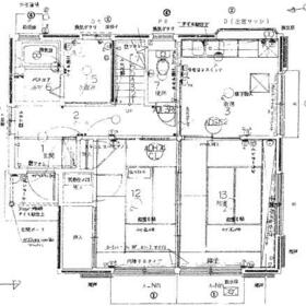
間取図
1階平面図♪
|
外観
陽当たりの良いお家です♪
|
<
その他の画像
>
|
| 交通 | JR常磐線 いわき駅 徒歩50分 [バス利用可] バス 15分 下荒川 停歩2分 |
| 所在地 |
福島県いわき市平下荒川字久世原
|
| 物件種目 |
中古一戸建て |
| 価格 |
1,480万円 |
借地期間・地代(月額) |
- |
| 権利金 |
- |
敷金または保証金 |
- / - |
| 維持費等 |
- |
その他一時金 |
- |
| 間取り |
4DK(和 6・6・7 洋 9) |
建物面積 |
93.18m² |
| 土地権利 |
所有権 |
建物構造 |
鉄骨造 |
| 土地面積 |
201.66m²(公簿) |
私道負担面積 |
なし |
| 築年月 |
1985年5月(築40年11ヶ月)
|
都市計画 |
市街化区域 |
| 建物名 |
積水ハウス様施工 家庭菜園&陽当たりの良いお家で快適生活 |
建築確認番号 |
- |
| 用途地域 |
1種低層 |
駐車場 |
- |
| 建ぺい率 |
50% |
容積率 |
80% |
| 階建 |
2階建 |
接道状況 |
南 6.0m 公道
|
| 地目 |
宅地 |
地勢 |
高台 |
| 国土法届出 |
- |
セットバック |
- |
| アピールポイント |
お料理に集中できる独立型キッチン型です。♪家族の物語が生まれる4DK。♪お問い合わせは080-6043-2785(ハマダ)迄お気軽にご連絡ください。♪平下荒川字久世原の好立地にある物件のご紹介です。積水ハウス様施工♪安心・快適な生活をお約束します。ご案内いたしますのでお気軽にご連絡ください。 |
| リフォーム履歴 |
■水回り:2022年5月 キッチン ■内装:2020年5月 壁・天井(クロス・塗装等) ■その他:2020年5月 給湯機・洗面所・雨どい交換 ※実施年月は最も古い履歴を表示 |
| リノベーション履歴 |
- |
| 瑕疵保証 |
- |
| 瑕疵保険 |
- |
| 評価・証明書 |
- |
| 備考 |
バルコニー:5.5m²
主要採光面:南向き
|
| エネルギー消費性能 |
- |
| 断熱性能 |
- |
| 目安光熱費 |
- |
| バス・トイレ |
オートバス、追焚機能、シャワー付洗面化粧台、温水洗浄便座、浴室に窓あり |
| キッチン |
独立型キッチン |
| 設備・サービス |
全居室収納、ウォークインクローゼット、床下収納、下水道、プロパンガス、側溝、エアコン、庭、ルーフバルコニー、照明器具 |
| その他 |
- |
| 現況 |
空家 |
引渡可能時期 |
相談 |
| 物件番号 |
6989507383 |
仲介手数料 |
売買代金の3%+6万円 |
| 情報公開日 |
2026年2月15日 |
次回更新予定日 |
2026年3月24日 |
| ケータイ用バーコード |
- スマートフォンでこの物件を見る
- スマートフォンからもこの物件をご覧になれます。
|
※「-」と表示されている項目については、情報提供会社にご確認ください。
| 周辺施設 |
いわき幼稚園 |
| 距離 |
1130m |
写真を見る |
| 周辺施設 |
いわき市立平第五小学校 |
| 距離 |
1200m |
写真を見る |
| 周辺施設 |
いわき市立平第三中学校 |
| 距離 |
2710m |
写真を見る |
| 周辺施設 |
ヨークタウン谷川瀬 |
| 距離 |
2130m |
写真を見る |
| 周辺施設 |
ケーズデンキ |
| 距離 |
2180m |
写真を見る |
| 周辺施設 |
UNIQLO |
| 距離 |
2200m |
写真を見る |
ここから簡単にお問い合わせをすることができます。
(SSLでの暗号化での送信を希望されるお客さまは
こちら
よりお問い合わせください)
お問い合わせを行う前に
「個人情報の取り扱いについて」を必ずお読みください。
「個人情報の取り扱いについて」に同意いただいた場合は「上記にご同意の上 確認画面へ進む」のボタンをクリックしてください。
個人情報の取り扱いについて
皆さまが送付された個人情報はアットホーム(株)のサーバを経由し、お問い合わせ先の不動産会社にメールまたはFAXにて転送されるためアットホーム(株)にも保管されます。アットホーム(株)で保管された個人情報の取り扱いについては、【こちら】をご覧ください。
また、本画面でご記入いただいた個人情報は、お問い合わせ先の不動産会社でも保管します。 お問い合わせ先の不動産会社が保管する個人情報の取り扱いについては、不動産会社に直接お問い合わせください。
国土交通大臣免許(9)第3827号 |
|---|
- 交通:
- JR東北本線/安積永盛駅 【バス】4分 川向 停歩2分
- 福島県郡山市南1丁目82
- TEL:
- 024-937-4111
- FAX:
- 024-945-2330
- 所属団体:
- (公社)福島県宅地建物取引業協会会員東北地区不動産公正取引協議会加盟
取引態様:一般媒介  - 20003304
|
- スマートフォンで
この不動産会社を見る

|
- 提携サイト等より掲載されている物件情報につきましては、不動産会社詳細情報にリンクされていないものがあります。
- 物件に関するお問合せは、物件詳細ページの「情報提供会社」に表示されている不動産会社へ直接お願いいたします。
- 間取図は、現況を優先させていただきます。
- 映像は物件の一部を撮影したものです。物件の契約にあたっての最終判断はご自身の判断に基づいて行ってください。
- 仲介手数料について

アットホームは物件情報の適正化に努めております。
内容に誤りがある場合にはこちらへご連絡ください。