兵庫県神戸市北区星和台6丁目(西鈴蘭台駅)の一戸建て:物件詳細
交通 所在地 |
駅徒歩 |
価格 |
間取り 建物面積 |
土地面積 私道負担面積 |
物件種目 築年月 |
|
神戸電鉄粟生線/西鈴蘭台
兵庫県神戸市北区星和台6丁目
|
22分
|
2,490万円
|
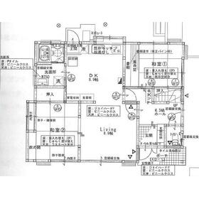
4LDK
98.61m²
|
237.49m²
なし
|
中古一戸建て
1977年2月(築49年4ヶ月)
|
|
南向き
|
|
間取図
|
|
<
その他の画像
>
|
| 交通 | 神戸電鉄粟生線 西鈴蘭台駅 徒歩22分 |
| 所在地 |
兵庫県神戸市北区星和台6丁目
|
| 物件種目 |
中古一戸建て |
| 価格 |
2,490万円 |
借地期間・地代(月額) |
- |
| 権利金 |
- |
敷金または保証金 |
- / - |
| 維持費等 |
- |
その他一時金 |
- |
| 間取り |
4LDK |
建物面積 |
98.61m² |
| 土地権利 |
所有権 |
建物構造 |
木造 |
| 土地面積 |
237.49m²(公簿) |
私道負担面積 |
なし |
| 築年月 |
1977年2月(築49年4ヶ月)
|
都市計画 |
市街化区域 |
| 建物名 |
|
建築確認番号 |
- |
| 用途地域 |
1種低層 |
駐車場 |
有 |
| 建ぺい率 |
50% |
容積率 |
100% |
| 階建 |
2階建 |
接道状況 |
東 6.0m 公道
|
| 地目 |
宅地 |
地勢 |
平坦 |
| 国土法届出 |
- |
セットバック |
- |
| アピールポイント |
車庫3台、大規模リノベーション住宅(7年前)、瑕疵保証残り3年あり、オール電化、キッチン入れ替え(5年前) |
| リフォーム履歴 |
■水回り:2020年1月 キッチン ※実施年月は最も古い履歴を表示 |
| リノベーション履歴 |
2018年1月 住友不動産の新築そっくりさん住宅にて全面リフォーム、総額1500万円近くの総工費です ※実施年月は最も古い履歴を表示 |
| 瑕疵保証 |
- |
| 瑕疵保険 |
- |
| 評価・証明書 |
- |
| 備考 |
主要採光面:南向き
7年前に約1500万円の施工費を投じて新築そっくりさんのリノベーションを実施
、5年前にシステムキッチンを入れ替え、オール電化、公園前の好立地で子育てに最適です。
|
| エネルギー消費性能 |
- |
| 断熱性能 |
- |
| 目安光熱費 |
- |
| バス・トイレ |
- |
| キッチン |
- |
| 設備・サービス |
- |
| その他 |
- |
| 現況 |
所有者居住中 |
引渡可能時期 |
指定有り2026年4月30日 |
| 物件番号 |
6989546609 |
|
|
| 情報公開日 |
2026年2月17日 |
次回更新予定日 |
2026年5月16日 |
| ケータイ用バーコード |
- スマートフォンでこの物件を見る
- スマートフォンからもこの物件をご覧になれます。
|
※「-」と表示されている項目については、情報提供会社にご確認ください。
ここから簡単にお問い合わせをすることができます。
(SSLでの暗号化での送信を希望されるお客さまは
こちら
よりお問い合わせください)
お問い合わせを行う前に
「個人情報の取り扱いについて」を必ずお読みください。
「個人情報の取り扱いについて」に同意いただいた場合は「上記にご同意の上 確認画面へ進む」のボタンをクリックしてください。
個人情報の取り扱いについて
皆さまが送付された個人情報はアットホーム(株)のサーバを経由し、お問い合わせ先の不動産会社にメールまたはFAXにて転送されるためアットホーム(株)にも保管されます。アットホーム(株)で保管された個人情報の取り扱いについては、【こちら】をご覧ください。
また、本画面でご記入いただいた個人情報は、お問い合わせ先の不動産会社でも保管します。 お問い合わせ先の不動産会社が保管する個人情報の取り扱いについては、不動産会社に直接お問い合わせください。
兵庫県知事免許(1)第12565号 |
|---|
- 交通:
- 神戸電鉄粟生線/鈴蘭台西口駅 徒歩5分
- 兵庫県神戸市北区鈴蘭台西町1丁目19-9 サングレイ西鈴101
- TEL:
- 078-982-4311
- 所属団体:
- (公社)全日本不動産協会会員(公社)近畿地区不動産公正取引協議会加盟
取引態様:専任媒介  - 50110743
|
- スマートフォンで
この不動産会社を見る

|
- 提携サイト等より掲載されている物件情報につきましては、不動産会社詳細情報にリンクされていないものがあります。
- 物件に関するお問合せは、物件詳細ページの「情報提供会社」に表示されている不動産会社へ直接お願いいたします。
- 間取図は、現況を優先させていただきます。
- 映像は物件の一部を撮影したものです。物件の契約にあたっての最終判断はご自身の判断に基づいて行ってください。
- 仲介手数料について

アットホームは物件情報の適正化に努めております。
内容に誤りがある場合にはこちらへご連絡ください。