三重県鈴鹿市長太新町4丁目(楠駅)の一戸建て:物件詳細
交通 所在地 |
駅徒歩 |
価格 |
間取り 建物面積 |
土地面積 私道負担面積 |
物件種目 築年月 |
|
近鉄名古屋線/楠
三重県鈴鹿市長太新町4丁目
|
15分
|
1,890万円
|
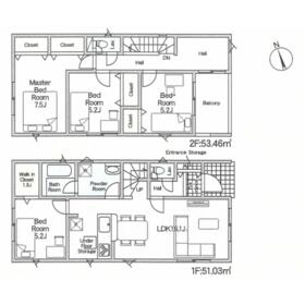
4LDK
98.82m²
|
156.71m²
-
|
新築一戸建て
2026年2月
|
|
駐車場3台分以上、バス1坪以上、設計住宅性能評価書あり、建設住宅性能評価書あり
|
|
間取図
|
外観
|
<
その他の画像
>
|
| 交通 | 近鉄名古屋線 楠駅 徒歩15分 |
| 所在地 |
三重県鈴鹿市長太新町4丁目
|
| 物件種目 |
新築一戸建て |
| 価格 |
1,890万円 |
借地期間・地代(月額) |
- |
| 権利金 |
- |
敷金または保証金 |
- / - |
| 維持費等 |
- |
その他一時金 |
- |
| 間取り |
4LDK |
建物面積 |
98.82m² |
| 土地権利 |
所有権 |
建物構造 |
木造 |
| 土地面積 |
156.71m²(公簿) |
私道負担面積 |
- |
| 築年月 |
2026年2月
|
都市計画 |
市街化区域 |
| 建物名 |
|
建築確認番号 |
第HPA-25-12536-1号 |
| 用途地域 |
1種住居 |
駐車場 |
- |
| 建ぺい率 |
60% |
容積率 |
200% |
| 階建 |
2階建 |
接道状況 |
東 4.9m 公道 接面6.5m
|
| 地目 |
- |
地勢 |
- |
| 国土法届出 |
- |
セットバック |
- |
| アピールポイント |
◆全室洋室、使い勝手の良い間取りです♪
◆バルコニー広々!!陽当たりも良好です!
◆駐車4台可能(車種による)
-------------------
・ローンのこと、相談したい…
・とりあえず内覧したい
・他にも物件教えてほしい などなど
→→ 鈴鹿で50年の実績!
飯田商事にご相談ください
■■■お気軽にお問い合わせください♪■■■
TEL:0120-82-6640
※自動音声ガイダンス流れます。②番を押すと繋がります♪ |
| リフォーム履歴 |
- |
| リノベーション履歴 |
- |
| 瑕疵保証 |
- |
| 瑕疵保険 |
- |
| 評価・証明書 |
- |
| 備考 |
施工会社:アーネストワン
建築確認完了検査済証あり
\ご内覧&ご成約キャンペーン実施中/
◆ご来店orご内覧のお客様へ◆
【1000円分ギフト券プレゼント♪】
アットホームを見て飯田商事にはじめてご来店or内覧いただいた方は、Amazonギフト券1000円またはVISAギフト券1000円をお渡しします。※簡単なアンケート記述が必須です。
◆本物件をご成約のお客様へ◆
【5万円分家電プレゼント♪】
シャープ液晶テレビ,シャープ空気清浄機,シャープエアコン,象印の炊飯器,ダイソンのドライヤーなど…他にもお好きな家電をお選びいただけます。
家電販売も行う飯田商事だからできる特典です!
※「不動産業における景品類の提供の制限に関する公正競争規約」に従い、ご成約金額によりプレゼントの上限が5万円未満となる物件もございます。※取扱いのない商品もございます。
|
| エネルギー消費性能 |
★★★(削減率20%達成) |
| 断熱性能 |
5段階/7段階中 |
| 目安光熱費 |
- |
| バス・トイレ |
追焚機能、シャワー付洗面化粧台、温水洗浄便座、トイレ2ヶ所、浴室に窓あり |
| キッチン |
カウンターキッチン、システムキッチン、3口以上コンロ |
| 設備・サービス |
全居室収納、ウォークインクローゼット、クローゼット、床下収納、モニター付インターホン、ディンプルキー |
| その他 |
- |
| 現況 |
完成済 |
引渡可能時期 |
即時 |
| 物件番号 |
6989624175 |
仲介手数料 |
売買代金の3%+6万円 |
| 情報公開日 |
2026年2月23日 |
次回更新予定日 |
2026年5月16日 |
| ケータイ用バーコード |
- スマートフォンでこの物件を見る
- スマートフォンからもこの物件をご覧になれます。
|
※「-」と表示されている項目については、情報提供会社にご確認ください。
ここから簡単にお問い合わせをすることができます。
(SSLでの暗号化での送信を希望されるお客さまは
こちら
よりお問い合わせください)
お問い合わせを行う前に
「個人情報の取り扱いについて」を必ずお読みください。
「個人情報の取り扱いについて」に同意いただいた場合は「上記にご同意の上 確認画面へ進む」のボタンをクリックしてください。
個人情報の取り扱いについて
皆さまが送付された個人情報はアットホーム(株)のサーバを経由し、お問い合わせ先の不動産会社にメールまたはFAXにて転送されるためアットホーム(株)にも保管されます。アットホーム(株)で保管された個人情報の取り扱いについては、【こちら】をご覧ください。
また、本画面でご記入いただいた個人情報は、お問い合わせ先の不動産会社でも保管します。 お問い合わせ先の不動産会社が保管する個人情報の取り扱いについては、不動産会社に直接お問い合わせください。
三重県知事免許(14)第559号 |
|---|
- 交通:
- 近鉄鈴鹿線/鈴鹿市駅 徒歩20分
- 三重県鈴鹿市飯野寺家町296-1
- TEL:
- 059-382-1640
- FAX:
- 059-383-5555
- 所属団体:
- (公社)三重県宅地建物取引業協会会員東海不動産公正取引協議会加盟
取引態様:媒介  - 40600113
|
- スマートフォンで
この不動産会社を見る

|
- 提携サイト等より掲載されている物件情報につきましては、不動産会社詳細情報にリンクされていないものがあります。
- 物件に関するお問合せは、物件詳細ページの「情報提供会社」に表示されている不動産会社へ直接お願いいたします。
- 間取図は、現況を優先させていただきます。
- 映像は物件の一部を撮影したものです。物件の契約にあたっての最終判断はご自身の判断に基づいて行ってください。
- 仲介手数料について

アットホームは物件情報の適正化に努めております。
内容に誤りがある場合にはこちらへご連絡ください。