福島県いわき市常磐藤原町名高儀(湯本駅)の一戸建て:物件詳細
交通 所在地 |
駅徒歩 |
価格 |
間取り 建物面積 |
土地面積 私道負担面積 |
物件種目 築年月 |
|
JR常磐線/湯本 【バス】15分 藤原 停歩7分
福島県いわき市常磐藤原町名高儀
|
-
|
2,750万円
|
3SLDK
112.62m²
|
285.51m²
-
|
中古一戸建て
2012年5月(築13年11ヶ月)
|
|
駐車場3台分以上、南向き、バス1坪以上、24時間換気システム、オール電化、整形地、庭10坪以上
|
|
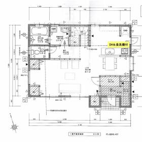
間取図
◎1階間取図◎※現況有姿とさせていただきます。
|
間取図
◎2階間取図◎※現況有姿とさせて頂きます。
|
<
その他の画像
>
|
| 交通 | JR常磐線 湯本駅 【バス】 15分 藤原 停歩7分 |
| 所在地 |
福島県いわき市常磐藤原町名高儀
|
| 物件種目 |
中古一戸建て |
| 価格 |
2,750万円 |
借地期間・地代(月額) |
- |
| 権利金 |
- |
敷金または保証金 |
- / - |
| 維持費等 |
- |
その他一時金 |
- |
| 間取り |
3SLDK |
建物面積 |
112.62m² |
| 土地権利 |
所有権 |
建物構造 |
木造 |
| 土地面積 |
285.51m²(公簿) |
私道負担面積 |
- |
| 築年月 |
2012年5月(築13年11ヶ月)
|
都市計画 |
調整区域 |
| 建物名 |
|
建築確認番号 |
- |
| 用途地域 |
無指定 |
駐車場 |
- |
| 建ぺい率 |
60% |
容積率 |
200% |
| 階建 |
2階建 |
接道状況 |
西 公道
|
| 地目 |
宅地 |
地勢 |
高台 |
| 国土法届出 |
- |
セットバック |
- |
| アピールポイント |
!広々&日当り良好なLDKに、デッキスペースがあるお家!◎
ソファーセットも十分配置出来て、ダイニングスペースがしっかり確保出来る、
丁寧にお住いになられている2階建住宅♪
お庭も広く、大容量ストッカー2つあり。
デッキとの回遊も嬉しいスペース!
駐車スペース現在3台分~ですが、お庭部分が広いので
台数重視で駐車スペースを広げたいというご家族様にもオススメです。
◎周辺施設◎
ハワイアンズまで徒歩7分
藤原幼稚園まで車で2分
湯本インターまで車で7分
カワチ薬品まで車で10分
~現在湯本駅前再開発中!ますます充実していく常磐エリアに期待♪~
◎『2階は3部屋&納戸&お手洗い&バルコニー』
⇒それぞれ各お部屋の収納が充実しており、機能的にお住いになれます。
主寝室はWIC広々!各お部屋日当り良好で、かつ、保存状態 良好ですので
最近の注文住宅価格にお悩みの方、オススメです!
◎『太陽光搭載のオール電化住宅』
◎現在お住い中ですが事前の御予約にて御見学頂けます◎
まずは、日程調整をさせていただきますので
お電話・メールお待ちしております♪ |
| リフォーム履歴 |
- |
| リノベーション履歴 |
- |
| 瑕疵保証 |
- |
| 瑕疵保険 |
- |
| 評価・証明書 |
- |
| 備考 |
主要採光面:南向き
建築確認完了検査済証あり
市街化調整区域ですが、開発行為による分譲がされた住宅地です。
「名高儀団地」では、一戸建て住宅と一定の住居併用の建物、アパートなど、建築出来る建物の規定があります。(主に、良好な住居環境のための規定だというイメージです。)
市街化調整区域、なので市街化区域だと毎年かかる都市計画税が0円。
固定資産税が抑えられるメリットがあります♪
参考:令和7年度固定資産税 年額74,000円
|
| エネルギー消費性能 |
- |
| 断熱性能 |
- |
| 目安光熱費 |
- |
| バス・トイレ |
浴室乾燥機、追焚機能、シャワー付洗面化粧台、温水洗浄便座 |
| キッチン |
カウンターキッチン、IHクッキングヒーター |
| 設備・サービス |
全居室収納、ウォークインクローゼット、太陽光発電システム、エアコン2台以上、シューズインクローゼット、床下収納、モニター付インターホン、省エネ給湯器、全居室フローリング、室内物干し、ウッドデッキ、ダウンライト、照明器具、複層ガラス |
| その他 |
- |
| 現況 |
所有者居住中 |
引渡可能時期 |
相談 |
| 物件番号 |
6989636263 |
|
|
| 情報公開日 |
2026年2月24日 |
次回更新予定日 |
2026年4月5日 |
| ケータイ用バーコード |
- スマートフォンでこの物件を見る
- スマートフォンからもこの物件をご覧になれます。
|
※「-」と表示されている項目については、情報提供会社にご確認ください。
| 周辺施設 |
スパリゾートハワイアンズ |
| 距離 |
829m |
| 周辺施設 |
セブンイレブンいわき釜ノ前店 |
| 距離 |
1834m |
| 周辺施設 |
くすりのマルトドラッグストア釜の前店 |
| 距離 |
2216m |
| 周辺施設 |
財団法人ときわ会常磐病院 |
| 距離 |
2934m |
ここから簡単にお問い合わせをすることができます。
(SSLでの暗号化での送信を希望されるお客さまは
こちら
よりお問い合わせください)
お問い合わせを行う前に
「個人情報の取り扱いについて」を必ずお読みください。
「個人情報の取り扱いについて」に同意いただいた場合は「上記にご同意の上 確認画面へ進む」のボタンをクリックしてください。
個人情報の取り扱いについて
皆さまが送付された個人情報はアットホーム(株)のサーバを経由し、お問い合わせ先の不動産会社にメールまたはFAXにて転送されるためアットホーム(株)にも保管されます。アットホーム(株)で保管された個人情報の取り扱いについては、【こちら】をご覧ください。
また、本画面でご記入いただいた個人情報は、お問い合わせ先の不動産会社でも保管します。 お問い合わせ先の不動産会社が保管する個人情報の取り扱いについては、不動産会社に直接お問い合わせください。
福島県知事免許(3)第3159号 |
|---|
- 交通:
- JR常磐線/いわき駅 【バス】35分 飯野三丁目バス停 停歩4分
- 福島県いわき市中央台飯野3丁目16-4
- TEL:
- 0246-38-3813
- FAX:
- 0246-38-3817
- 所属団体:
- (公社)全日本不動産協会会員東北地区不動産公正取引協議会加盟
取引態様:専任媒介  - 20003670
|
- スマートフォンで
この不動産会社を見る

|
- 提携サイト等より掲載されている物件情報につきましては、不動産会社詳細情報にリンクされていないものがあります。
- 物件に関するお問合せは、物件詳細ページの「情報提供会社」に表示されている不動産会社へ直接お願いいたします。
- 間取図は、現況を優先させていただきます。
- 映像は物件の一部を撮影したものです。物件の契約にあたっての最終判断はご自身の判断に基づいて行ってください。
- 仲介手数料について

アットホームは物件情報の適正化に努めております。
内容に誤りがある場合にはこちらへご連絡ください。