大分県大分市横尾東町2丁目(鶴崎駅)の一戸建て:物件詳細
交通 所在地 |
駅徒歩 |
価格 |
間取り 建物面積 |
土地面積 私道負担面積 |
物件種目 築年月 |
|
JR日豊本線/鶴崎
大分県大分市横尾東町2丁目
|
4800m
|
3,398万円
|
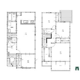
4LDK
105.16m²
|
156.41m²
なし
|
新築一戸建て
2025年12月
|
|
駐車場3台分以上、閑静な住宅街
|
|
間取図
|
外観
|
<
その他の画像
>
|
| 交通 | JR日豊本線 鶴崎駅 徒歩4800m |
| 所在地 |
大分県大分市横尾東町2丁目
|
| 物件種目 |
新築一戸建て |
| 価格 |
3,398万円 |
借地期間・地代(月額) |
- |
| 権利金 |
- |
敷金または保証金 |
- / - |
| 維持費等 |
- |
その他一時金 |
- |
| 間取り |
4LDK(洋 4.5・8・5.2・5.2 LDK 17.6) |
建物面積 |
105.16m² |
| 土地権利 |
所有権 |
建物構造 |
木造 |
| 土地面積 |
156.41m²(公簿) |
私道負担面積 |
なし |
| 築年月 |
2025年12月
|
都市計画 |
市街化区域 |
| 建物名 |
|
建築確認番号 |
R07SHC118403 |
| 用途地域 |
2種低層 |
駐車場 |
- |
| 建ぺい率 |
70% |
容積率 |
150% |
| 階建 |
2階建 |
接道状況 |
南 6.0m 公道
・ 東 9.0m 公道
|
| 地目 |
宅地 |
地勢 |
- |
| 国土法届出 |
- |
セットバック |
- |
| アピールポイント |
住まいに求めたいのは、目に見える安心と、目に見えない安心。
窓には複層ガラスを採用。外からの騒音をやわらげ、防犯面にも配慮した設計です。さらにモニター付きインターホンを完備し、訪問者の様子をしっかり確認。勧誘や突然の来訪にも、落ち着いて対応できます。
まだ誰も住んでいない、新築の住まい。
この空間に流れる時間を、最初に刻むのはあなたのご家族です。
立地は喧騒から少し距離を置いた閑静な住宅街。穏やかな環境の中で、丁寧な暮らしを育めます。
キッチンは合理的に設計されたシステムキッチン。使いやすさと美しさを兼ね備え、毎日の食卓を支えます。
ここからはじまる、家族の物語。
その空気感を、ぜひ現地でご体感ください。 |
| リフォーム履歴 |
- |
| リノベーション履歴 |
- |
| 瑕疵保証 |
- |
| 瑕疵保険 |
- |
| 評価・証明書 |
- |
| 備考 |
-
|
| エネルギー消費性能 |
- |
| 断熱性能 |
- |
| 目安光熱費 |
- |
| バス・トイレ |
浴室乾燥機、追焚機能、温水洗浄便座、トイレ2ヶ所 |
| キッチン |
システムキッチン、食器洗浄乾燥機 |
| 設備・サービス |
床下収納、モニター付インターホン、浄化槽、上水道、プロパンガス、電気、複層ガラス |
| その他 |
- |
| 現況 |
完成済 |
引渡可能時期 |
即時 |
| 物件番号 |
6989689202 |
|
|
| 情報公開日 |
2026年2月28日 |
次回更新予定日 |
2026年3月30日 |
| ケータイ用バーコード |
- スマートフォンでこの物件を見る
- スマートフォンからもこの物件をご覧になれます。
|
※「-」と表示されている項目については、情報提供会社にご確認ください。
| 周辺施設 |
マックスバリュくらし館高田店 |
| 距離 |
2229m |
| 周辺施設 |
マルミヤストア鶴崎森店 |
| 距離 |
2051m |
| 周辺施設 |
ローソン大分スポーツ公園東店 |
| 距離 |
806m |
ここから簡単にお問い合わせをすることができます。
(SSLでの暗号化での送信を希望されるお客さまは
こちら
よりお問い合わせください)
お問い合わせを行う前に
「個人情報の取り扱いについて」を必ずお読みください。
「個人情報の取り扱いについて」に同意いただいた場合は「上記にご同意の上 確認画面へ進む」のボタンをクリックしてください。
個人情報の取り扱いについて
皆さまが送付された個人情報はアットホーム(株)のサーバを経由し、お問い合わせ先の不動産会社にメールまたはFAXにて転送されるためアットホーム(株)にも保管されます。アットホーム(株)で保管された個人情報の取り扱いについては、【こちら】をご覧ください。
また、本画面でご記入いただいた個人情報は、お問い合わせ先の不動産会社でも保管します。 お問い合わせ先の不動産会社が保管する個人情報の取り扱いについては、不動産会社に直接お問い合わせください。
大分県知事免許(1)第3605号 |
|---|
- 交通:
- JR久大本線/大分駅
- 大分県大分市大字下郡3119-4
- TEL:
- 097-567-0002
- FAX:
- 097-567-0003
- 所属団体:
- (公社)全日本不動産協会会員(一社)九州不動産公正取引協議会加盟
取引態様:媒介  - 80508272
|
- スマートフォンで
この不動産会社を見る

|
- 提携サイト等より掲載されている物件情報につきましては、不動産会社詳細情報にリンクされていないものがあります。
- 物件に関するお問合せは、物件詳細ページの「情報提供会社」に表示されている不動産会社へ直接お願いいたします。
- 間取図は、現況を優先させていただきます。
- 映像は物件の一部を撮影したものです。物件の契約にあたっての最終判断はご自身の判断に基づいて行ってください。
- 仲介手数料について

アットホームは物件情報の適正化に努めております。
内容に誤りがある場合にはこちらへご連絡ください。